NewConstruction Avslatt Tomannsbolig

Oppføring av to tomannsboliger i Brobekkveien 17, Sundvollen

📍 Brobekkveien 17 , 3531 KROKKLEIVA

Nøkkelinfo

Sakstype
Nybygg
Bygningstype
Tomannsbolig
Bruksareal
680 m²
Boenheter
4
Kommune
Hole
Fylke
Buskerud
Gnr / Bnr
231 / 105
Saksnummer
25/1187
Fase
Avslått

Om byggesaken

Prosjektet omfatter riving av eksisterende enebolig og oppføring av to moderne tomannsboliger på eiendommen Brobekkveien 17 i Sundvollen. Hver tomannsbolig har to boenheter, totalt fire boenheter, med flate tak og liggende trekledning. Byggene har underetasje og hovedetasje, med garasje integrert i underetasjen. Totalt bruksareal for boligene er ca. 517 m², med bebygd areal på ca. 680 m² inkludert garasjer og sportsboder. Tomten er på ca. 2283 m² netto, med utearealer tilpasset terrenget og krav til minimum uteoppholdsareal per boenhet. Adkomst skjer via Brobekkveien, som er delvis kommunal og delvis privat vei. Prosjektet har vært gjenstand for omfattende nabomerknader, særlig knyttet til veistandard og veirett, og saken har vært avslått og påklaget med påfølgende oppheving av avslaget av Statsforvalteren. Ny behandling av søknaden er igangsatt i tråd med klageinstansen.

Produkter og materialer

Tak Flatt tak

Antall: 2

Flate tak med gesimshøyde ca. 5,1-5,3 m, snøfangere iht. Sintef detaljblad

Flate tak på begge tomannsboliger, tilpasset moderne arkitektur

Gulv Innvendige gulv

Gulvareal oppgitt iht. NS3940, romhøyde 2,4 m, senket himling i enkelte rom

Innvendige gulv i boligene, standard ikke spesifisert

Terrasse Terrasser på tak

Antall: 4

Takterrasser med utvendig adkomst på begge tomannsboliger

Takterrasser for opphold og uteareal

Grunnarbeid Drenering og overvannshåndtering

Drenering og overvannshåndtering iht. TEK17, lokal infiltrasjon og terrengforsenkninger

Overvannshåndtering på tomten

Rekkverk Glassrekkverk balkong

🧱 glass

Antall: 2

Glassrekkverk på balkonger iht. tegninger

Rekkverk for balkonger på boligene

Fasade Liggende trekledning

🧱 tre

Liggende trekledning på fasader, moderne uttrykk

Fasade med liggende trekledning for estetisk tilpasning til området

Miljøsanering Riving av eksisterende bebyggelse

Miljøsanering og riving av eksisterende enebolig, garasje, uthus og stabbur

Riving av eksisterende bygninger på tomten

VVS Vannforsynings- og avløpsanlegg

Tilknytning til offentlig vann og avløp, dokumentasjon kreves før igangsettingstillatelse

Offentlig vann og avløp tilkoblet eiendommen

VVS Sanitærinstallasjoner

Sanitærinstallasjoner i henhold til gjeldende TEK17

Fullt sanitæranlegg for fire boenheter

Elektro Elektrisk installasjon

Elektriske installasjoner iht. gjeldende forskrifter, inkludert belysning og sikkerhet

Elektrisk anlegg for boligene

Dører Ytterdører og sportsboddører

🧱 tre

Antall: 10

Ytterdører og dører til sportsboder, plassert i underetasje og hovedetasje

Ytterdører og dører til sportsboder iht. tegninger

Ventilasjon Balansert ventilasjon

Prosjektering av balansert ventilasjon for boligene

Ventilasjonsanlegg iht. gjeldende forskrifter

Trapper Innvendige trapper

Antall: 2

Innvendige trapper mellom underetasje og hovedetasje

Trapper i hver tomannsbolig for intern adkomst mellom etasjer

Maling Utvendig maling

Maling av trekledning og eventuelle detaljer ikke spesifisert

Utvendig maling for fasader

Tømrer Trekonstruksjoner og montering

🧱 tre

Tømrerarbeid for trekonstruksjoner iht. gjennomføringsplan

Trekonstruksjoner for boligene

Grunnarbeid Graving, bærelag og komprimering

Gravedybde, oppbygning av bærelag og krav til komprimering iht. gjennomføringsplan

Grunnarbeider for fundamentering og oppbygging av tomt

Garasjeport Garasjeport i underetasje

Antall: 2

Garasjeporter til to garasjer på ca. 33,8 m² hver

Garasjeporter for integrerte garasjer i underetasjen

Betong Fundament og plate

Betongarbeider inkl. radonmembran iht. gjennomføringsplan

Betongfundament og plate for boligene

Vinduer Fasadevindu

🧱 tre

Antall: 14

Vinduer med barnesikring over 3,3 m over terreng, ulike størrelser ifølge tegninger

Fasadevinduer i tre for boligene, tilpasset moderne boligstandard

Brannvern Brannslokkeutstyr

Håndslokkeapparat eller brannslange i henhold til risikoklasse RKL 4

Brannvernutstyr i boligene

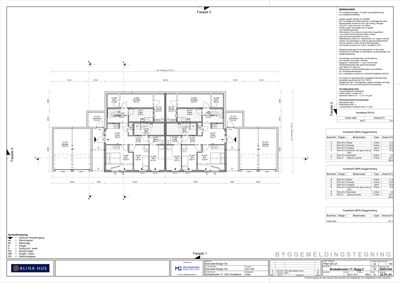
Plantegning

Bokvalitet Boliger AS 331.0 m²

Etasje 0 331.0 m²

Rom Areal Vinduer Dører
Garasje A U14 33.8 m² 2 0
Garasje B U14 33.8 m² 2 0
Sportsbod A U15 5.3 m² 0 1
Sportsbod B U15 5.3 m² 0 1

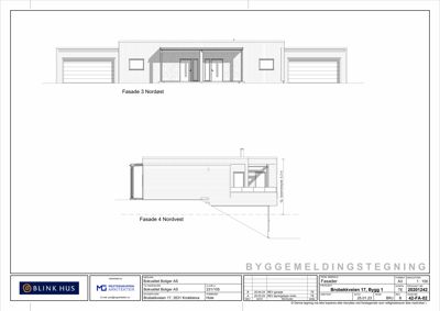
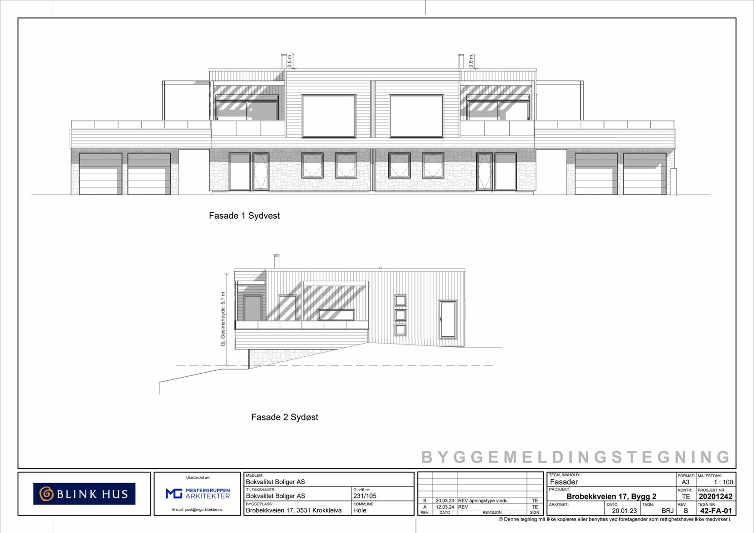
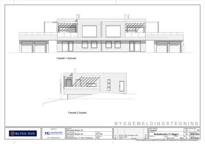
Fasader

Enebolig

Sydvest
Materiale
Mur
Høyde
5.1 m
Vinduer
6
Dører
2
Balkonger
1
Synlige etasjer
2
Sydøst
Materiale
Tre
Høyde
5.1 m
Vinduer
4
Dører
1
Balkonger
1
Synlige etasjer
2
Nordøst
Materiale
Tre
Taktype
Flatt tak
Høyde
5.3 m
Vinduer
2
Dører
2
Synlige etasjer
1
Nordvest
Materiale
Tre
Taktype
Flatt tak
Høyde
5.3 m
Vinduer
2
Dører
2
Synlige etasjer
1

Hendelser

20.04.2026 Oversender søknad til uttalelse - gnr 231 bnr 105 - Brobekkveien 17 - Oppføring av to tomannsboliger og riving av gamle bygninger
31.03.2026 Gnr 231 bnr 105 - Brobekkveien 17 - Føreløpigt svar
31.03.2026 Gnr 231 bnr 105 - Brobekkveien 17 - Ber om uttalelse slokkevann
27.03.2026 Gnr/bnr: 231/105 – Brobekkveien 17 - anmodning om ny behandling av rammesøknad
12.03.2026 231/105 - Brobekkveien 17 - Vedtak i klagesak
03.03.2026 Forlengelse av saksbehandlingsfrist - 231/105 - Brobekkveien 17 - klage over avslag på søknad om oppføring av to tomannsboliger
26.02.2026 Svar til Statsforvalter fra klager - Kopi til Hole kommune
16.02.2026 Vedrørende sakens dokumenter i klagesak
09.02.2026 Statsforvalteren informerer om saksbehandlingstid - frist for oversendelse 23.02.26
02.02.2026 Vedrørende ytterligere kommentarer til klagesak
02.02.2026 Vedrørende klagesak og oversedelse av dokumenter til Statsforvalteren
29.01.2026 Kopi av tilsvar på HK sine kommentarer av 16.01.2026
19.01.2026 Kommentarer til ytterligere merknader fra tiltakshaver i klagesak
02.01.2026 Oversender merknader i byggesak - 231/105 - Brobekkveien 17 - avslag oppføring av to tomannsboliger
20.11.2025 Gnr 231 bnr 105 - Brobekkveien 17 - Klage - oppføring av to tomannsboliger
22.09.2025 Gnr 231 bnr 105 - Brobekkveien 17 - Klage - oppføring av to tomannsboliger