NewConstruction UnderBehandling Tomannsbolig

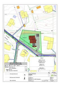
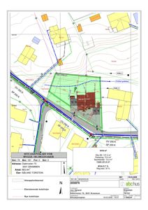
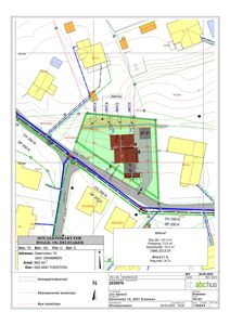
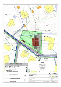
Ny tomannsbolig med anlegg i Dalenveien 75, Drammen

📍 Dalenveien 75 , 4815 SALTRØD

Nøkkelinfo

Sakstype
Nybygg
Bygningstype
Tomannsbolig
Bruksareal
150 m²
Boenheter
2
Kommune
Drammen
Fylke
Buskerud
Gnr / Bnr
79 / 181
Saksnummer
24/46676
Fase
Under behandling

Om byggesaken

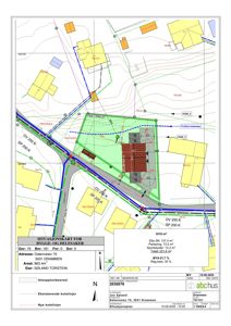
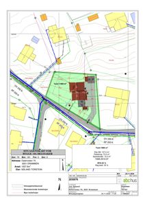
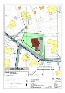
Ny vertikaldelt tomannsbolig på ca. 150 m² BRA fordelt på to etasjer med moderne arkitektur og saltak. Boligen har fire soverom, to bad, stue og kjøkken i hver boenhet, samt tilhørende sportsboder og parkeringsareal. Bygget er plassert på en tomt på ca. 1019 m², med uteoppholdsarealer som oppfyller kommuneplanens krav. Tomten har et bekkeløp som er definert som tørr bekk uten årssikker vannføring, og bekken legges om som åpen flomvei med kapasitet for 200-årsflom. Det er planlagt lokal overvannshåndtering med infiltrasjon og fordrøyning på egen tomt. Bygget er prosjektert med hensyn til terreng, nabohensyn, brannvannstilgang og tekniske krav. Det er søkt dispensasjon fra byggegrense mot vassdrag og plankrav, med vilkår om reetablering av kantvegetasjon langs bekken. Prosjektet er under behandling og har mottatt uttalelser fra relevante myndigheter.

Arbeidsomfang

- Oppføring av verkaldelt tomannsbolig (ca 149,6 m²) - Tilhørende friliggende sportsboder - Anleggelse av parkeringsareal (72 m²) - Anleggelse av privat adkomstvei - Dispensasjon fra kommuneplan for oppføring

Produkter og materialer

Mur Sportsboder

🧱 Tre eller lett konstruksjon

Antall: 2

Frittliggende sportsboder på ca. 6,1 m² hver

Boder til oppbevaring

Elektro Elektriske installasjoner

Sikringsskap, utvendige el-skap

Elektriske installasjoner i bolig

Terrasse Uteoppholdsareal

Privat uteoppholdsareal på ca. 100 m² per boenhet, felles uteareal med gode solforhold

Utearealer for beboere

Tak Saltak med teglstein

🧱 Teglstein

Antall: 1

Saltak med takvinkel 22°, gesims 5,9 m, møne 8,0 m

Taktekking for tomannsboligen

Tømrer Tømrerarbeid og montering av trekonstruksjoner

🧱 Tre

Alt tømrerarbeid inkl. montering av ventilasjon

Tømrerarbeid for boligkonstruksjon

Vinduer Fastkarm og sidehengslet vindu

🧱 Tre/aluminium

Antall: 24

Vinduer i ulike størrelser, inkludert toppsving og fastkarm, med god isolasjon

Vinduer til tomannsboligen, inkludert store vindusflater for godt lysinnslipp

Grunnarbeid Arealoverføring og oppmåling

Oppmåling og arealoverføring fra naboeiendom gbnr 79/13 til gbnr 79/181

Klargjøring av tomtegrenser

Ventilasjon Ventilasjonsanlegg

Montering av ventilasjonssystem

Ventilasjon i bolig

Bad Våtromsinnredning og membran

🧱 Membran, fliser

Antall: 3

Membran og flisarbeid i bad, våtrom

Bad og våtrom i hver boenhet

Overflater Fliser og parkett

🧱 Fliser, eikeparkett

Fliser i bad, eikeparkett i oppholdsrom

Innvendige overflater

Dører Ytterdører og balkongdører

🧱 Tre med glass

Antall: 12

Ytterdører og dører til sportsboder og tekniske rom

Dører til bolig og tilhørende boder

Grunnarbeid Graving og opparbeidelse av tomt

Graving for byggegrop, adkomst, utomhusanlegg og overvannshåndtering

Grunnarbeider for bolig og uteområder

VVS Sanitærinstallasjoner innvendig og utvendig

Innvendig VA-anlegg, utvendig VA-anlegg, tilkobling til kommunalt nett, vannmåler, stoppekraner

VVS-installasjoner for bolig

Betong Plate på mark og fundamentering

🧱 Betong

Plate på mark, radonsikring, fundamentering for bolig

Betongarbeider for grunnmur og fundament

Fasade Liggende trekledning

🧱 Tre

Antall: 1

Liggende trekledning i moderne stil

Fasadebekledning for tomannsboligen

Utendørs Parkeringsareal og snuareal

🧱 Grus, permeable dekker

Antall: 2

Parkeringsplasser for to biler per boenhet, snuareal med permeable dekker og infiltrasjonstiltak

Utearealer for parkering og adkomst

Plantegning

Leilighet 1 118.2 m²

Etasje 1 59.1 m²

Rom Areal Vinduer Dører
Stue 101 36.9 m² 2 2
Kjøkken 102 9.3 m² 1 1
Gang 103 1.8 m² 0 2
Bad 104 3.7 m² 0 1
Entré 105 5.5 m² 0 2
Stue 106 36.9 m² 2 1
Kjøkken 107 9.3 m² 1 1
Gang 108 1.8 m² 0 2
Bad 109 3.7 m² 0 1
Entre 110 5.5 m² 0 2

Etasje 2 59.1 m²

Rom Areal Vinduer Dører
Stue 201 36.9 m² 2 2
Kjøkken 202 9.3 m² 1 1
Gang 203 1.8 m² 0 2
Bad 204 3.7 m² 0 1
Entré 205 5.5 m² 0 2
Sovrom 1 Sov1 9.7 m² 1 1
Sovrom 2 Sov2 11.7 m² 1 1
Sovrom 3 Sov3 10.9 m² 1 1
Sovrom 4 Sov4 8.6 m² 1 1
Bad 2 Bad2 4.2 m² 0 1
Gang 2 Gang2 7.1 m² 0 2
Tilkobling for vaskemaskin Tilkobling for vaskemaskin 0.0 m² 0 0
Sov1 101 9.7 m² 1 1
Sov2 102 11.7 m² 1 1
Bad2 103 4.1 m² 0 1
Gang2 104 7.1 m² 0 3
Sov3 105 10.8 m² 1 1
Sov4 106 8.6 m² 1 1
Bad2 206 4.2 m² 0 1
Teknisk rom 207 6.6 m² 0 1
Teknisk rom 208 6.2 m² 0 1
Sov2 209 11.7 m² 1 1
Sov3 210 10.9 m² 1 1
Sov4 211 8.6 m² 1 1
Gang2 212 7.1 m² 0 2
Bad2 213 4.2 m² 0 1

Fasader

Enebolig

Vest
Materiale
Tre
Taktype
Saltak
Takmat.
Tegl
Høyde
6.5 m
Mønehøyde
8.2 m
Vinduer
8
Dører
2
Synlige etasjer
2
Nord
Materiale
Tre
Taktype
Saltak
Takmat.
Tegl
Høyde
6.5 m
Mønehøyde
8.2 m
Vinduer
1
Dører
0
Synlige etasjer
1
Sør
Materiale
Tre
Taktype
Saltak
Takmat.
Tegl
Høyde
6.0 m
Mønehøyde
8.0 m
Vinduer
2
Dører
2
Synlige etasjer
2
Øst
Materiale
Tre
Taktype
Saltak
Takmat.
Tegl
Høyde
6.0 m
Mønehøyde
8.0 m
Vinduer
6
Dører
2
Synlige etasjer
2
Syd
Materiale
Tre
Taktype
Saltak
Takmat.
Tegl
Høyde
6.0 m
Mønehøyde
8.0 m
Vinduer
1
Dører
0
Synlige etasjer
2

Hendelser

15.04.2026 Dalenveien 75, anmodning om utsettelse av frist supplering
30.03.2026 Dalenveien 75, tilbakemelding på mottatt dokumentasjon
23.03.2026 Dalenveien 75, foreløpig avklaring av revidert tiltak
16.03.2026 Dalenveien 75, tilbakemelding på mottatt redegjørelse
27.01.2026 Dalenveien 75, revurdering av varsel og dispensasjonssøknad dispensasjon
26.01.2026 Dalenveien 75, anmodning om revurdering av varsel om avslag på søknaden avslag
20.01.2026 Dalenveien 75, anmodning om utsettelse av frist
20.01.2026 Dalenveien 75, vi vurderer å avslå søknaden søknad
20.01.2026 79/181, Dalenveien 75 - Uttalelse til søknad om dispensasjon fra kommuneplan for oppføre tomannsbolig dispensasjon
20.01.2026 Dalenveien 75, oppføring av tomannsbolig - Uttalelse
20.01.2026 Dalenveien 75, Supplerende dokumentasjon vedrørende kantsone og årssikker vannføring
07.11.2025 Dalenveien 75, anmodning om uttalelse
30.10.2025 Dalenveien 75, vi trenger flere opplysninger for å behandle søknaden din søknad
10.10.2025 Dalenveien 75 - gbnr 79/181 - supplerende dokumentasjon
06.10.2025 Dalenveien 75 Supplering av søknad 79/181 søknad
02.09.2025 SV: BYGG 24/02064 Dalenveien 75 - uttalelse fra avdeling miljø og landbruk
02.09.2025 Dalenveien 75, har etterspurt uttalelse fra avdeling miljø og landbruk
01.09.2025 Dalenveien 75, spørsmål om uttalelse fra avdeling Miljø og landbruk
23.08.2025 Dalenveien 75, vi trenger flere opplysninger for å behandle søknaden din søknad
07.08.2025 Dalenveien 75 - snitt bekk
07.08.2025 Dalenveien 75,situasjonsplan bekk
14.07.2025 Dalenveien 75 Supplering av søknad 79/181 søknad
14.07.2025 Dalenveien 75, anmodning om ny utsatt frist
30.05.2025 Dalenveien 75, utsettelse av frist
29.04.2025 Dalenveien 75, utsettelse av frist
28.04.2025 Dalenveien 75, anmodning om utsettelse av frist
28.04.2025 revidert situasjonplan
11.03.2025 Dalenveien 75, komplettering av søknad søknad
07.03.2025 Kopi: 79/181 Dalenveien 75 - Avkjørselstillatelse
06.03.2025 79/181 Dalenveien 75, kopi: Foreløpig tilbakemelding på søknad om avkjørsel søknad
04.02.2025 Dalenveien 75, vi trenger flere opplysninger for å behandle søknaden din søknad
20.12.2024 Dalenveien 75, søknad om tillatelse i ett trinn søknad