NewConstruction Rammetillatelse Tomannsbolig

Oppføring av tre boliger i Dronningveien 27, Krokkleiva

📍 Dronningveien 27 , 3531 KROKKLEIVA

Nøkkelinfo

Sakstype
Nybygg
Bygningstype
Tomannsbolig
Bruksareal
347 m²
Boenheter
3
Kommune
Hole
Fylke
Buskerud
Gnr / Bnr
231 / 62
Saksnummer
25/2404
Fase
Rammetillatelse

Om byggesaken

Tre nye boliger oppføres på eiendommen Dronningveien 27 med samlet bebygd areal på 347 m² og parkeringsareal på 54 m². Boligene er to-etasjes med saltak og mønehøyde på ca. 5,9 meter over terreng, tilpasset eksisterende terreng og omkringliggende bebyggelse. Prosjektet inkluderer riving av eksisterende bolig og garasje, samt omlegging av en bekk med økning av åpen bekkestrekning fra 26 til ca. 40 meter, med naturlig bunnsubstrat og svinger for å bedre miljøforhold. Det planlegges tre boenheter med garasje og utendørs parkeringsplasser, og tiltaket har godkjent overvannshåndtering og stabilitetsvurderinger. Byggene har et moderat arkitektonisk uttrykk og er i tråd med dispensasjoner gitt for høyde, etasjetall og byggegrenser.

Produkter og materialer

Tømrer Bygging av boligkonstruksjoner

🧱 Tre

Antall: 3

Tømrerarbeid for tre boliger med saltak og trefasade

Tømrerarbeid for boligkonstruksjoner

Gulv Innvendige gulv

Innvendige gulv i boliger, materialvalg ikke spesifisert

Gulv i boligene, materialvalg ikke detaljert

Fasade Tre fasade med saltak

🧱 Tre

Antall: 3

Saltak med mønehøyde ca. 5,9 m, gesimshøyde ca. 6,5 m

Tre boliger med trepanel og saltak, tilpasset terreng

Rekkverk Rekkverk på terrasser og balkonger

Rekkverk iht. TEK17 på terrasser og balkonger

Sikkerhetsrekkverk på terrasser og balkonger

VVS Vann og avløp

Offentlig vann og avløp tilkoblet, overvannshåndtering planlagt

VVS-installasjoner med offentlig vann og avløp, overvannshåndtering iht. plan

Betong Fundament og grunnmur

Fundament og grunnmur iht. TEK17 krav

Betongfundament og grunnmur for tre boliger

Grunnarbeid Tomtearbeid og bekketrase

Omlegging av bekk med ny åpen trase på ca. 40 meter, stabilitet og erosjonssikring

Grunnarbeid med omlegging av bekk, inkl. erosjonssikring og stabilitetsvurdering

Bad Bad og vaskerom

Antall: 6

Bad og vaskerom i hver bolig, iht. tegninger

Sanitærrom i tre boliger

Garasjeport Garasjeport i bolig

Antall: 3

Garasjeporter tilknyttet hver bolig

Garasjeporter for tre boliger

Tak Saltak

Antall: 3

Saltak på tre boliger

Taktekking med saltak på tre boliger

Terrasse Terrasser og balkonger

Antall: 3

Terrasser tilknyttet boligene, inkl. balkong på hus 3

Utendørs terrasser og balkong på boligene

Dører Ytterdører og garasjeporter

Antall: 9

Ytterdører og garasjeporter i tre boliger

Ytterdører og garasjeporter iht. fasadetegninger

Vinduer Fasadevindu

Antall: 18

Vinduer fordelt på fasader, antall fra fasadetegninger

Fasadevinduer i tre boliger, ulike størrelser

Elektro Elektrisk installasjon

Elektrisk installasjon iht. TEK17

Elektriske installasjoner i tre boliger

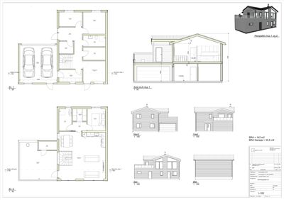
Plantegning

Enebolig 0.0 m²

Etasje 1 0.0 m²

Rom Areal Vinduer Dører
Garasje G01 0.0 m² 0 0
Stue 101 35.8 m² 2 1
Kjøkken 102 14.6 m² 0 1
Spisestue 103 27.9 m² 1 1
Bad 104 6.8 m² 0 1
Gang 105 2.9 m² 0 0
Vaskerom 106 5.8 m² 0 1
Sovegang 107 2.9 m² 0 0
Bad 108 6.8 m² 0 1
Sovegang 109 2.9 m² 0 0

Etasje 2 0.0 m²

Rom Areal Vinduer Dører
Stue 201 35.8 m² 2 1
Kjøkken 202 14.6 m² 0 1
Spisestue 203 27.9 m² 1 1
Bad 204 6.8 m² 0 1
Gang 205 2.9 m² 0 0
Vaskerom 206 5.8 m² 0 1
Sovegang 207 2.9 m² 0 0

Fasader

Hus 3

Nord
Materiale
Tre
Taktype
Saltak
Høyde
6.5 m
Mønehøyde
8.2 m
Vinduer
4
Dører
1
Synlige etasjer
2
Vest
Materiale
Tre
Taktype
Saltak
Høyde
6.5 m
Mønehøyde
8.2 m
Vinduer
2
Dører
1
Synlige etasjer
2
Sør
Materiale
Tre
Taktype
Saltak
Høyde
6.5 m
Mønehøyde
8.2 m
Vinduer
4
Dører
1
Synlige etasjer
2
Øst
Materiale
Tre
Taktype
Saltak
Høyde
6.5 m
Mønehøyde
8.2 m
Vinduer
2
Dører
1
Synlige etasjer
2

Hendelser

13.04.2026 Klage på byggesaksgebyr – sak 25/2404 Dronningveien 27
08.04.2026 Rammetillatelse - gnr 231 bnr 62 - Dronningveien 27 - rammetillatelse for oppføring av tre boliger
11.03.2026 Dronningveien 27- Tilbakmelding fra ansvarlig søker
11.03.2026 Dronningveien 27- brev til ansvarlig søker
10.03.2026 231/62 - Dronningveien 27 - godkjenning av tiltak i vassdrag fra Buskerud fylkeskommune
02.02.2026 Tilbakemelding om mangler - gnr 231 bnr 62 - Dronningveien 27 - rammetillatelse for oppføring av boliger
18.12.2025 231/62 - Dronningveien 27 - Foreløpigsvar om rammetillatelse
16.12.2025 231/62 - Dronningveien 27 - Søknad om rammetillatelse