Rendering
Bildet viser en serie med 3D-visualiseringer av et byggeprosjekt, inkludert et fasadeopprikk og perspektivbilder av hele anlegget.
1 / 79
NewConstruction
Unknown
Tomannsbolig
Oppføring av firemannsbolig, tilbygg og bruksendringer
📍 Festningsgata 16A , 1767 HALDEN
Nøkkelinfo
- Sakstype
- Nybygg
- Bygningstype
- Tomannsbolig
- Kommune
- Halden
- Fylke
- Østfold
- Gnr / Bnr
- 160 / 358
- Saksnummer
- 2020/2390
- Fase
- Unknown
Om byggesaken
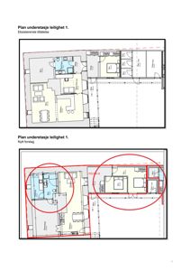
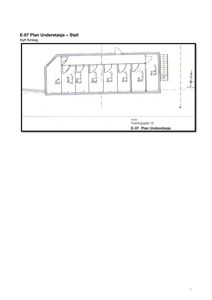
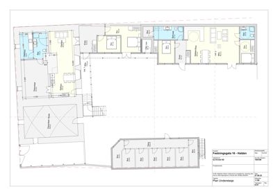
Oppføring av ny firemannsbolig (tilbygg) på tomt 160/358, samt bruksendring av eksisterende stall til felleskjøkken og kjeller til to leiligheter med fravik fra TEK17.
Hendelser
10.04.2026
160/358 - Festningsgata 16 - Supplering av søknad
16.01.2026
Igangsettingstillatelse nr. 3
13.01.2026
160/358 - Festningsgata 16 - Søknad om igangsettingstillatelse
17.12.2025
160/358 - Festningsgata 16 - Supplering av søknad
17.12.2025
160/358 - Festningsgata 16 - Supplering av søknad
28.11.2025
Varsel om tilbaketrekking av igangsettingstillatelse
14.11.2025
Foreløpig vurdering av søknaden
07.11.2025
160/358 - Festningsgata 16 - Søknad om endring av gitt tillatelse eller godkjenning
29.09.2025
Halden kommune - bruksendring - gbnr. 160/358 . 160/359 - Festningsgata 16 - Uttalelse
18.08.2025
Kopi av e-post fra søker til Østfold fylkeskommune
09.07.2025
Orientering om endret høydeplassering
09.07.2025
Svar på e-post vedr. endret høydeplassering av bygg
14.03.2025
Igangsettingstillatelse nr. 2
13.03.2025
Melding om endring av ansvarsrett - PRO/UTF sanitærinstallasjoner
13.03.2025
160/358 - Festningsgata 16 - Supplering av søknad
03.03.2025
Festningsgata 16 - opphør av ansvarsrett
28.02.2025
160/358 - Festningsgata 16 - Søknad om igangsettingstillatelse
20.02.2025
Bekreftelse på mottak av melding om endring av tiltakshaver og ansvarlig søker
14.02.2025
160/358 - Festningsgata 16 - Supplering av søknad
22.11.2024
Igangsettingstillatelse nr. 1
21.11.2024
160/358 - Festningsgata 16 - Søknad om igangsettingstillatelse
13.12.2021
Vedtak - Rammetillatelse - 160/358, 359 - Festningsgata 16
22.10.2021
Halden kommune - Gbnr 160/358 - Festningsgata 16 - Diverse bruksendring, restaurering/reetablering - Nytt bygg - Til uttalelse
22.10.2021
Byggesak 2020/2390-8 Festningsgata 16 - Simen Østby
08.09.2021
Oversendelse av sak til uttalelse
06.09.2021
Kommunen orienterer
01.09.2021
Byggesak 2020/2390-8 Festningsgata 16 - Simen Østby
01.09.2021
Re: Byggesak 2020/2390-8 Festningsgata 16 - Simen Østby
23.08.2021
Kommunen etterspør ytterligere opplysninger
06.07.2021
Forvaltningsmelding
25.06.2021
Byg160/358 og 59 - Festningsgata 16 -Supplerende opplysninger
03.07.2020
Varsel om mangler - behov for ytterligere opplysninger