NewConstruction UnderBehandling Tomannsbolig

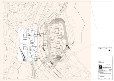
To firemannsboliger med garasjer i Spillemannsbekken, Tvedestrand

📍 Fjærkleivene 13A , 4900 TVEDESTRAND

Nøkkelinfo

Sakstype
Nybygg
Bygningstype
Tomannsbolig
Bruksareal
699 m²
Boenheter
8
Kommune
Tvedestrand
Fylke
Agder
Gnr / Bnr
28 / 11
Saksnummer
2024/2179
Fase
Under behandling

Om byggesaken

Prosjektet omfatter oppføring av to firemannsboliger i Spillemannsbekken, Tvedestrand kommune, med totalt 8 boenheter. Bygningene har saltak med rød teglstein, hvit trekledning og er plassert i skrånende terreng med tilpasning til eksisterende nivåer. Det er etablert carportanlegg som senere er omgjort til garasjer med samme fotavtrykk, plassert mellom fylkesvei og boligene. Bygningene har et bebygd areal på 699 m², med uteoppholdsarealer, lekeplasser, parkeringsplasser og teknisk infrastruktur. Grunnarbeider inkluderer sprengning og fylling med steinfylling på fjell, samt muring av skråninger. Prosjektet har gjennomgått nødvendige grunnundersøkelser, miljøkartlegging og tekniske planer for vann, avløp og ventilasjon. Det er gitt midlertidige brukstillatelser med pågående sluttføring av mindre arbeider og søknad om ferdigattest planlagt.

Produkter og materialer

Tak Saltak med teglstein

🧱 Rød, enkeltkrummet tegl

Saltak tekkes med rød teglstein

Taktekking for boligene og garasjene

Utendørs Utomhusplan, lekeplasser, parkeringsplasser, gangveier

Opparbeidelse av uteoppholdsarealer, lekeplasser, parkeringsplasser inkl. HC-plass, gangforbindelser og frisiktsoner

Utomhusanlegg og infrastruktur

Isolasjon Isolasjon i vegger og tak

Isolasjon iht. TEK17 krav for energivennlige bygg

Isolasjon i boligene

Dører Ytterdører og balkongdører

Antall: 24

Ytterdører og dører til terrasser og balkonger

Elektro Brannkonsept og elektroinstallasjoner

Brannkonsept og elektroinstallasjoner i boligene

Elektroarbeider og brannsikring

Ventilasjon Ventilasjons- og klimainstallasjoner

Ventilasjons- og klimainstallasjoner i boligene

Ventilasjonssystemer

Maling Utvendig og innvendig maling

Maling av fasader og innvendige overflater

Overflatebehandling

Garasjeport Garasjeport i tre

🧱 Tre

Antall: 3

Garasjer med samme fotavtrykk som opprinnelige carporter, 3 stk

Garasjeporter for 3 garasjer

VVS Sanitærinstallasjoner og VA-anlegg

Sanitærinstallasjoner, vannforsyning, avløp og overvannshåndtering

VVS-installasjoner i boligene og uteområder

Mur Forstøtningsmurer

Muring av skråninger for å støtte fyllinger

Forstøtningsmurer i terreng

Tømrer Bærende og ikke-bærende konstruksjoner i tre

🧱 Tre

Tømrerarbeider for bærende og ikke-bærende konstruksjoner

Tømrerarbeid i boligene

Vinduer Fasadevindu

Antall: 14

Vinduer i boligene fordelt på soverom, stue og kjøkken

Grunnarbeid Sprengning og fylling

🧱 Steinfylling på fjell, muring av skråninger

Sprengning av fjell, fylling med steinfylling, muring av skråninger med helning 2/1

Grunnarbeider for fundamentering og terrengtilpasning

Betong Plasstøpte betongkonstruksjoner

Betongkonstruksjoner i bygg og fundamenter

Fasade Trekledning

🧱 Hvit trekledning

Hvit trekledning på boligene

Fasademateriale for boligene

Trapper Innvendige trapper

Antall: 2

Innvendige trapper i boligene

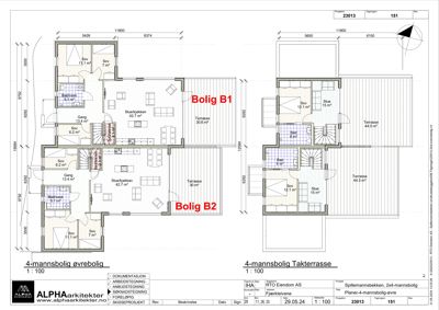
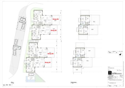
Plantegning

Enebolig 305.5 m²

Etasje 2 185.0 m²

Rom Areal Vinduer Dører
Soverom Sov 11.1 m² 1 1
Soverom Sov 7.0 m² 1 1
Bad/vask Bad/vask 5.1 m² 0 1
Gang Gang 13.4 m² 0 2
Soverom Sov 6.2 m² 1 1
Stue/kjøkken Stue/kjøkken 42.7 m² 0 1
Terrasse Terrasse 30.6 m² 0 1
Soverom Sov 12.1 m² 1 1
Stue Stue 15.0 m² 1 1
Bad Bad 6.0 m² 0 1
Terrasse Terrasse 44.5 m² 0 1

Etasje 1 120.5 m²

Rom Areal Vinduer Dører
Stue 101 35.2 m² 3 2
Kjøkken 102 12.5 m² 1 1
Gang 103 8.0 m² 0 3
Bad 104 6.5 m² 0 1
Sov 105 12.0 m² 1 1
Vaskerom 106 4.5 m² 0 1
Bod 107 5.0 m² 1 1
Stue/kjøkken 108 41.4 m² 2 1
Sov 109 6.6 m² 0 1
Terrasse 110 41.5 m² 0 1
Carport 111 20.0 m² 0 1
Sportsbod 112 5.0 m² 0 1
Bad/vask 113 5.0 m² 0 1
Bod/teknisk 114 2.8 m² 0 1
Gang 115 13.0 m² 0 3
Sov 116 13.0 m² 1 1
Sov 117 6.0 m² 0 1
Stue/kjøkken 118 41.4 m² 2 1
Sov 119 6.6 m² 0 1
Terrasse 120 45.0 m² 0 1

Fasader

Garasje

Sør
Materiale
Tre
Taktype
Saltak
Høyde
3.8 m
Mønehøyde
5.0 m
Vinduer
0
Dører
0
Synlige etasjer
1
Øst
Materiale
Tre
Taktype
Saltak
Takmat.
Tegl
Høyde
3.8 m
Mønehøyde
5.0 m
Vinduer
0
Dører
0
Synlige etasjer
1
Nord
Materiale
Tre
Taktype
Saltak
Høyde
3.8 m
Mønehøyde
5.0 m
Vinduer
0
Dører
0
Synlige etasjer
1
Vest
Materiale
Tre
Taktype
Saltak
Takmat.
Tegl
Høyde
3.8 m
Mønehøyde
5.0 m
Vinduer
0
Dører
0
Synlige etasjer
1

Hendelser

25.03.2026 Vedtak - endring av gitt tillatelse - oppføring av to firemannsboliger med carportanlegg 28/11
17.03.2026 Søknad om endring av gitt tillatelse 28/11
16.03.2026 Midlertidig brukstillatelse - Spillemannsbekken -
16.03.2026 Vedtak - midlertidig brukstillatelse - Spillemannsbekken - 28/11
17.12.2025 Vedtak - midlertidig brukstillatelse for gnr 28 bnr 11, Spillmannsbekken
18.11.2025 Søknad om forlengelse av midlertidig brukstillatelse
18.11.2025 Vedtak forlengelse av midlertidig brukstillatelse
16.09.2025 Vedtak - Forlengelse av midlertidig brukstillatelse
08.09.2025 Søknad om forlengelse av midlertidig brukstillatelse
09.07.2025 Vedrørende vedtak om midlertidig brukstillatelse - Spillemannsbekken
07.07.2025 Vedtak - midlertidig brukstillatelse - Spillemannsbekken - gnr 28 bnr 11
24.06.2025 Søknad om midlertidig brukstillatelse - gnr 28 bnr 11
05.07.2024 Vedtak - Fjærekleivene - oppføring av to firemannsboliger med carportanlegg - Spillemannsbekken - gnr 28 bnr 11
05.07.2024 Dokumentasjon Statens vegvesen
05.07.2024 Spillemannsbekken - søknad om igangsettingstillatelse - oppdatert grunnundesøkelse
03.07.2024 Spillemannsbekken, søknad om igangsettingstillatelse, behov for dokumentasjon
17.06.2024 Mottaksbrev - 28/11/0/0 - Fjærekleivene - Søknad om igangsettingstillatelse til oppføring av to firemannsboliger med carportanlegg - Spillemannsbekken - gnr 28 bnr 11
12.06.2024 28/11/0/0 - Fjærekleivene - Søknad om igangsettingstillatelse til oppføring av to firemannsboliger med carportanlegg - Spillemannsbekken - gnr 28 bnr 11