NewConstruction Soeknad Tomannsbolig

Ny vertikaltdelt tomannsbolig i Føynveien 12D, Husøysund

📍 Føynveien 12D , 3132 HUSØYSUND

Nøkkelinfo

Sakstype
Nybygg
Bygningstype
Tomannsbolig
Bruksareal
400 m²
Boenheter
2
Kommune
Færder
Fylke
Vestfold
Gnr / Bnr
19 / 306
Saksnummer
2026/3922
Fase
Søknad

Om byggesaken

Ny vertikaltdelt tomannsbolig på eiendommen Føynveien 12D i Husøysund, Færder kommune, med totalt bruttoareal på ca. 400 m² fordelt på to boenheter. Bygget har to etasjer med flatt tak og trefasade, og inkluderer garasje, bod, vaskerom, flere soverom, bad, stue/kjøkken og utearealer som terrasse og balkong. Boligen er tilpasset terrenget med svakt skrånende tomt og har gode uteoppholdsarealer både på bakkeplan og i 2. etasje. Fundamentering tilpasses varierende grunnforhold med direktefundamentering på stedlig grunn eller masseutskifting/peler der det er nødvendig. Det er planlagt støyskjerming mot vei, og bygget tilfredsstiller krav til lydisolasjon og støyforhold. Prosjektet omfatter også nødvendige grunnarbeider, vann- og avløpsanlegg, og tekniske installasjoner.

Produkter og materialer

VVS Sanitærinstallasjoner

Sanitærinstallasjoner i henhold til godkjent prosjektering og VA-tilknytning

Sanitærinstallasjoner inkludert tilknytning til offentlig vann og avløp

Dører Ytterdører og balkongdører

🧱 Tre/Aluminium

Antall: 10

Ytterdører og balkongdører med lydisolasjon tilpasset støykrav

Ytterdører og balkongdører med lydisolasjon og tilpasset design for tomannsbolig

Fasade Trepanel

🧱 Tre

Trepanel fasade med god visuell kvalitet og tilpasning til terreng

Trepanel som fasademateriale for tomannsboligen

Vinduer Fasadevindu

🧱 Tre/Aluminium

Antall: 22

Vinduer med lydisolasjon Rw+Ctr 32-34 dB mot støyutsatte fasader, iht. støyrapport

Fasadevinduer med høy lydisolasjon for å tilfredsstille krav til innendørs støynivå

Annet Støyskjerm

🧱 Tett konstruksjon med flatevekt minimum 12 kg/m2

Støyskjerm langs Føynlandveien med høyde 1,8-2,2 m over terreng, absorberende mot vei

Støyskjerm for å redusere trafikkstøy mot uteoppholdsareal

Gulv Innvendige gulvflater

🧱 Parkett, fliser

Innvendige gulv med eikeparkett og fliser på bad

Innvendige gulvflater i boligene

Garasjeport Garasjeport

Antall: 2

Garasjeporter tilknyttet hver boenhet

Garasjeporter for to garasjer

Rekkverk Tett rekkverk på balkong

🧱 Tre eller annet tett materiale

Antall: 1

Tett rekkverk på balkong K6, høyde 1,2 m over terrassegulv for støydemping

Tett rekkverk for støyskjerming på balkong

Terrasse Terrasse og balkong

🧱 Tre og rekkverk

Antall: 3

Terrasser på ca. 20 m² og balkong på ca. 31,8 m² med tett rekkverk på støyskjermet side

Utearealer med terrasse og balkong for begge boenheter

Maling Utvendig og innvendig maling

Maling av trefasade og innvendige overflater

Maling for fasade og innvendige flater

Grunnarbeid Graving og fundamentering

🧱 Kvalitetsfyllmasser, betong, peler

Direktefundamentering på stedlig grunn, masseutskifting eller pelefundamentering etter geoteknisk rapport

Grunnarbeider med tilpasning til varierende grunnforhold, inkludert jordvoll og støyskjerm

Betong Fundamenter og ringmur

🧱 Betong

Betongfundamenter med min. 60 cm bredde og 50 cm overdekning

Betongfundamenter for tomannsboligen iht. geoteknisk prosjektering

Elektro Elektriske installasjoner

Elektriske installasjoner iht. TEK17 og gjeldende forskrifter

Elektriske installasjoner for boligene

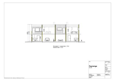
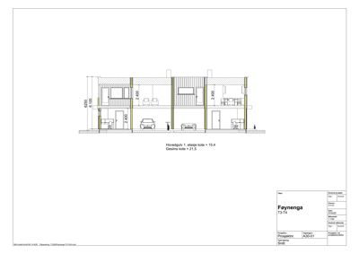
Tak Flatt tak

🧱 Takmembran og isolasjon

Antall: 1

Flatt tak med isolasjon og membran iht. TEK17

Flatt tak med nødvendig isolasjon og membran for boligbygg

Trapper Innvendig trapp

🧱 Tre

Antall: 2

Innvendige trapper mellom etasjer i hver boenhet

Innvendige trapper for adkomst mellom 1. og 2. etasje i hver boenhet

Ventilasjon Balansert ventilasjon

Balansert ventilasjon for å sikre luftkvalitet og lydisolasjon

Ventilasjonsanlegg for boligene

Bad Baderomsinnredning

Antall: 6

Bad med sanitærutstyr og fliser iht. tegninger

Baderomsinnredning for 6 bad i to boenheter

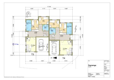
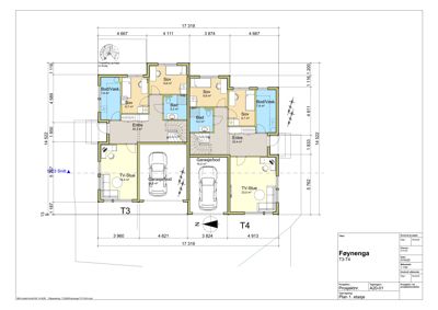
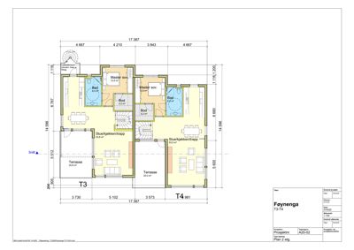
Plantegning

Enebolig 480.7 m²

Etasje 1 272.0 m²

Rom Areal Vinduer Dører
TV-Stue 101 18.4 m² 1 1
Garasje/bod 102 24.0 m² 0 1
Entre 103 20.3 m² 0 2
Bod/Vask 104 7.8 m² 0 1
Sov 105 8.7 m² 1 1
Sov 106 9.8 m² 1 1
Bad 107 5.2 m² 0 1
Garasje/bod 108 19.2 m² 0 1
TV-Stue 109 23.0 m² 1 1
Entre 110 20.4 m² 0 2
Sov 111 9.8 m² 1 1
Sov 112 8.7 m² 1 1
Bad 113 5.2 m² 0 1
Bod/Vask 114 7.8 m² 0 1
Garasje Garasje 29.8 m² 0 1
Vaskerom Vask 4.9 m² 0 1
Entré Entre 18.6 m² 0 1
Soverom Sov 11.7 m² 1 1
Bad Bad 6.9 m² 0 1

Etasje 2 208.7 m²

Rom Areal Vinduer Dører
Stue/kjøkken/trapp 201 53.8 m² 2 2
Terrasse 202 20.8 m² 0 0
Bad 203 6.5 m² 0 1
Master sov. 204 12.9 m² 1 1
Bod 205 4.2 m² 0 1
Stue/kjøkken/trapp 206 53.5 m² 2 2
Terrasse 207 20.0 m² 0 0
Bad 208 6.5 m² 0 1
Master sov. 209 12.9 m² 1 1
Bod 210 4.2 m² 0 1
Balkong Balkong 31.8 m² 0 1
Stue/kjøkken Stue/kjøkken 50.1 m² 2 1
WC/dusj WC/dusj 3.7 m² 0 1
Soverom/TV stue Sov/TV stue 11.0 m² 1 1
Kjøkken Kjøkken 2.6 m² 0 0
Bad 211 6.5 m² 0 1
Bod 212 4.2 m² 0 1

Fasader

Enebolig

Nord
Materiale
Tre
Taktype
Flatt tak
Vinduer
5
Dører
1
Balkonger
1
Synlige etasjer
2
Sør
Materiale
Tre
Taktype
Flatt tak
Vinduer
4
Dører
1
Synlige etasjer
2
Vest
Materiale
Tre
Taktype
Flatt tak
Vinduer
4
Dører
0
Balkonger
2
Synlige etasjer
2
Øst
Materiale
Tre
Taktype
Flatt tak
Vinduer
5
Dører
0
Synlige etasjer
2

Hendelser

20.04.2026 Gbnr 19/306 - Føynveien 12D og 12E - Vertikaltdelt tomannsbolig - Søknad mottatt
15.04.2026 Gbnr 19/306 - Føynveien 12D og 12E - Vertikaltdelt tomannsbolig - Søknad om tillatelse i ett trinn