NewConstruction Soeknad Tomannsbolig

Ny tomannsbolig med carport og støttemur på Fredsvolljordet 2 og 4

📍 Fredsvolljordet 2 og 4

Nøkkelinfo

Sakstype
Nybygg
Bygningstype
Tomannsbolig
Bruksareal
175 m²
Boenheter
2
Kommune
Østre Toten
Fylke
Innlandet
Gnr / Bnr
22 / 41
Saksnummer
2026/1700
Fase
Søknad

Om byggesaken

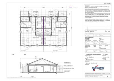
Ny verkaldelt tomannsbolig med totalt 175,4 m² BRA fordelt på to boenheter, hver med 82,6 m² oppvarmet BRA og sportsbod på 5,1 m². Boligen har saltak med 22 graders takvinkel, mønehøyde ca. 5,3 m og gesimshøyde ca. 3,1 m, og er kledd med liggende panel og sort takstein. Hver boenhet har to terrasser på henholdsvis 6,7 m² og 18,6 m². Det oppføres også en carport på 36,3 m² med saltak og gesimshøyde 2,8 m, mønehøyde 4 m, i tre. Terrengtilpasning sikres med støttemur inntil 2,8 m høy, plassert nær nabogrense med dispensasjon. Bygget har moderne isolasjon og sikkerhetsglass på vinduer med lav brystningshøyde. Prosjektet inkluderer grunnarbeid, betongkonstruksjoner, tømrerarbeid, VVS, elektro, ventilasjon og landskapsarbeid.

Produkter og materialer

VVS Sanitærinstallasjoner

Innvendige sanitærinstallasjoner og utvendig vann og avløp

VVS-installasjoner for bolig

Maling Utvendig maling

Boligen males hvit utvendig

Maling av fasade

Fasade Liggende kledning

🧱 Tre

Liggende panel på tomannsbolig

Fasade med liggende trepanel

Ventilasjon Balansert ventilasjon

Antall: 2

Ett anlegg pr. boenhet, prosjektert av SYSTEMAIR AS

Balansert ventilasjon for hver boenhet

Gulv Innvendige gulv

Isolerte gulvkonstruksjoner med U-verdi 0,114 W/m2K

Isolerte gulv i bolig

Pipe Skorstein/pipe

Antall: 2

Skorstein for hver boenhet, unntak ved vannbåren varme

Skorstein for ildsted i bolig

Betong Støttemur

🧱 Betong

Støttemur inntil 2,8 m høy for terrengstabilisering, plassert nær nabogrense med dispensasjon

Støttemur for terrengtilpasning og stabilitet

Tak Saltak carport

🧱 Tre, takstein

Antall: 1

Saltak med mønehøyde 4 m, gesimshøyde 2,8 m, takvinkel 22°

Saltak på carport i tre

Dører Hovedinngangsdør med luminanskontrast

Antall: 2

Hovedinngangsdør skal ha luminanskontrast 0,4 mot omliggende flater

Hovedinngangsdører til to boenheter med kontrastkrav

Rekkverk Sikkerhetsrekkverk balkonger og terrasser

Rekkverk iht. TEK17 og sikkerhetskrav for balkonger og terrasser

Sikkerhetsrekkverk på uteplasser

Tømrer Trekonstruksjoner og montering

🧱 Tre

Precut vegger, bjelkelag, limtre/stål bærende elementer iht. Landheim AS tegninger

Tømrerarbeid for bolig og carport

Garasjeport Garasjeport carport

🧱 Tre

Antall: 2

Garasjeporter på carport med flatt tak

Garasjeporter til carport

Tak Saltak tomannsbolig

🧱 Sort takstein

Antall: 1

Saltak med 22° takvinkel, mønehøyde ca. 5,3 m, gesimshøyde ca. 3,1 m

Saltak med lav takvinkel for bedre terrengtilpasning

Vinduer Fasadevindu med sikkerhetsglass

🧱 3-lags energiglass

Sikkerhetsglass på alle vinduer/balkongdører med brystningshøyde <0,8 m, iht. PBL og glassbransjens anbefalinger

Vinduer med sikkerhetsglass for fasade og balkongdører

Grunnarbeid Tomtearbeid og grunnarbeid

Grunnarbeid, innmåling og utstikking, veg- og utearealer, overvannshåndtering

Grunnarbeid for tomt, vei, og utearealer

Isolasjon Vegger, tak og gulv

Vegger med 148+48 mm isolasjon, tak med 300 mm, gulv med 300 mm isolasjon, alle med lav U-verdi

Isolasjon for energieffektiv bolig

Terrasse Uteplasser/terrasser

Antall: 4

Terrasser på 6,7 m² og 18,6 m² per boenhet

Uteoppholdsareal for hver boenhet

Elektro El-installasjoner

El-installasjoner iht. krav og standarder

Elektriske installasjoner i bolig

Fasader

Carport

Nord
Materiale
Tre
Taktype
Saltak
Høyde
4.0 m
Mønehøyde
4.0 m
Vinduer
0
Dører
0
Synlige etasjer
1
Sør
Materiale
Tre
Taktype
Saltak
Høyde
4.0 m
Mønehøyde
4.0 m
Vinduer
0
Dører
0
Synlige etasjer
1
Øst
Materiale
Tre
Taktype
Flatt tak
Vinduer
0
Dører
0
Synlige etasjer
1
Vest
Materiale
Tre
Taktype
Flatt tak
Vinduer
0
Dører
0
Synlige etasjer
1

Hendelser

21.04.2026 Gbnr 22/41 - Fredsvolljordet 2 og 4 - Støttemur
08.04.2026 Gbnr 22/41 - Fredsvolljordet 2 og 4 - Søknad om tiltak