NewConstruction UnderBehandling Tomannsbolig

Ny 4-mannsbolig i Jensbakken 54, Furnes

📍 Jensbakken 54 , 2320 FURNES

Nøkkelinfo

Sakstype
Nybygg
Bygningstype
Tomannsbolig
Bruksareal
517 m²
Boenheter
4
Kommune
Ringsaker
Fylke
Innlandet
Gnr / Bnr
760 / 156
Saksnummer
25/16650
Fase
Under behandling

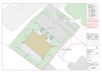
Om byggesaken

Ny 4-mannsbolig i to etasjer med totalt ca. 517 m² BRA oppføres på Jensbakken 54 i Furnes. Bygget har saltak og trekledning, og inneholder fire boenheter med varierende romstørrelser, inkludert oppholdsrom, soverom, bad, gang, sportsbod og terrasser. To boenheter har inngang fra bakkeplan, og to via felles utvendig trapp. Terrassene varierer i størrelse fra ca. 7,7 til 26,3 m². Bygget er tilpasset omkringliggende bebyggelse og har pipe. Det er planlagt omfattende grunnarbeider, riving av eksisterende bod og etablering av ny støpt betongplate. Overvannshåndtering er prosjektert med åpne løsninger og flomvei, og støyforhold er dokumentert med lydisolerende vinduer. Bygget har 14 vinduer og flere dører fordelt på fasader i tre retninger, og det er planlagt tekniske installasjoner som ventilasjon, sanitær og elektro.

Produkter og materialer

Fasade Trekledning

🧱 Tre

Trekledning på yttervegger, 120 mm sandwich konstruksjon med isolert påforing og gipsplater

Yttervegger med trekledning og isolasjon

Terrasse Terrasser

Antall: 7

Terrasser på mellom 7,7 og 26,3 m² tilknyttet boenhetene

Utendørs terrasser for boenhetene

Betong Støpt betongplate

🧱 Betong

Ny støpt betongplate som fundament, erstatter eksisterende plate

Fundament og gulvplate for bygget

Dører Ytterdører og terrassedører

🧱 Tre/kompositt antatt

Antall: 18

Dører til inngang og terrasser, inkludert felles utvendig trapp

Ytterdører og terrassedører for boenheter

Ventilasjon Ventilasjonsanlegg

Ventilasjonsanlegg for boenhetene inkl. kanalføringer, utført av FLEXIT AS

Ventilasjon for boenhetene

Grunnarbeid Overvannshåndtering

Åpen overvannshåndtering med flomvei, infiltrasjon og fordrøyning, prosjektert av TRIFOLIA AS

Overvannshåndtering på tomt og omkringliggende arealer

Vinduer Fasadevindu

🧱 Tre/aluminium ramme antatt

Antall: 14

Lydisolerende vinduer med krav til lydisolasjon pga. støyforhold, 3-lags energiglass antatt

Vinduer for alle boenheter med lydisolasjon

Trapper Utvendig trapp

🧱 Tre/Betong antatt

Antall: 1

Felles utvendig trapp til to av boenhetene

Utvendig trapp for adkomst til boenheter

Isolasjon Veggisolasjon

🧱 120 mm sandwich, isolert påforing

Yttervegger med 120 mm sandwich og isolert påforing

Isolasjon i yttervegger

Grunnarbeid Riving og grunnarbeider

Riving av eksisterende bod og grunnarbeider for ny plate og bygg

Riving og grunnarbeider for nybygg

Maling Utvendig og innvendig maling

Antatt nødvendig for ferdigstillelse, ikke spesifisert i dokumenter

Maling av fasader og innvendige flater

Tak Saltak

🧱 Tre, taktekking ikke spesifisert

Saltak med mønehøyde ca. 8,2 m og gesimshøyde 6 m

Saltak med tilpasset takvinkel og høyde

Gulv Innvendige gulv

Ikke spesifisert i detalj, men sportsboder og bad er inkludert i plantegninger

Innvendige gulv i boenheter

Elektro Elektroinstallasjoner

Elektroinstallasjoner prosjektert av ETEK AS med uavhengig kontroll

Elektriske installasjoner i bygget

VVS Sanitærinstallasjoner og vannforsyning

Sanitærinstallasjoner og vannforsynings- og avløpsanlegg utført av RØR & OLJEFYRINGSSERVICE AS

VVS-installasjoner for boenhetene

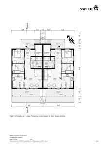
Plantegning

Enebolig 517.2 m²

Etasje 2 269.6 m²

Rom Areal Vinduer Dører
allrom 201 31.9 m² 1 1
sov 202 7.5 m² 1 1
sov 203 10.6 m² 1 1
gang 204 9.4 m² 0 1
bad 205 8.2 m² 0 1
sportsbod 206 5.1 m² 0 1
terrass 207 15.6 m² 0 1
terrass 208 7.8 m² 0 1
terrass 209 7.8 m² 0 1
terrass 210 15.6 m² 0 1
sov 211 7.6 m² 1 1
sov 212 10.6 m² 1 1
gang 213 9.4 m² 0 1
bad 214 8.2 m² 0 1
sportsbod 215 5.1 m² 0 1

Etasje 1 247.6 m²

Rom Areal Vinduer Dører
allrom 101 31.9 m² 3 1
sov 102 7.5 m² 1 1
sov 103 10.6 m² 1 1
gang 104 9.4 m² 0 2
bad 105 8.2 m² 0 1
terrass 106 26.3 m² 0 1
terrass 107 7.7 m² 0 1
sportsbod 108 4.1 m² 0 1

Fasader

Enebolig

Nord
Materiale
Tre
Taktype
Saltak
Høyde
6.0 m
Mønehøyde
8.2 m
Vinduer
4
Dører
2
Balkonger
2
Synlige etasjer
2
Vest
Materiale
Tre
Taktype
Saltak
Høyde
6.0 m
Mønehøyde
8.2 m
Vinduer
6
Dører
1
Balkonger
2
Synlige etasjer
2

Hendelser

14.04.2026 Etterspørsel av tilbakemelding - Nybygg 4-mannsbolig, Gbnr 760/156, Jensbakken 54, Furnes
08.04.2026 Vedrørende behandling av søknad - Nybygg 4-mannsbolig, Gbnr 760/156, Jensbakken 54, Furnes
09.01.2026 Tilbakemelding angående antall boenheter- søknad om oppføring av 4- mannsbolig på eiendom med Gbnr. 760/156, Jensbakken 54, Furnes
22.12.2025 Supplering av søknad, redegjørelse for støyforhold og overvannshåndtering - Nybygg 4-mannsbolig, Gbnr 760/156, Jensbakken 54, Furnes
27.11.2025 Tilbakemelding angående oppføring av 4-mannsbolig på eiendom med Gbnr. 760/156, Jensbakken 54, Furnes
12.11.2025 Søknad om tillatelse - Nybygg 4-mannsbolig, Gbnr 760/156, Jensbakken 54, Furnes