NewConstruction Soeknad Tomannsbolig

Ny firemannsbolig med boder på Kløttreåsen 3, Larvik

📍 Kløttreåsen 3 , 3280 TJODALYNG

Nøkkelinfo

Sakstype
Nybygg
Bygningstype
Tomannsbolig
Bruksareal
250 m²
Boenheter
4
Kommune
Larvik
Fylke
Vestfold
Gnr / Bnr
1037 / 40
Saksnummer
2026/7648
Fase
Søknad

Om byggesaken

Ny firemannsbolig oppføres på Kløttreåsen 3 i Larvik på en tomt på 1166 m². Bygget får et samlet bruksareal på ca. 250 m² fordelt på to etasjer, med tradisjonell bindingsverkskonstruksjon på støpt plate. Fasaden kles med liggende trekledning og enkelte detaljer med stående kledning, og taket får saltak med betongtakstein eller tilsvarende. Boligen inneholder fire separate boenheter med stue/kjøkken, soverom, bad og toalett, samt tilhørende sportsboder på 27,5 m² og parkeringsareal på 54 m². Utomhusanlegget inkluderer ny gårdsplass og snuplass på egen eiendom. Bygget tilfredsstiller krav til sikkerhet mot naturpåkjenninger, og eksisterende tomannsbolig med garasje rives som del av prosjektet.

Produkter og materialer

Dører Ytterdører i tre/alutre

🧱 Tre/aluminium

Antall: 6

Ytterdører i tre/alutre til bolig og boder

Ytterdører for bolig og sportsboder

Vinduer Fasadevindu i tre/alutre

🧱 Tre/aluminium

Antall: 22

Vinduer i tre/alutre, fordelt på fasader sør, vest, nord og øst

Vinduer til bolig med god isolasjonsevne

Bad Bad og toalettinnredning

Antall: 4

Bad og toalett i hver boenhet, med våtromsstandard

Innredning og sanitærutstyr for bad og toalett

Utomhus Gårdsplass og snuplass

Ny gårdsplass og snuplass på egen eiendom

Utomhusanlegg for adkomst og opphold

Ventilasjon Ventilasjonsanlegg

Ventilasjon og klimainstallasjoner planlagt

Ventilasjonsanlegg for boligene

VVS Sanitærinstallasjoner

Sanitærinstallasjoner for fire boenheter og boder

VVS-installasjoner for vann og avløp

Balkong Veranda og markterrasse

🧱 Tre

Antall: 3

Veranda på 13,7 m² i 2. etasje og markterrasse på 13,7 m² i 1. etasje

Utendørs oppholdsarealer tilknyttet boenhetene

Tak Saltak med betongtakstein

🧱 Betongtakstein eller tilsvarende

Saltak med betongtakstein eller liknende materiale

Taktekking for boligbygg

Betong Støpt plate

🧱 Betong

Støpt plate som grunnlag for bindingsverkskonstruksjon

Betongplate som fundament for boligbygg

Tømrer Bindingsverkskonstruksjon

🧱 Tre

Tradisjonell bindingsverkskonstruksjon for bolig

Trekonstruksjon for vegger og bærende elementer

Fasade Kledning

🧱 Liggende og stående trekledning

Liggende trekledning med enkelte detaljer i stående kledning

Utvendig kledning av tre

Mur Murarbeid

Murarbeid i prosjektet

Grunnarbeid Fundamentering og grunnarbeider

Geoteknisk prosjektering og vurdering av bæreevne og setninger iht. geoteknisk områdenotat

Grunnarbeid for ny firemannsbolig på støpt plate, inkl. fundamentering tilpasset grunnforhold

Gulv Innvendige gulv

Innvendige gulv i boligene, materialvalg ikke spesifisert

Elektro Elektriske installasjoner

Elektriske installasjoner for boligene

Parkering Parkeringsareal

54 m² parkeringsareal opparbeides på tomten

Parkeringsplass for beboere

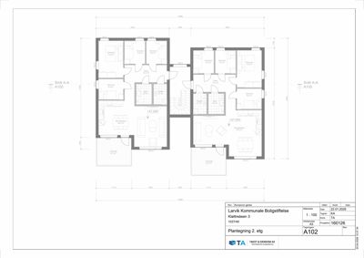
Plantegning

Enebolig 369.8 m²

Etasje 1 193.7 m²

Rom Areal Vinduer Dører
Stue/Kjøkken 101 34.3 m² 1 1
Gang 102 12.3 m² 0 3
Soverom 103 12.3 m² 1 1
Soverom 104 6.4 m² 1 1
Soverom 105 6.4 m² 1 1
Soverom 106 6.8 m² 1 1
Bad 107 4.4 m² 0 1
Toalett 108 3.7 m² 0 1
Markterrasse 109 13.7 m² 0 1

Etasje 2 176.1 m²

Rom Areal Vinduer Dører
Stue/Kjøkken 101 34.3 m² 0 1
Veranda 102 13.7 m² 0 0
Gang 103 12.3 m² 0 2
Soverom 104 12.3 m² 1 1
Soverom 105 6.4 m² 1 1
Soverom 106 6.4 m² 1 1
Soverom 107 6.8 m² 1 1
Bad 108 4.4 m² 0 1
Toalett 109 3.7 m² 0 1

Fasader

Enebolig

Sør
Materiale
Tre
Taktype
Saltak
Vinduer
6
Dører
2
Balkonger
2
Synlige etasjer
2
Vest
Materiale
Tre
Taktype
Saltak
Vinduer
4
Dører
1
Balkonger
1
Synlige etasjer
2
Nord
Materiale
Tre
Taktype
Saltak
Vinduer
8
Dører
1
Synlige etasjer
2
Øst
Materiale
Tre
Taktype
Saltak
Vinduer
4
Dører
0
Synlige etasjer
1

Hendelser

20.04.2026 Søknad om rammetillatelse - Riving av eksisterende tomannsbolig med garasje - Oppføring av firemannsbolig med tilhørende utomhusanlegg - Kløttreåsen 3 - gbnr. 1037/40