NewConstruction UnderBehandling Tomannsbolig

Ny tomannsbolig i Langetjønnveien 34, Kristiansand

📍 Langetjønnveien 36 , 4638 KRISTIANSAND S

Nøkkelinfo

Sakstype
Nybygg
Bygningstype
Tomannsbolig
Bruksareal
432 m²
Boenheter
2
Kommune
Kristiansand
Fylke
Agder
Gnr / Bnr
69 / 120
Saksnummer
24/21852
Fase
Under behandling

Om byggesaken

Ny tomannsbolig oppført i Langetjønnveien 34-36 i Kristiansand med totalt bruttoareal på ca. 216 m² per boenhet, fordelt på underetasje, 1. etasje og loft. Bygget har saltak og trekledning, med flere vinduer og dører fordelt på fasadene. Hver boenhet inneholder blant annet stue/kjøkken, flere soverom, bad, bod, vaskerom, mediarom og alkove. Det er to trapper i bygget, og uteareal inkluderer altaner og terrasser. Bygget har pipe og er tilpasset reguleringsplanens krav, men det er søkt om dispensasjon fra tilgjengelighetskrav på grunn av tomtens begrensninger og boligens utforming over tre etasjer. Prosjektet har gjennomgått alle nødvendige faser med søknader, vedtak, midlertidig brukstillatelse og ferdigattest.

Produkter og materialer

Betong Grunnmur og fundamenter

Grunnarbeider og betongfundamenter for bygget

Pipe Murpipe

🧱 Mur

Antall: 1

Murpipe for ildsted

Dører Ytterdør og balkongdør

🧱 Tre

Antall: 14

Ytterdører og balkongdører i tre til altaner og innganger

Ventilasjon Ventilasjonsanlegg

Montering av ventilasjonsanlegg

VVS Sanitær, varme og slukkeinstallasjoner

Sanitær-, varme- og slukkeinstallasjoner prosjektert og utført

Fasade Trekledning

🧱 Tre

Antall: 1

Trekledning på alle fasader

Elektro Elektrisk anlegg

Elektrisk installasjon med varmekabler og belysning

Gulv Innvendige gulvflater

Innvendige gulvflater i boligene

Terrasse Altaner og terrasser

🧱 Tre

Antall: 4

Altaner på ca. 8,4 og 8,7 m², terrasser på ca. 13,4 og 13,8 m²

Utendørs altaner og terrasser til boenhetene

Grunnarbeid Tomtearbeid og drenering

Grunnarbeider, drenering og utvendig vann- og avløpsarbeider

Maling Innvendig og utvendig maling

Innvendig og utvendig maling av overflater

Bad Våtromsinnredning

Bad og våtrom med flislegging og sanitærutstyr

Mur Murarbeider

Murarbeider inkludert pipeoppføring

Vinduer Fasadevindu

🧱 Tre

Antall: 14

Fasadevindu i tre fordelt på alle etasjer og fasader

Tømrer Trekonstruksjoner og montering

🧱 Tre

Tømrerarbeid og montering av trekonstruksjoner

Tak Saltak

🧱 Tre og taktekking

Antall: 1

Saltak med taktekking over tomannsboligen

Trapper Innvendige trapper

Antall: 2

To innvendige trapper mellom etasjer

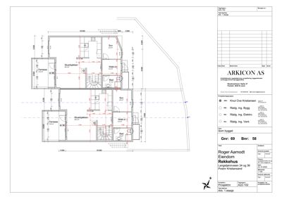
Plantegning

Rekkehus 200.6 m²

Etasje 0 100.3 m²

Rom Areal Vinduer Dører
Altan 001 8.4 m² 0 1
Sov (målbart) 002 7.9 m² 1 1
Lofstue 003 23.7 m² 1 1
Bad 004 4.1 m² 0 1
Sov (målbart) 005 6.8 m² 1 1
Bod (målbart) 006 5.1 m² 1 1
Stue U01 10.0 m² 1 1
Alkove U02 6.3 m² 0 0
Bad U03 3.9 m² 0 0
Bad U04 7.6 m² 0 0
Entre U05 21.2 m² 0 2
Bod U06 5.2 m² 0 1
Vask U07 4.1 m² 0 1
Mediarom U08 10.9 m² 0 1
Stue U09 9.9 m² 1 1
Alkove U10 6.3 m² 0 0
Bad U11 4.1 m² 0 0
Bad U12 8.2 m² 0 0
Entre U13 20.9 m² 0 2
Bod U14 5.3 m² 0 1
Vask U15 4.2 m² 0 1
Mediarom U16 10.2 m² 0 1
Bod U17 6.0 m² 0 1
Entre 34 20.9 m² 0 2
Entre 36 21.2 m² 0 2

Etasje 1 100.3 m²

Rom Areal Vinduer Dører
Altan 101 8.7 m² 0 1
Sov (målbart) 102 8.1 m² 1 1
Lofstue 103 23.7 m² 1 1
Bad 104 4.3 m² 0 1
Sov (målbart) 105 6.6 m² 1 1
Bod (målbart) 106 5.1 m² 1 1
Stue/kjøkken nr 34 49.3 m² 1 1
Stue/kjøkken nr 36 49.3 m² 1 1
Sov 34 8.9 m² 1 1
Sov 36 8.2 m² 1 1

Fasader

Rekkehus

Nord/Vest
Materiale
Tre
Taktype
Saltak
Vinduer
0
Dører
2
Synlige etasjer
2
Sør/Vest
Materiale
Tre
Taktype
Saltak
Vinduer
0
Dører
2
Synlige etasjer
2
Nord/Øst
Materiale
Tre
Taktype
Saltak
Vinduer
6
Dører
2
Synlige etasjer
2

Hendelser

22.04.2026 2024021852-24 Langetjønnveien 34 Supplering av søknad 69/58
21.04.2026 2024021852-23 Langetjønnveien 34-36 - 69/119 69/120, tomannsbolig - foreløpig tilbakemelding på søknad om endring
10.04.2026 2024021852-22 Langetjønnveien 34 Søknad om endring av gitt tillatelse eller godkjenning 69/58
28.01.2026 2024021852-21 Langetjønnveien 34-36, 69/119 og 69/120, tomannsbolig - midlertidig brukstillatelse
28.01.2026 2024021852-20 Langetjønnveien 34 Søknad om midlertidig brukstillatelse 69/58
24.10.2025 2024021852-17 Langetjønnveien 34 Supplering av søknad 69/58
23.09.2025 2024021852-13 Langetjønnveien 34 Søknad om ferdigattest 69/58
23.09.2025 2024021852-16 Langetjønnveien 34-36 - 69/119, 69/120, tomannsbolig - ferdigattest
23.09.2025 2024021852-15 Langetjønnveien 34 Supplering av søknad 69/58
23.09.2025 2024021852-14 Langetjønnveien 34-36 - søknad om ferdigattest - tilbakemelding