NewConstruction UnderBehandling Tomannsbolig

Ny tomannsbolig med carport i Møllenhofveien 11, Krokstadelva

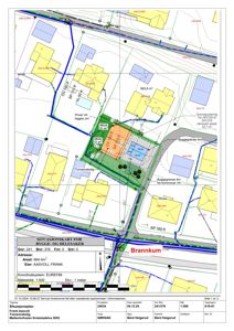
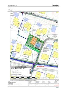
📍 Møllenhofveien 11

Nøkkelinfo

Sakstype
Nybygg
Bygningstype
Tomannsbolig
Bruksareal
295 m²
Boenheter
2
Kommune
Drammen
Fylke
Buskerud
Gnr / Bnr
241 / 376
Saksnummer
24/46832
Fase
Under behandling

Om byggesaken

Ny tomannsbolig i to etasjer med totalt bruksareal på ca. 294,8 m² fordelt på to boenheter med ca. 111,4 m² i 2. etasje og 183,4 m² i 1. etasje inkludert carport på 18,4 m² og terrasser/verandaer. Bygget er utført i tre med saltak, og har moderne arkitektur med trepanelkledning og mørke vinduer/dører. Hver boenhet har egen inngang, stue/kjøkken, flere soverom, bad, bod og vaskerom. Det er etablert carport og biloppstillingsplasser i tilknytning til boligene. Tomten er flat med god plass til uteoppholdsarealer og parkering, og det er gjennomført grensejustering og sikret adkomst via privat vei. Bygget er prosjektert med hensyn til brann- og lydisolasjon mellom boenhetene, og det foreligger fagkyndige vurderinger av naturfarer og dispensasjon fra plankrav. Overvann håndteres på egen tomt med permeable flater og grønne arealer.

Produkter og materialer

Garasjeport Carport

🧱 Tre

Antall: 2

Carport på 18,4 m² tilknyttet hver boenhet

Carport for biloppstilling med tak

Terrasse Terrasse og veranda

🧱 Tre

Antall: 2

Terrasse på 9,3 m² i 1. etasje og veranda på 5,6 m² i 2. etasje for hver boenhet

Uteoppholdsarealer i tre for hver boenhet

Isolasjon Mineralull i vegger og tak

🧱 Mineralull

Isolasjon i bindingsverk og tak for varme og lydisolasjon

Mineralull som isolasjonsmateriale i vegger og tak

VVS Sanitærinstallasjoner

Sanitærinstallasjoner for bad og vaskerom i begge boenheter

VVS-installasjoner for bad, vaskerom og WC

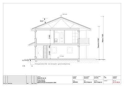
Tak Saltak

🧱 Takstein mørk

Antall: 1

Saltak med mørk takstein, gesimshøyde ca. 6 m, mønehøyde ca. 7,8 m

Saltak med mørk takstein for god værbeskyttelse

Ventilasjon Mekanisk ventilasjon

Ventilasjon på loft og i boenheter

Ventilasjonsanlegg for luftkvalitet og fuktstyring

Trapper Innvendige trapper

🧱 Tre

Antall: 2

To innvendige trapper, en i hver boenhet

Innvendige trapper i tre mellom etasjer

Betong Fundament og plate

🧱 Betong

Antall: 1

Betongfundament med lyd- og branntetting ved skillevegger

Betongfundament med fuger for lydisolasjon mellom boenheter

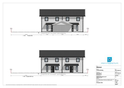
Fasade Trepanelkledning

🧱 Tre

Antall: 1

Trepanelkledning i mørk farge på alle fasader

Utvendig trepanelkledning for estetikk og værbeskyttelse

Grunnarbeid Drenering og overvannshåndtering

Drenering og overvannshåndtering med permeable flater og grøntarealer iht. blågrønn faktor

Tiltak for håndtering av overvann og drenering på tomt

Elektro Elektriske installasjoner

Elektriske installasjoner i henhold til gjeldende forskrifter

Elektriske anlegg for belysning, strøm og varme

Grunnarbeid Plate på mark

🧱 Betong

Antall: 1

Grunnmur med plate på mark, fundamentert på flat tomt

Betongplate på mark som grunnmur for bygget

Maling Utvendig og innvendig maling

Maling av trepanel utvendig og innvendige overflater

Overflatebehandling for beskyttelse og estetikk

Gulv Innvendige gulv

🧱 Parkett og fliser

Gulv i stue/kjøkken, bad og øvrige rom med parkett og fliser

Innvendige gulvflater med parkett og fliser

Vinduer Fasadevindu

🧱 Tre med mørk ramme

Antall: 18

Vinduer i fasader med varierende størrelser, inkludert 10 vinduer på vestfasade, 4 på øst, 4 på nord og 4 på sørfasade

Fasadevinduer i tre med mørk ramme for naturlig lys og utsyn

Dører Ytterdører og balkongdører

🧱 Tre med glass

Antall: 13

Ytterdører og verandadører fordelt på 2 dører på vestfasade, 1 på øst, 1 på nord, 1 på sør, og flere innvendige dører

Ytterdører og verandadører i tre med glassfelt

Tømrer Bindingsverk og skillevegger

🧱 Tre og mineralull

Antall: 1

Dobbelt bindingsverk med mineralull og to lag gipsplater for lyd- og brannisolasjon mellom boenheter

Skillevegger mellom boenheter med høy lyd- og brannmotstand

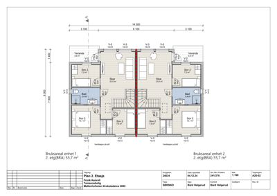
Plantegning

Tomannsbolig 294.8 m²

Etasje 1 183.4 m²

Rom Areal Vinduer Dører
Terrasse Terrasse 9.3 m² 0 1
Stue/kjøkken Stue/kjk 34.8 m² 4 2
Ev. bod u/trapp Ev bod u/trapp 4.5 m² 0 1
Vf/gang Vf/gang 5.8 m² 0 2
WC WC 1.8 m² 0 1
Vask /bad Vask /bad 6.4 m² 0 1
Tak over Tak over 4.2 m² 0 1
Bod Bod 5.4 m² 0 1
Carport Carport 18.4 m² 0 0
Stue/kjøkken 101 34.8 m² 4 2
Vf/gang 102 5.8 m² 0 2
WC 103 1.8 m² 0 1
Vask/bad 104 6.4 m² 0 1
Ev bod u/trapp 105 4.5 m² 0 1
Tak over 106 4.2 m² 0 1
Terrasse 107 9.3 m² 0 1
Bod 108 5.4 m² 0 1
Carport 109 18.4 m² 0 0

Etasje 2 111.4 m²

Rom Areal Vinduer Dører
Veranda 201 5.6 m² 1 1
Sov 2 202 7.2 m² 1 1
Bad 203 5.4 m² 0 1
Sov 2 204 10.1 m² 1 1
Stue 205 23.5 m² 2 2
Sov 2 206 7.4 m² 1 1
Veranda 207 5.6 m² 1 1
Sov 2 208 7.2 m² 1 1
Bad 209 5.4 m² 0 1
Sov 2 210 10.1 m² 1 1
Stue 211 23.5 m² 2 2
Sov 2 212 7.4 m² 1 1

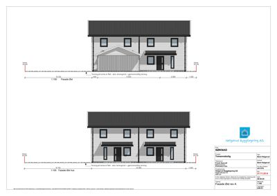
Fasader

Tomannsbolig

Vest
Materiale
Tre
Taktype
Saltak
Vinduer
10
Dører
2
Balkonger
2
Synlige etasjer
2
Øst
Materiale
Tre
Taktype
Saltak
Vinduer
4
Dører
1
Synlige etasjer
2
Nord
Materiale
Tre
Taktype
Saltak
Vinduer
4
Dører
1
Balkonger
1
Synlige etasjer
2
Sør
Materiale
Tre
Taktype
Saltak
Høyde
6.0 m
Mønehøyde
7.8 m
Vinduer
4
Dører
1
Balkonger
1
Synlige etasjer
2

Hendelser

10.04.2026 Supplering av søknad 241/376
04.03.2026 Møllenhofveien 11, vi trenger flere opplysninger for å behandle din søknad
03.03.2026 Møllenhofveien 11, spørsmål om sakens status
03.03.2026 Møllenhofveien 11, purring på tilbakemelding i saken
26.11.2025 Møllenhofveien 11, supplering av søknad 241/376
30.09.2025 Møllenhofveien 11, anmodning om fristutsettelse
22.09.2025 Møllenhofveien 11, vurdering av omsøkt tiltak i hht. ny kommuneplan, spørsmål vedr ytterligere dokumentasjon
01.09.2025 Møllenhofveien 11, angående ettersending av vurdering iht. ny kommuneplan, spørsmål vedr ytterligere dokumentasjon
12.08.2025 BYGG-24/02072-9 - Møllenhofveien 11, angående ettersending av vurdering iht. ny kommuneplan - aksept om utsettelse av frist
11.08.2025 Møllenhofveien 11, angående ettersending av vurdering iht. ny kommuneplan - ber om utsettelse av frist
11.07.2025 Møllenhofveien 11, vurdering av tiltaket i forhold til ny vedtatt kommuneplan
22.05.2025 Møllenhofveien 11, spørsmål om status på søknad om rammetillatelse for tomannsbolig
30.04.2025 Møllenhofveien 11, status på søknad om rammetillatelse for tomannsbolig
25.04.2025 Møllenhofveien 11, Supplering av søknad 241/376
14.02.2025 Møllenhofveien 11, forespørsel om status på søknad om rammetillatelse for tomannsbolig
14.02.2025 Møllenhofveien 11, vi trenger flere opplysninger for å behandle din søknad
23.12.2024 Møllenhofveien 11, søknad om rammetillatelse 241/376