NewConstruction Soeknad Tomannsbolig

Oppføring av to tomannsboliger på Øvre Bjørkåsen 11A, Bodø

📍 Øvre Bjørkåsen 11A , 8074 BODØ

Nøkkelinfo

Sakstype
Nybygg
Bygningstype
Tomannsbolig
Bruksareal
108 m²
Boenheter
4
Kommune
Bodø
Fylke
Nordland - Nordlánnda
Gnr / Bnr
2025 / 6318
Saksnummer
2026/2004
Fase
Søknad

Om byggesaken

To nye tomannsboliger i to etasjer oppføres på Øvre Bjørkåsen 11A i Bodø kommune. Hver bolig har et bruksareal på ca. 107,8 m² fordelt på to etasjer med private balkonger på 5,7 og 7,1 m². Byggene har saltak med 30° takvinkel, mønehøyde på 7,5 meter og gesimshøyde på 5,9 meter. Fasaden består av lys liggende trepanel med mørke kontrastfelt og mørke dører og vindusbelistning. Det etableres et felles uteoppholdsareal på ca. 166 m² med gode solforhold og tilgjengelighet, samt parkeringsplasser på felles gårdsplass. Byggene er plassert i tomtens nordre del med minimal terrengbearbeiding, og prosjektet er tilpasset eksisterende småhusbebyggelse i området.

Produkter og materialer

Tømrer Bygging av boligkonstruksjon

Antall: 2

Tømrerarbeid for to tomannsboliger i tre

Tømrerarbeid for boligene

Grunnarbeid Tomtearbeid og terrengtilpasning

Minimal terrengbearbeiding, terrengtilpasning med helning 1:15 på uteoppholdsareal

Grunnarbeid for bygging og utearealer

Vinduer Fasadevindu

🧱 Tre/aluminium, mørk belistning

Antall: 27

Vinduer med mørk belistning, antall estimert fra fasadetegninger

Vinduer til boligene

Trapper Innvendige trapper

Antall: 2

To trapper, en i hver tomannsbolig

Innvendige trapper til 2 etasjer

Terrasse Felles uteoppholdsareal

Antall: 1

Felles uteoppholdsareal på ca. 166 m² med gode solforhold og tilgjengelighet

Felles uteareal for lek og opphold

VVS Sanitær og varme

VVS-installasjoner for bad, kjøkken og varme

VVS-anlegg for boligene

Tak Saltak

🧱 Tak med 30° vinkel

Antall: 2

Saltak med mønehøyde 7,5 m og gesimshøyde 5,9 m

Tak for to tomannsboliger

Bad Baderomsinnredning

Antall: 4

Bad i hver boenhet, ca. 5-7 m²

Baderomsinnredning og sanitærutstyr

Parkering Parkeringsplasser

Parkeringsplasser på felles gårdsplass

Parkering for beboere

Gulv Innvendige gulv

Gulvflater i boligene, inkludert bad og stue/kjøkken

Innvendige gulvflater

Isolasjon Bygningsisolasjon

Isolasjon i vegger, tak og gulv iht. TEK17

Isolasjon for energieffektiv bolig

Dører Ytterdører og balkongdører

🧱 Mørk tre/aluminium

Antall: 14

Ytterdører og balkongdører med mørk belistning

Dører til boligene, inkludert balkongdører

Elektro Elektrisk anlegg

Elektrisk installasjon for boligene

Elektroinstallasjoner i boligene

Balkong Private balkonger

Antall: 4

Balkonger på 5,7 og 7,1 m² per boenhet

Private balkonger for hver boenhet

Fasade Trepanel fasade

🧱 Lys liggende tre kledning med mørke kontrastfelt

Lys liggende tre kledning med mørk tre kledning på kontrastfelt og mørk dør- og vindusbelistning

Fasadematerialer for tomannsboligene

Mur Grunnmur

Antall: 2

Grunnmur for to tomannsboliger

Fundament og grunnmur for boligene

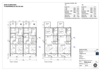
Plantegning

TO MANNSBOLIG 107.8 m²

Etasje 1 53.9 m²

Rom Areal Vinduer Dører
Sport 101 5.0 m² 0 1
Sov 102 6.6 m² 0 1
Entre 103 5.2 m² 0 1
Gang 104 6.3 m² 0 1
Bad 105 7.4 m² 0 1
Bod 106 3.7 m² 0 1
Sov 107 8.4 m² 0 1
Sov 108 11.1 m² 0 1

Etasje 2 53.9 m²

Rom Areal Vinduer Dører
Balkong 201 5.7 m² 0 0
Sov/Stue 202 10.3 m² 0 1
Bad 203 5.0 m² 0 1
Bod 204 1.6 m² 0 1
Stue/Kjøkken 205 31.3 m² 0 1
Balkong 206 7.1 m² 0 0

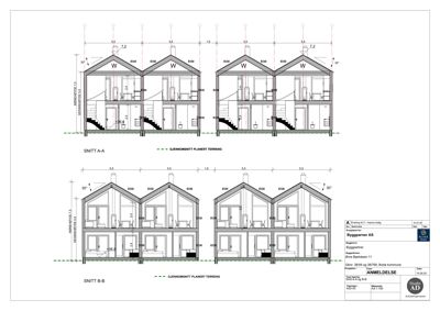
Fasader

Enebolig

Vest
Materiale
Tre
Taktype
Flatt tak
Takmat.
Stål
Høyde
4.1 m
Mønehøyde
7.5 m
Vinduer
2
Dører
1
Synlige etasjer
1
Sør
Materiale
Tre
Taktype
Saltak
Høyde
4.1 m
Mønehøyde
7.5 m
Vinduer
10
Dører
4
Balkonger
4
Synlige etasjer
2
Nord
Materiale
Tre
Taktype
Saltak
Høyde
3.9 m
Mønehøyde
4.1 m
Vinduer
1
Dører
1
Synlige etasjer
1
Øst
Materiale
Tre
Taktype
Saltak
Høyde
3.9 m
Mønehøyde
4.1 m
Vinduer
12
Dører
4
Balkonger
2
Synlige etasjer
2

Hendelser

17.04.2026 Supplering av søknad - Øvre Bjørkåsen 11A
15.04.2026 Foreløpig svar - behov for tilleggsdokumentasjon
13.04.2026 Svar på forespørsel
12.03.2026 Supplering av søknad - Øvre Bjørkåsen 11A
25.02.2026 Foreløpig svar - behov for tilleggsdokumentasjon
12.01.2026 Supplering av søknad