NewConstruction Soeknad Tomannsbolig

Ny tomannsbolig med parkeringskjeller i Sanatorieveien 18, Drammen

📍 Sanatorieveien 18

Nøkkelinfo

Sakstype
Nybygg
Bygningstype
Tomannsbolig
Bruksareal
395 m²
Boenheter
2
Kommune
Drammen
Fylke
Buskerud
Saksnummer
26/03952
Fase
Søknad

Om byggesaken

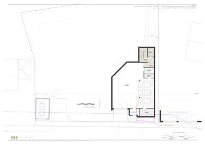
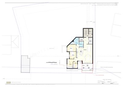
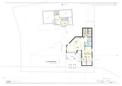
Ny horisontaldelt tomannsbolig på totalt 395 m² BRA fordelt på fire etasjer, inkludert parkeringskjeller. Bygget har 2 boenheter med separate innganger, heis og trapperom. Parkeringskjeller på ca. 136 m² med garasjeport og oppbevaringsrom. Boligen har flere soverom, bad, vaskerom, stue, kjøkken og spisestue i hver boenhet. Uteoppholdsarealer inkluderer terrasser og takterrasse med pergola. Bygget er tilpasset eksisterende terreng og omkringliggende funkisvillaer med tilsvarende materialbruk som trepanel, naturstein og saltak med tegl. Støyvurdering viser at tiltaket tilfredsstiller krav til støy med anbefalte lydisolerende vinduer. Dispensasjon er søkt for byggegrense mot vei, med godkjent nabosamtykke. Prosjektet ivaretar kulturmiljøets verneverdier og tilpasses eksisterende bebyggelse og terreng.

Arbeidsomfang

- Riving av eksisterende garasje i østlig del av eiendommen - Oppføring av ny tomannsbolig på stedet for den revne garasjen - Bygging av parkeringskjeller direkte inn fra veien med tilkomst til U.etasje - Etablering av tilbaketrukket garasjeport for å forbedre trafikksituasjonen og ivareta gatenormen - Utvidelse av bygningens fotavtrykk mot vest med natursteinsmur som fortsetter nabos murverk - Bygging av takflater dempet med rene flater og ordinære takvinduer (uten heisoppbygget) - Reduksjon i størrelse på takflaten mot vest og senking av nivået for å legge seg inn i terrenget - Erstatning av deler av hvite murflater med trekledning som matcher hovedhuset

Produkter og materialer

Fasade Trepanel og naturstein

🧱 Tre og naturstein

Ytterkledning i trepanel, natursteinsmur på parkeringskjeller

Fasadematerialer tilpasset eksisterende bolig og naboers bebyggelse

Tak Saltak med tegl

🧱 Teglstein

Antall: 1

Saltak med tegl, takvinduer (Velux eller tilsvarende)

Tak med tradisjonell saltakskonstruksjon og takvinduer

Rekkverk Tett rekkverk på verandaer

🧱 Tre eller metall

Antall: 3

Tett rekkverk 1,3 m høyde for støydemping og sikkerhet på verandaer

Rekkverk på verandaer for støyskjerming og sikkerhet

Vinduer Lydisolerende fasadevindu

🧱 Tre med 3-lags energiglass

Antall: 26

Vinduer med lydisolasjon Rw + Ctr = 30-35 dB anbefalt mot sørfasade

Vinduer til oppholdsrom og soverom med god lydisolasjon mot trafikkstøy

Gulv Innvendige gulvflater

Standard gulvflater i oppholdsrom og våtrom

Gulvbelegg i henhold til boligstandard

Heis Personheis

Antall: 1

Heis med adkomst til alle etasjer, inkludert takterrasse

Heis for universell utforming og adkomst

Trapper Innvendig trapp og terrengtrapp

🧱 Tre og betong

Antall: 2

Separat trapperom i bygget, terrengtrapp til uteområder

Trapper for adkomst mellom etasjer og til terreng

VVS Sanitær og ventilasjon

Standard sanitærinstallasjoner og ventilasjon i henhold til TEK17

VVS-installasjoner for boligene

Betong Parkeringskjeller og fundamenter

🧱 Betong

Betongkonstruksjoner for parkeringskjeller og bærende elementer

Betongarbeider for kjeller og fundamenter

Elektro Elektriske installasjoner

Standard elektriske installasjoner i henhold til forskrifter

Elektroinstallasjoner for boligene

Terrasse Terrasser og takterrasse med pergola

🧱 Sedum tak og treverk

Antall: 3

Terrasser på ulike plan, takterrasse med pergola og sedumtak for grøntareal

Uteoppholdsarealer med grønne tak og pergola

Grunnarbeid Grunn og terrengarbeid

Tilpasning til eksisterende terreng, minimal terrenginngrep

Grunnarbeid for fundamentering og terrengtilpasning

Dører Ytterdører og garasjeport

🧱 Tre og metall

Antall: 7

Inngangsdører, garasjeport med tilbaketrukket plassering for bedre trafikksikkerhet

Ytterdører til boenheter og garasjeport i parkeringskjeller

Bad Bad og vaskerom

Antall: 4

Bad og vaskerom med standard sanitærutstyr og fliser

Bad og vaskerom i hver boenhet

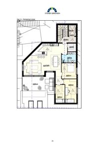
Plantegning

Tomannsbolig 395.4 m²

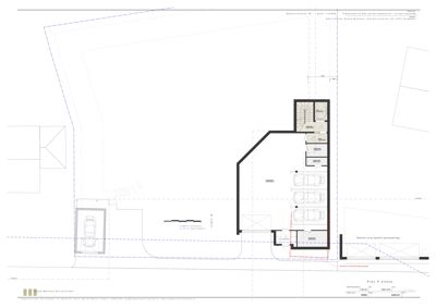
Etasje -1 168.4 m²

Rom Areal Vinduer Dører
Gang U01 12.5 m² 0 3
Stue U02 42.3 m² 2 2
Kjøkken U03 18.6 m² 1 1
Spisestue U04 14.2 m² 1 1
Bad U05 8.4 m² 0 1
Vaskerom U06 6.8 m² 0 1
Sovev. 1 U07 14.5 m² 1 1
Sovev. 2 U08 12.1 m² 1 1
Sovev. 3 U09 11.8 m² 1 1
Sovev. 4 U10 11.2 m² 1 1
Teknisk rom U11 4.5 m² 0 1
Trapp U12 3.5 m² 0 1

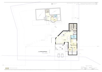
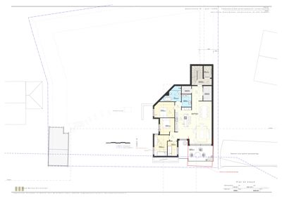
Etasje 1 227.0 m²

Rom Areal Vinduer Dører
Stue 101 35.2 m² 3 2
Spisestue 102 40.0 m² 2 2
Kjøkken 103 18.0 m² 1 1
Bad 104 10.0 m² 0 1
Gang 105 12.0 m² 0 3
Vaskerom 106 8.0 m² 1 1
Soverom 107 15.0 m² 1 1
Soverom 108 12.0 m² 1 1
Teknisk rom 109 5.0 m² 0 1

Hovedbygg 0.0 m²

Etasje 0 0.0 m²

Rom Areal Vinduer Dører
Stue 001 0.0 m² 3 2
Kjøkken 002 0.0 m² 0 1
Gang 003 0.0 m² 0 3
Bad 004 0.0 m² 0 1
Soverom 1 005 0.0 m² 1 1
Soveom 2 006 0.0 m² 1 1
Soveom 3 007 0.0 m² 1 1
Teknisk rom 008 0.0 m² 0 1

Fasader

Tomannsbolig

Øst
Materiale
Tre
Taktype
Saltak
Takmat.
Tegl
Vinduer
4
Dører
1
Balkonger
1
Synlige etasjer
2
Sør
Materiale
Tre
Taktype
Saltak
Vinduer
10
Dører
1
Balkonger
1
Synlige etasjer
2
Vest
Materiale
Tre
Taktype
Saltak
Vinduer
6
Dører
2
Balkonger
1
Synlige etasjer
2

Hendelser

31.03.2026 Sanatorieveien 18, vi trenger flere opplysninger for å behandle søknaden din søknad
10.02.2026 Sanatorieveien 18, søknad om rammetillatelse rammetillatelse