Photo
Fotografi av en byggeplass eller tomt med stein og grus i forgrunnen, og en bygning i bakgrunnen.
1 / 19
NewConstruction
Unknown
Tomannsbolig
Oppføring av seksmannsbolig med terrenginngrep og støttemurer
📍 Sangereidlia 50 , 4790 LILLESAND
Nøkkelinfo
- Sakstype
- Nybygg
- Bygningstype
- Tomannsbolig
- Kommune
- Lillesand
- Fylke
- Agder
- Gnr / Bnr
- 18 / 590
- Saksnummer
- 2025/1559
- Fase
- Unknown
Om byggesaken
Saken gjelder et ett-trinns prosjekt for oppføring av en seksmannsbolig (tomannsbolig) inkludert terrenginngrep, støttemurer og VA-etablering. Det er gitt vedtak om tillatelse til tiltak samt midlertidig brukstillatelse for flere seksjoner.
Fasader
6-mannsbolig
Nord
- Materiale
- Tre
- Taktype
- Saltak
- Høyde
- 7.1 m
- Vinduer
- 6
- Dører
- 8
- Balkonger
- 1
- Synlige etasjer
- 2
Øst
- Materiale
- Tre
- Høyde
- 7.1 m
- Vinduer
- 4
- Dører
- 0
- Synlige etasjer
- 2
Sør
- Materiale
- Tre
- Taktype
- Saltak
- Høyde
- 6.0 m
- Mønehøyde
- 7.1 m
- Vinduer
- 12
- Dører
- 3
- Balkonger
- 3
- Synlige etasjer
- 2
Vest
- Materiale
- Tre
- Taktype
- Flatt tak
- Høyde
- 6.0 m
- Mønehøyde
- 7.1 m
- Vinduer
- 2
- Dører
- 0
- Synlige etasjer
- 2
Seksmannsbolig
Sør
- Materiale
- Tre
- Taktype
- Saltak
- Høyde
- 7.1 m
- Vinduer
- 10
- Dører
- 3
- Balkonger
- 3
- Synlige etasjer
- 2
Hendelser
17.04.2026
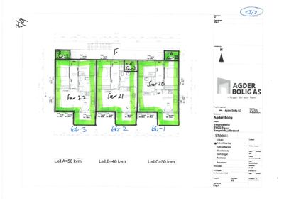
Gnr 18 bnr 590 - Sangereidlia 60 - Vedtak på søknad om midlertidig brukstillatelse for seksjon 19
13.04.2026
Søknad om midlertidig brukstillatelse - Gnr 18 Bnr 590 Snr 19 - Sangereidlia 60 (BYGG 9)
27.03.2026
Gnr 18 bnr 590 - Sangereidlia Bygg 9 - Vedtak på søknad om midlertidig brukstillatelse for seksjon 20, 21 og 22 (2.etg)
26.03.2026
Opplysninger om uteområder og parkering ifb søknad om midlertidig brukstillatelse
25.03.2026
Sikring av byggeområde ifb med søknad om brukstillatelse - Gnr 18 Bnr 590 - Sangereidlia BYGG 9 - snr 20-21-22
24.03.2026
Søknad om brukstillatelse - Gnr 18 Bnr 590 - Sangereidlia BYGG 9 - snr 20-21-22
21.08.2025
Manglende nabovarsling
21.08.2025
Svar på henvendelse vedrørende manglende nabovarsling
03.07.2025
Gnr 18 bnr 590 Sangereidlia - Vedtak på søknad om tillatelse til terrenginngrep samt oppføring av støttemurer og en seksmanns-bolig m/tilhørende parkering
30.06.2025
Beskrivelse mengde fjell som må fjernes BK1.2.2 for etablering av VA til bygg 9, og parkeringsplass mellom bygg 8 og 9
10.06.2025
Søknad om tillatelse til tiltak - Ett-trinns søknadsbehandling