NewConstruction UnderBehandling Tomannsbolig

Ny tomannsbolig i Skarpsnoveien 8, Krokstadelva

📍 Skarpsnoveien 8 , 3055 KROKSTADELVA

Nøkkelinfo

Sakstype
Nybygg
Bygningstype
Tomannsbolig
Bruksareal
300 m²
Boenheter
3
Kommune
Drammen
Fylke
Buskerud
Gnr / Bnr
241 / 291
Saksnummer
26/08346
Fase
Under behandling

Om byggesaken

Ny, moderne vertikaldelt tomannsbolig over to etasjer med to likeverdige boenheter på eiendommen Skarpsnoveien 8 i Krokstadelva. Boligen har et samlet bygningsvolum med flatt tak og fasader i stående kledning i naturtoner, med kombinasjon av lys og mørk kledning for å fremheve arkitekturen. Hver boenhet inneholder stue/kjøkken, soverom og bad, med funksjonelle og delvis overdekkede uteplasser både i 2. etasje og på bakkeplan. Bygget har integrerte garasjer og et samlet bebygd areal på ca. 235 m², med god tilpasning til terreng og omkringliggende bebyggelse. Overvannshåndtering er prosjektert med åpne løsninger som regbedd og veigrøft, og tiltaket er vurdert til å ikke medføre økt flomfare. Eiendommen har eksisterende bolig og garasje som blir stående, og det er gitt tillatelse til utvidet bruk av eksisterende avkjørsel. Det foreligger nabomerknader knyttet til solforhold, men disse er fulgt opp med solstudier og dialog.

Produkter og materialer

Fasade Stående kledning

🧱 Tre, naturtoner, kombinasjon av lys og mørk kledning

Materialbruk valgt for varighet, lite vedlikehold og god tilpasning til omgivelsene

Fasader med stående kledning i naturtoner for estetikk og holdbarhet

Terrasse Delvis overdekkede uteplasser

Antall: 2

Uteplasser tilknyttet stue/kjøkken i 2. etasje og på bakkeplan

Funksjonelle uteplasser for begge boenheter, delvis overdekket

Grunnarbeid Tomtearbeid og fundamentering

Byggegrunn vurdert som god og stabil, fundamentering over flomnivå

Grunnarbeid for tomannsbolig på etablert tomt med overvannshåndtering

Dører Ytterdører og terrassedører

Dører til inngang og uteplasser i begge boenheter

Maling Utvendig og innvendig maling

Maling av fasader og innvendige flater

Vinduer Fasadevindu

Antall: 6

Vindusplassering avstemt for dagslys og hensyn til innsyn/utsyn

Vinduer i begge etasjer for lys og utsyn, tilpasset privatliv

Tak Flatt tak

Flatt tak som gir lavere byggehøyde enn saltak

Tak med flatt design for god tilpasning til omgivelsene

Tømrer Bygging av bærende konstruksjoner

🧱 Tre

Tømrerarbeid for oppføring av tomannsbolig i to etasjer

Overvann Åpen overvannshåndtering

Regbedd/veigrøft ca. 76 m lang, 1,5 m bred, 50 cm dyp, volum ca. 35 m3

Åpen overvannshåndtering med regbedd og fallplan for flomveier

VVS Sanitærinstallasjoner

Tilknytning til offentlig vann og avløp på egen eiendom

Vann- og avløpsinstallasjoner for to boenheter

Elektro El-installasjoner

Elektriske installasjoner iht. gjeldende forskrifter

Garasjeport Integrert garasjeport

Antall: 2

Garasjeporter til integrerte garasjer for hver boenhet

Rekkverk Uteplassrekkverk

Rekkverk på uteplasser for sikkerhet

Gulv Innvendige gulv

Innvendige gulv i boenhetene, standard materiale ikke spesifisert

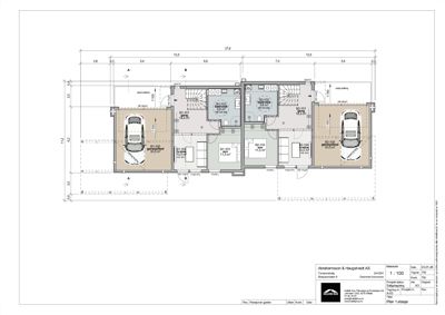
Plantegning

Enebolig 300.4 m²

Etasje 1 150.2 m²

Rom Areal Vinduer Dører
Garasje/bod B1-105 30.0 m² 0 1
Gang B1-101 14.4 m² 0 2
Bad/vask B1-102 9.8 m² 0 1
TV-stue B1-104 10.5 m² 1 1
Sov B1-103 11.5 m² 1 1

Etasje 2 150.2 m²

Rom Areal Vinduer Dører
Garasje/bod B2-105 30.0 m² 0 1
Gang B2-101 14.4 m² 0 2
Bad/vask B2-102 9.8 m² 0 1
TV-stue B2-104 10.5 m² 1 1
Sov B2-103 11.5 m² 1 1

Hendelser

20.04.2026 Skarpsnoveien 8, vi trenger flere opplysninger for å behandle søknaden din
19.03.2026 Skarpsnoveien 8, melding om mottatt søknad
18.03.2026 Skarpsnoveien 8 Søknad om rammetillatelse 241/291