NewConstruction Soeknad Tomannsbolig

Ny tomannsbolig med riving av uthus i Stubberudveien 7, Drammen

📍 Stubberudveien 7 , 1786 HALDEN

Nøkkelinfo

Sakstype
Nybygg
Bygningstype
Tomannsbolig
Bruksareal
110 m²
Boenheter
2
Kommune
Drammen
Fylke
Buskerud
Gnr / Bnr
80 / 1656
Saksnummer
25/43122
Fase
Søknad

Om byggesaken

Ny vertikaldelt tomannsbolig på 109,5 m² BRA fordelt på to boenheter med tradisjonell stil, saltak og stående trekledning. Bygget har to etasjer med stue/kjøkken, sportsbod, entré og vaskerom i første etasje, samt soverom, bod, gang og bad i andre etasje. Det planlegges parkeringsplasser nær inngangene og solrike uteoppholdsarealer mot sør. Eksisterende uthus på 60 m², som er SEFRAK-registrert i gul kategori og i dårlig teknisk stand, skal rives. Det skal også oppføres ny støttemur som erstatter eksisterende mur, med forlengelse mot vei for å sikre parkeringsareal. Overvann håndteres lokalt i tråd med hensynssone H320. Det foreligger godkjent avkjørselstillatelse og dokumentasjon på vann- og avløp, men det er uavklarte rettigheter knyttet til privat VA-anlegg over naboeiendom.

Arbeidsomfang

- Oppføring av ny verkaldelt tomannsbolig (to boenheter) med saltak og stående kledning. - Riving av eksisterende uthus med BYA 60 m². - Oppføring av støemur.

Produkter og materialer

Riving Uthus

🧱 Trekonstruksjon med saltak og stående trekledning

Antall: 1

SEFRAK-registrert uthus i gul kategori, dårlig teknisk tilstand, rives

Riving av eldre uthus på 60 m²

Bad Bad og sanitærutstyr

Antall: 2

Bad på 6,5 m² i hver boenhet med sanitærutstyr iht. TEK

Bad med sanitærinstallasjoner i hver boenhet

Trapper Innvendige trapper

Antall: 2

To trapper i tomannsboligen mellom etasjer

Innvendige trapper for adkomst mellom etasjer

Mur Støttemur

Antall: 1

Ny støttemur som erstatter eksisterende, med forlengelse på ca. 1,6 meter mot vei

Støttemur for terrengstøtte og parkeringsareal

Parkeringsplass Biloppstillingsplasser

Antall: 3

Parkeringsplasser nær inngangspartiene, tilpasset ny støttemur

Parkeringsplasser for beboere

Vinduer Fasadevindu

🧱 Tre/Aluminium

Antall: 13

Vinduer i varierende størrelse for estetikk og lysforhold

Fasadevinduer i tre med varierende størrelse

Elektro Elektriske installasjoner

Elektriske installasjoner i henhold til TEK, ikke spesifisert i detalj

Elektriske installasjoner i boligen

Terrasse Uteoppholdsareal

Solrike uteoppholdsarealer mot sør for begge boenheter

Uteområder for rekreasjon og aktiviteter

Gulv Innvendige gulv

Ikke spesifisert, men normalt parkett eller tilsvarende i bolig

Innvendige gulv i boenhetene

VVS Vann- og avløpsanlegg

Tilknytning til offentlig vann og avløp via privat fellesanlegg, men rettigheter til VA-anlegg over naboeiendom er uavklart

Vann- og avløpsinstallasjoner med tilknytning til offentlig nett

Grunnarbeid Tomtearbeid og terrengtilpasning

Tomten på 600 m² tilpasses med begrenset terrengarbeid for å bevare naturlig karakter

Grunnarbeid for bygging og uteområder

Fasade Stående trekledning

🧱 Tre

Tradisjonell stil med saltak og stående kledning

Yttervegger med stående trekledning i tradisjonell stil

Tak Saltak med tegl

🧱 Tegl

Saltak med tegl takmateriale

Tak med saltak og tegl som takmateriale

Dører Ytterdører

🧱 Tre

Antall: 6

Ytterdører til inngangspartier og sportsbod

Ytterdører i tre til boenheter og sportsbod

Plantegning

Enebolig 92.0 m²

Etasje 1 46.0 m²

Rom Areal Vinduer Dører
Stue/Kjøkken 101 30.8 m² 4 1
Sport 102 5.2 m² 1 1
Entré 103 4.2 m² 0 1
Vask 104 4.1 m² 0 0

Etasje 2 46.0 m²

Rom Areal Vinduer Dører
Sov 201 9.1 m² 1 1
Bod 202 4.0 m² 1 0
Sov 203 7.0 m² 1 1
Gang 204 4.9 m² 0 0
Bad 205 6.5 m² 0 0

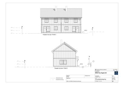
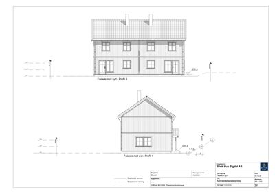
Fasader

Tomannsbolig

Nord
Materiale
Tre
Taktype
Saltak
Takmat.
Tegl
Høyde
6.3 m
Mønehøyde
8.3 m
Vinduer
4
Dører
4
Synlige etasjer
2
Vest
Materiale
Tre
Taktype
Saltak
Takmat.
Tegl
Høyde
6.3 m
Mønehøyde
8.3 m
Vinduer
2
Dører
0
Synlige etasjer
2
Sør
Materiale
Tre
Taktype
Saltak
Høyde
3.0 m
Vinduer
6
Dører
2
Synlige etasjer
2
Øst
Materiale
Tre
Taktype
Saltak
Høyde
3.0 m
Vinduer
1
Dører
0
Synlige etasjer
2

Hendelser

21.04.2026 80/1656, Skrabben, vedrørende sikret rettighet til VA
21.04.2026 80/1656, Skrabben, nabomerknad vedrørende rettigheter til VA
07.04.2026 Supplering av søknad 80/1656 søknad
02.03.2026 Stubberudveien 7 (80/1656), oppdatert bekreftelse på fristutsettelse
02.03.2026 Stubberudveien 7, 80/1656, bekreftelse på fristutsettelse
02.03.2026 Gbnr 80/1656, ber om ytterligere fristutsettelse
11.02.2026 Stubberudveien 7, bekreftelse på fristutsettelse
10.02.2026 Stubberudveien 7. anmodning om utsatt frist
14.01.2026 Stubberudveien 7, vi trenger flere opplysninger for å behandle søknaden din søknad
19.12.2025 Søknad om rammetillatelse 80/1656 rammetillatelse