NewConstruction Ferdigattest Tomannsbolig

Ny tomannsbolig med garasje i Svaneveien 2, Farsund

📍 Svaneveien 2A , 4550 FARSUND

Nøkkelinfo

Sakstype
Nybygg
Bygningstype
Tomannsbolig
Bruksareal
220 m²
Boenheter
2
Kommune
Farsund
Fylke
Agder
Gnr / Bnr
6 / 323
Saksnummer
24/00126
Fase
Ferdigattest

Om byggesaken

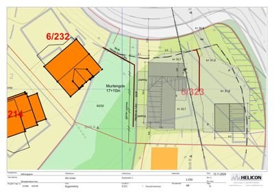
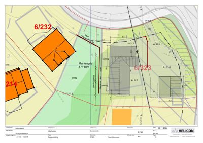
Ny tomannsbolig på totalt 220 m² BRA med tilhørende frittstående garasje er oppført på eiendommen Svaneveien 2 i Farsund. Boligen er to-etasjes med separate boenheter, hver med flere soverom, bad, vaskerom, hall, stue og kjøkken. Bygget har trekonstruksjoner, membran og fall på gulv i våtrom, pipe og ildsted, samt balansert ventilasjon. Grunnarbeider, mur og drenering er utført, og det er etablert elektriske varmekabler, panelovner og varmepumpe for oppvarming. Fasader er kledd med trepanel, og det er montert flere vinduer og dører, inkludert garasjeporter. Mur i felles grense med nabo er oppført med dispensasjon. Tiltaket er ferdigstilt og det foreligger ferdigattest.

Produkter og materialer

Grunnarbeid Gravearbeider og masseutskiøving

Utgraving, masseutskiøving, oppfylling, komprimering, drenering, opparbeidelse av adkomstvei

Grunnarbeider for tomt og fundamentering av bolig og garasje

Betong Grunnmur og betongarbeider

🧱 Betong

Støping av grunnmur, radonsikring, gulv med fall i våtrom, utvendige betongplattformer

Grunnmur og betongarbeider for bolig og garasje

Bad Membran og belegg i våtrom

🧱 Membran

Membran eller belegg på vegg og gulv i våtrom, tetting mot sluk, fall på gulv mot sluk

Våtromsarbeider i bolig

Vinduer Fasadevindu og vinduer i bolig

Flere vinduer i bolig, dimensjoner og type ikke spesifisert

Vinduer til bolig

Fasade Trekledning

🧱 Tre

Trekledning på fasader

Fasadebekledning i tre

Mur Oppføring av mur i felles grense

🧱 Mur

Mur i felles grense mellom eiendom 6/323 og 6/232, høyde 1-1,8 meter, med gjerde på toppen

Felles grensemur mellom tomter

Gulv Gulv med fall i våtrom

Støping av gulv med fall mot sluk i våtrom

Gulv i våtrom med fall

Ventilasjon Balansert ventilasjon med lydfeller

Montering og innregulering av balansert ventilasjonsanlegg med kanalgjennomføringer og lydfeller

Ventilasjonsanlegg i bolig

Mur Murerarbeid for pipe og ildsted

Montering av pipe og ildsted, tetting av gjennomføringer i klimaskall

Pipe og ildsted i bolig

Varmepumpe Luft-til-luft varmepumpe

Antall: 1

Varmepumpe for luftoppvarming

Varmepumpe som del av energiforsyning

Tømrer Trekonstruksjoner og byggteknikk

🧱 Tre

Tømrerarbeid utvendig og innvendig, inkl. trekonstruksjoner i våtrom, tetting av klimaskall

Bygging av bolig og garasje i trekonstruksjon

Elektro Elektriske varmekabler og panelovner

Elektriske varmekabler i gulv, elektriske panelovner for varmefordeling

Elektrisk oppvarming i bolig

Dører Ytterdører og garasjeporter

Ytterdører og garasjeporter, inkl. 2 garasjeporter med mål ca 2,7x2,2 m

Dører og garasjeporter til bolig og garasje

VVS Innvendige rørarbeider og sanitærutstyr

Montering av innredning, sanitærutstyr og plassering av sluk, tetting av gjennomføringer i klimaskall

Rørleggerarbeid i bolig

Hendelser

17.04.2026 24/00126-27 Søknad om støtte til konsert med Jose Luis Nieto
13.04.2026 24/00126-19 Ferdigattest tomannsbolig og garasje 6/323, Svaneveien 2
10.04.2026 24/00126-18 Søknad om ferdigattest - ny tomannsbolig og garasje - 6/323, Svaneveien 2
26.03.2026 24/00126-17 Supplering - endring av ansvarsrett UTF våtrom samt ansvarserklæring UTF pipe og ildsted - to-mannsbolig 6/323, Svaneveien 2
28.01.2026 24/00126-26 Søknad om sponsorstøtte til konsert i Mandal - Varme Vibber i Mandal 6. februar 2026
16.09.2025 24/00126-25 Gatemagasinet MOT Jul
18.08.2025 24/00126-24 Søknad om støtte - Ukraina: Barnetog 24. august
12.08.2025 24/00126-23 Søknad om sponsorstøtte til innkjøp av nytt lydanlegg
30.04.2025 24/00126-22 Bonde-opptimistene søker om tilskudd til arrangement med fokus på psykisk helse for bønder o.a.
07.03.2025 24/00126-21 Søknad om midler til sosiale ungdomskvelder i regi av LJFF og vedtak fra ordfører
27.02.2025 24/00126-20 Takker for støtten til markering av kvinnedagen 8. mars 2025 i Buen kl 19-21
19.11.2024 24/00126-16 Tillatelse til endring - oppføring av mur i felles grense mellom 6/323 og 6/232, og over på gnr/bnr 6/232 - Svaneveien 2 og Svaneveien 4
13.11.2024 24/00126-15 Endringssøknad - oppføring av felles mur i grense mellom 6/233 og 6/232