NewConstruction Rammetillatelse Tomannsbolig

Oppføring av to tomannsboliger i Vesle Slaggveg 10, Hunndalen

📍 Vesle Slaggveg 10 , 2827 HUNNDALEN

Nøkkelinfo

Sakstype
Nybygg
Bygningstype
Tomannsbolig
Bruksareal
476 m²
Boenheter
4
Kommune
Gjøvik
Fylke
Innlandet
Gnr / Bnr
69 / 612
Saksnummer
2025/3281
Fase
Rammetillatelse

Om byggesaken

To nye tomannsboliger i én etasje bygges på eiendommen Vesle Slaggveg 10 i Hunndalen. Byggene har samlet bruttoareal på 476 m² og inneholder blant annet stue/kjøkken, flere soverom, bad, bod, gang, terrasse og parkering. Byggene har saltak med gesimshøyde på 2,9 m og mønehøyde på 4,6 m, og fasadene er kledd i tre. Det er etablert pipe i byggene. Prosjektet inkluderer opparbeidelse av felles uteområder, renovasjonsplass og adkomstvei i henhold til reguleringsplan. Det er planlagt balansert ventilasjon, sanitærinstallasjoner, grunnarbeid, betongfundamentering, tømrerarbeid, montering av pipe og ildsted, samt innvendige og utvendige vann- og avløpsanlegg. Prosjektet har fått byggetillatelse og er under oppfølging med ansvarlige foretak for prosjektering, utførelse og kontroll.

Produkter og materialer

Ventilasjon Balansert ventilasjon

Antall: 2

Prosjektering og montering av balansert ventilasjon, ett anlegg per boenhet

Ventilasjonsanlegg for begge tomannsboliger

Dører Ytterdør

🧱 Tre

Antall: 8

Ytterdører i tre til tomannsboliger, totalt 8 stk fordelt på fasader og innganger

Tømrer Trekonstruksjoner

🧱 Tre

Antall: 2

Tømrerarbeid og montering av trekonstruksjoner for tomannsboliger

Tømrerarbeid for oppføring av trekonstruksjoner i begge bygg

Parkering Parkering/carport

Antall: 2

Parkering på 36 m² per bolig

Parkering tilknyttet hver tomannsbolig

Mur Murerarbeid

Murerarbeid i grunn og fundamentering

Murerarbeid knyttet til fundamentering og grunnarbeid

Pipe Pipe og ildsted

Antall: 2

Montering av pipe og ildsted, valg og innhenting av dokumentasjon for produkter

Pipe og ildsted til begge tomannsboliger

Terrasse Terrasse

🧱 Tre

Antall: 2

Terrasse på 11,7 m² per bolig

Terrasser tilknyttet hver tomannsbolig

Tak Saltak

🧱 Tre med tegl takstein

Antall: 2

Saltak med tegl takstein på begge tomannsboliger

Elektro Elektriske installasjoner

Elektriske installasjoner i henhold til gjeldende forskrifter

Gulv Innvendige gulvflater

Innvendige gulvflater i boligene, antatt parkett eller fliser på bad

Annet Avfallsplan og kildesortering

Full kildesortering av avfall i byggeperioden

Avfallshåndtering og kildesortering i henhold til avfallsplan

Vinduer Fasadevindu

🧱 Tre

Antall: 10

Fasadevinduer i tre til tomannsboliger, totalt 10 stk fordelt på fasader

Fasade Tre kledning

🧱 Tre

Tre kledning på fasader

Utvendig tre kledning på tomannsboliger

Betong Betongkonstruksjoner

Antall: 2

Betongkonstruksjoner og murerarbeid i grunn/fundamentering

Betongarbeid for fundamentering og murerarbeid

VVS Sanitærinstallasjoner

Antall: 2

Sanitærinstallasjoner innvendig og utvendig vannforsynings- og avløpsanlegg

VVS-installasjoner for begge tomannsboliger

Grunnarbeid Fundamentering og plate på mark

🧱 Betong

Antall: 2

Plate på mark inkl fundamenter for tomannsboliger

Grunnarbeid med fundamentering og plate på mark for begge bygg

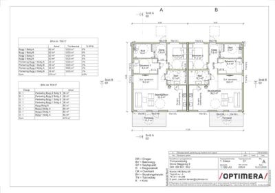
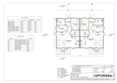
Plantegning

Tomannsbolig 476.0 m²

Etasje 1 476.0 m²

Rom Areal Vinduer Dører
Stue/kjøkken 101 39.3 m² 1 1
Soverom 1 102 8.4 m² 1 1
Soverom 2 103 11.7 m² 1 1
Bad 104 6.3 m² 0 1
Gang 105 7.9 m² 0 2
Bod 106 5.0 m² 1 1
Evt. soverom 107 8.0 m² 0 1
Terrasse 108 11.7 m² 0 0
Parkering 109 36.0 m² 0 1

Fasader

Tomannsbolig

Øst
Materiale
Tre
Taktype
Saltak
Høyde
2.9 m
Mønehøyde
4.6 m
Vinduer
2
Dører
1
Synlige etasjer
1
Vest
Materiale
Tre
Taktype
Saltak
Høyde
2.9 m
Mønehøyde
4.6 m
Vinduer
2
Dører
1
Synlige etasjer
1
Nord
Materiale
Tre
Taktype
Saltak
Høyde
2.9 m
Mønehøyde
4.6 m
Vinduer
4
Dører
2
Synlige etasjer
1
Sør
Materiale
Tre
Taktype
Saltak
Høyde
2.9 m
Mønehøyde
4.6 m
Vinduer
2
Dører
1
Synlige etasjer
1

Enebolig

Nordøst
Materiale
Tre
Taktype
Saltak
Takmat.
Tegl
Mønehøyde
219.5 m
Vinduer
4
Dører
2
Balkonger
2
Synlige etasjer
2
Nordvest
Materiale
Tre
Taktype
Saltak
Takmat.
Tegl
Mønehøyde
219.5 m
Vinduer
2
Dører
1
Synlige etasjer
2
Sørvest
Materiale
Tre
Taktype
Saltak
Takmat.
Tegl
Vinduer
6
Dører
2
Synlige etasjer
1
Søro
Materiale
Tre
Taktype
Saltak
Takmat.
Tegl
Vinduer
2
Dører
1
Synlige etasjer
2

Hendelser

21.04.2026 69/612 - Vesle Slaggveg 10, Hunndalen - Supplering av søknad
08.12.2025 69/612 - Vesle Slaggveg 10, Hunndalen - Supplering av søknad
03.11.2025 69/612 - Vesle Slaggveg 10, Hunndalen - Supplering av søknad
03.11.2025 69/612 - Vesle Slaggveg 10, Hunndalen - Supplering av søknad
31.10.2025 69/612 - Vesle Slaggveg 10, Hunndalen - Supplering innmålte koordinater
19.08.2025 69/612 - Vesle Slaggveg 10, Hunndalen - Svar på spørsmål vedrørende byggetillatelse
11.08.2025 69/612 - Vesle Slaggveg 10, Hunndalen - Vedrørende byggetillatelse gitt før fradeling
11.06.2025 69/612 - Vesle og Store Slaggveg, Hunndalen - Vedtak om tillatelse til oppføring av to tomannsboliger
18.03.2025 69/612 - Vesle Slaggveg 10 og 69/862 - Store Slaggveg 9, Hunndalen - Supplering av søknad
07.03.2025 69/612 - Vesle Slaggveg 10 og 69/862 - Store Slaggveg 9, Hunndalen - Oppføring av tomannsboliger