Rehabilitation Rammetillatelse Tomannsbolig

Renovering av tomannsbolig i Orionveien 4a, Andenes

📍 Orionveien 4A , 8480 ANDENES

Nøkkelinfo

Sakstype
Rehabilitering
Bygningstype
Tomannsbolig
Bruksareal
396 m²
Boenheter
2
Kommune
Andøy
Fylke
Nordland - Nordlánnda
Gnr / Bnr
46 / 76
Saksnummer
2025/1002
Fase
Rammetillatelse

Om byggesaken

Renovering av en vertikalt delt tomannsbolig fra 1960-tallet i Orionveien 4a-b, Andenes, med totalt ca. 396 m² areal. Tiltaket inkluderer utvendig etterisolering av yttervegger og grunnmur med ny stående royalimpregnert trepanel, utskifting av alle vinduer og dører til nye med samme format, riving og gjenoppbygging av verandaer på vestsiden, etablering av nye terrasser og trapp, samt oppgradering av utomhusarealer med grusdekke og beplantning. Innvendig oppgraderes 1. etasje med nytt bad, vaskerom, åpen kjøkkenløsning og nye overflater, mens kjelleren oppgraderes teknisk og får nytt toalettrom, men ikke til beboelse. Taket får nye sorte takpanner og utvidet takutstikk. Rør- og elektrisk anlegg fornyes. Energiklasse heves fra G til B. Prosjektet omfatter også drenering rundt grunnmur og oppgradering av avfallshåndtering med nytt overbygg. Fasadeendringene innebærer et betydelig visuelt uttrykksskifte med mørk panel, som kommunen har bedt om omprosjektering for å bedre tilpasse omkringliggende bebyggelse.

Produkter og materialer

Varmepumpe Ny varmepumpe

Antall: 2

Ny varmepumpe installeres på begge boenheter

Energibesparende varmepumpe for oppvarming

Terrasse Markterrasse i tre

🧱 Royalimpregnert tre

Nye markterrasser på østsiden ved inngangspartier

Terrasser i treverk ved innganger

Kjøkken Ny kjøkkeninnredning

Antall: 2

Nytt åpent kjøkken med ny innredning i begge boenheter

Oppgradering av kjøkken med ny innredning og åpen planløsning

Vinduer Utskifting av vinduer

Antall: 18

Alle vinduer byttes ut med nye i samme format som eksisterende

Utskifting av alle vinduer i bygget til nye med tilsvarende format

Annet Avfallshåndtering

🧱 Royalimpregnert tre

Antall: 1

Nytt overbygg for avfallskontainere og postkasser i royalimpregnert tre

Innhegning og overbygg for avfall og post

Mur Etterisolering grunnmur med armert puss

🧱 Armert puss

Etterisolering av grunnmur utvendig med armert puss

Isolering og beskyttelse av grunnmur

Isolasjon Utvendig etterisolering

🧱 150 mm isolasjon på yttervegger og grunnmur

150 mm isolasjon på yttervegger og grunnmur utvendig

Etterisolering av yttervegger og grunnmur utvendig

Terrasse Verandaer og terrasser i tre

🧱 Royalimpregnert tre

Eksisterende verandaer rives og bygges opp på nytt, nye terrasser etableres, alle i royalimpregnert treverk

Nye verandaer og terrasser i royalimpregnert tre, inkludert trapp mellom veranda og terrasse

Grunnarbeid Drenering

Ny drenering rundt hele bygget

Drenering rundt grunnmur for å sikre fuktsikring

Tak Saltak med takpanner

🧱 Sorte takpanner

Tak tekkes om med sorte takpanner, takutstikk utvides ca. 20 cm

Omlegging av tak med nye sorte takpanner og utvidet takutstikk

VVS Sanitærinstallasjoner

Oppgradering av røranlegg, nytt bad i 1. etasje, nytt vaskerom, nytt toalettrom i kjeller (senere fjernet)

Oppgradering og nyinstallasjon av sanitærutstyr og røranlegg

Gulv Innvendige overflater

Oppgradering av alle innvendige overflater i 1. etasje til god standard

Nye gulv, vegger og tak innvendig i 1. etasje

Elektro Elektrisk anlegg

Full oppgradering av elektrisk anlegg til gjeldende standard

Oppgradering av elektrisk installasjon i hele bygget

Fasade Stående panel

🧱 Royalimpregnert tre

Ny stående panel i mørkt royalimpregnert tre som kledning på yttervegger etter utvendig etterisolering

Utvendig kledning av yttervegger med stående royalimpregnert trepanel etter isolering

Dører Utskifting av ytterdører og innerdører

Antall: 11

Alle dører byttes ut med nye, inkludert ytterdører og innerdører

Utskifting av alle dører i bygget

Rekkverk Verandarekkverk

🧱 Liggende spiler i tre

Rekkverk/brystning med liggende spiler ned til ca. 0,5 m over terreng

Rekkverk på verandaer i treverk

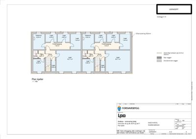
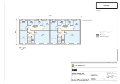
Plantegning

Enebolig 396.1 m²

Etasje 1 200.0 m²

Rom Areal Vinduer Dører
Stue / kjøkken 101 37.1 m² 2 1
Gang 102 9.6 m² 0 2
Sov 1 103 11.2 m² 1 1
Sov 2 104 10.2 m² 1 1
Nytt bad 105 6.1 m² 0 1
Nytt vaskerom 106 2.3 m² 0 1
Trappegang 107 6.3 m² 0 1
VF 108 2.8 m² 0 1

Etasje 0 196.1 m²

Rom Areal Vinduer Dører
Vaskerom 001 8.3 m² 0 1
Lager 002 4.3 m² 0 1
Lager 003 4.6 m² 0 1
Lager 004 7.4 m² 0 0
Fordelingsgang 005 7.5 m² 0 4
Gang 006 2.2 m² 0 2
Gang 007 7.2 m² 0 2
Lager 008 23.7 m² 0 1
Lager 009 6.6 m² 0 1
Lager 010 2.0 m² 0 0
nytt wc 011 1.7 m² 0 1

Fasader

Enebolig

Vest
Materiale
Tre
Taktype
Saltak
Høyde
2.5 m
Mønehøyde
4.6 m
Vinduer
5
Dører
1
Synlige etasjer
1
Sør
Materiale
Tre
Taktype
Saltak
Høyde
2.5 m
Mønehøyde
4.6 m
Vinduer
2
Dører
1
Synlige etasjer
1
Øst
Materiale
Tre
Taktype
Saltak
Høyde
2.5 m
Mønehøyde
4.6 m
Vinduer
4
Dører
1
Synlige etasjer
1
Nord
Materiale
Tre
Taktype
Saltak
Vinduer
6
Dører
2
Synlige etasjer
1

Hendelser

20.04.2026 Orionveien 4a-b Supplering av søknad 46/76
09.04.2026 Forelenget frist for tilleggsdokumentasjon
09.04.2026 Forelenget frist for tilleggsdokumentasjon
16.03.2026 Melding om mottatt klage - Gnr 46 bnr 76
13.03.2026 Behov for tilleggsdokumentasjon - Gnr 46 bnr 76 - Orionveien 4a-b - Renovering av tomannsbolig
12.03.2026 Klage på vedtak vedr. byggesak i Orionveien 4a-b_Sak 25_1002
19.02.2026 Rammetillatelse - Gnr 46 bnr 76 og bnr 77 - Orionveien 4a-b - Renovering av tomannsbolig
04.02.2026 Melding om mottatt søknad
02.02.2026 Orionveien 4a-b Søknad om igangsettingstillatelse 46/76
02.02.2026 Orionveien 4a-b Gjennomføringsplan 46/76
02.02.2026 Orionveien 4a-b Gjennomføringsplan 46/76
15.09.2025 Melding om mottatt søknad
20.08.2025 Melding om mottatt søknad
04.07.2025 Søknad om rammetillatelse 46/76