Rehabilitation UnderBehandling Tomannsbolig

Ombygging til tomannsbolig med tilbygg og carport på Osvegen 53

📍 Osvegen 35 , 6453 KLEIVE

Nøkkelinfo

Sakstype
Rehabilitering
Bygningstype
Tomannsbolig
Bruksareal
225 m²
Boenheter
2
Kommune
Molde
Fylke
Møre og Romsdal
Gnr / Bnr
67 / 31
Saksnummer
20/22068
Fase
Under behandling

Om byggesaken

Prosjektet omfatter ombygging av eksisterende enebolig til en horisontaldelt tomannsbolig med totalt 2 boenheter. Det inkluderer et tilbygg på ca. 85 m², riving av eksisterende garasje, oppføring av ny carport på ca. 15 m², samt utvidelse av veranda i 1. etasje og ny veranda i 2. etasje. Bygget har saltak og trekledning, med gesimshøyde på 6,5 meter og mønehøyde på 8,2 meter. Innvendig er det endringer i planløsning med nye våtrom, brannskille og bruksendring av kjellerrom til hoveddel. Bygget er fordelt på 3 etasjer med trapper, flere soverom, bad, stue/kjøkken og boder. Tiltaket er plassert på en tomt på 725 m² med tilknytning til kommunalt vann og avløp, og det er gjennomført skredfarevurdering som konkluderer med tilfredsstillende sikkerhet. Prosjektet har fått dispensasjon for byggegrense mot veg og maksimal gesimshøyde, og er under aktiv byggesaksbehandling med godkjente endringer.

Produkter og materialer

VVS Sanitærinstallasjoner

Nye våtrom med sanitærinstallasjoner i begge boenheter

Sanitærinstallasjoner for bad og kjøkken

Fasade Trekledning

🧱 Tre

Trekledning på fasader Sør, Vest, Øst og Nord

Fasade med trekledning og saltak

Ventilasjon Deentralisert ventilasjon

Prosjektert deentralisert ventilasjonsanlegg

Ventilasjon for bolig med utleiedel

Betong Grunnmur og fundament

🧱 Betong

Grunnmur for tilbygg og carport

Betongfundament og grunnmur for ny bygningsdel

Tak Saltak

Saltak med gesimshøyde 6,5 m og mønehøyde 8,2 m

Saltak på bolig og carport

Gulv Parkett og fliser

Innvendige gulv med eikeparkett og fliser i våtrom

Gulvbelegg i bolig

Vinduer Fasadevindu

🧱 Tre

Antall: 14

Vinduer i fasade, totalt 14 stk fordelt på alle etasjer

Fasadevindu i tre med 3-lags energiglass antatt

Isolasjon Vegger og tak

Isolasjon i vegger og tak iht. TEK17, med dispensasjon for radon og energi

Isolasjon for varme og radonsikring

Mur Membranlegging våtrom

Membranlegging i våtrom utført av ansvarlig murer

Vanntetting i bad

Elektro Elektrisk anlegg

Elektrisk anlegg for ny boligstruktur og carport

Elektrisk installasjon og belysning

Maling Innvendig og utvendig maling

Maling av innvendige vegger og utvendig trekledning

Overflatebehandling av vegger og fasade

Garasjeport Carport

🧱 Tre

Antall: 1

Ny carport på ca. 15 m² med tak og åpen konstruksjon

Carport for parkering

Trapper Innvendig trapp

Antall: 1

Innvendig trapp mellom etasjer

Innvendig trapp i bolig

Grunnarbeid Tomtearbeid og drenering

Grunnarbeid for tilbygg og carport, inkl. drenering

Tomtearbeid og fundamentering

Rekkverk Verandarekkverk

🧱 Tre

Antall: 3

Rekkverk på veranda i 1. og 2. etasje

Sikring av uteoppholdsareal

Dører Ytterdør og skyvedør balkong

🧱 Tre/glass

Antall: 7

Ytterdører og skyvedør til balkong i 2. etasje

Ytterdører og balkongskyvedør i tre og glass

Plantegning

Leilighet 170.1 m²

Etasje 3 48.9 m²

Rom Areal Vinduer Dører
Sov 316 10.3 m² 1 1
Gang 317 11.0 m² 0 3
Sov 318 10.4 m² 1 1
Bod 319 7.5 m² 0 1

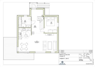
Etasje 2 68.0 m²

Rom Areal Vinduer Dører
Stue/kjøkken 212 37.7 m² 3 1
Gang 213 13.9 m² 0 2
Bad 214 6.4 m² 0 1
Sov 215 10.0 m² 1 1

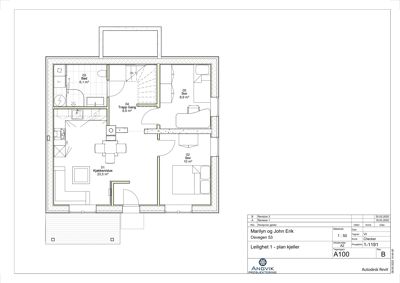
Etasje 0 53.2 m²

Rom Areal Vinduer Dører
Kjøkken/stue 01 23.5 m² 1 1
Sov 02 10.0 m² 1 1
Bad 03 6.1 m² 0 1
Trapp Gang 04 8.6 m² 0 1
Sov 05 8.9 m² 1 1

Fasader

Enebolig

Sør
Materiale
Tre
Taktype
Saltak
Høyde
6.5 m
Mønehøyde
8.2 m
Vinduer
6
Dører
1
Balkonger
2
Synlige etasjer
4
Vest
Materiale
Tre
Taktype
Saltak
Høyde
6.5 m
Mønehøyde
8.2 m
Vinduer
1
Dører
0
Balkonger
1
Synlige etasjer
4
Øst
Materiale
Tre
Taktype
Saltak
Høyde
6.5 m
Mønehøyde
8.2 m
Vinduer
3
Dører
1
Balkonger
2
Synlige etasjer
4
Nord
Materiale
Tre
Taktype
Saltak
Høyde
6.5 m
Mønehøyde
8.2 m
Vinduer
3
Dører
1
Balkonger
1
Synlige etasjer
4

Hendelser

16.04.2026 20/22068-21 67/43/0/0 Osvegen 53, Søknad om endring av gitt tillatelse eller godkjenning
09.08.2024 20/22068-20 Fakturagrunnlag
23.11.2023 20/22068-18 67/43/0/0 Osvegen 53, søknad om endring av gitt tillatelse eller godkjenning
14.12.2022 20/22068-13 67/43/0/0 Osvegen 53, godkjent endring av tillatelse
24.11.2022 20/22068-11 67/43/0/0 Osvegen 53, søknad om endring av gitt tillatelse
11.11.2021 20/22068-10 Osvegen 53, godkjent ombygging, bruksendring, tilbygg og carport
09.11.2021 20/22068-9 Osvegen 53, 6453 Kleive- naboerklæring for carport
25.08.2021 20/22068-8 Skredfare-vurdering fra Norconsult for Osvegen 53, Kleive
12.01.2021 20/22068-7 Etterlyst dokumentasjon forruten flomvurdering
17.11.2020 20/22068-6 Osvegen 53, tilbakemelding på søknad om ombygging og tilbygg