Extension UnderBehandling Tomannsbolig

Tilbygg veranda og carport i Lauvhaugveien 11B

📍 Lauvhaugveien 11A , 6522 FREI

Nøkkelinfo

Sakstype
Tilbygg
Bygningstype
Tomannsbolig
Bruksareal
15 m²
Boenheter
2
Kommune
Kristiansund
Fylke
Møre og Romsdal
Gnr / Bnr
135 / 255
Saksnummer
25/03512
Fase
Under behandling

Om byggesaken

Forlengelse av eksisterende veranda med målene ca. 4,1 x 3,8 meter som også skal fungere som tak for en carport under. Tilbygget bygges som en forlengelse av verandaen på en tomannsbolig, med gjerde i samme høyde og utførelse som eksisterende veranda. Carporten får flatt tak og benytter eksisterende fundamenter fra tidligere planlagt, men ikke oppført carport. Bygget er innenfor byggegrense og under 15 m², og skal meldes til kommunen ved ferdigstillelse. Materialer og konstruksjon tilpasses eksisterende veranda og bolig.

Produkter og materialer

Tak Flatt tak over carport

🧱 tre og drenerende plater under terrassegulv (TIL-TAK)

Antall: 1

Flatt tak som forlengelse av veranda, benytter eksisterende fundament

Tak over carport som forlengelse av veranda

Fasade Veranda forlengelse

🧱 tre

Antall: 1

ca. 4,1 x 3,8 meter, gjerde 92 cm høy i samme utførelse som eksisterende veranda

Forlengelse av eksisterende veranda som også fungerer som tak for carport

Rekkverk Gjerde på veranda

🧱 tre

Antall: 1

Gjerde 92 cm høy, samme utførelse som eksisterende veranda

Sikkerhetsrekkverk på forlenget veranda

Tømrer Bygningskonstruksjon veranda og carport

🧱 tre

Konstruksjon for forlengelse av veranda og tak over carport

Tømrerarbeid for oppføring av tilbygget

Grunnarbeid Fundament for carport

🧱 betong

Antall: 1

Eksisterende fundament støpt i forbindelse med husbygging

Fundament for carport under veranda

Plantegning

Enebolig 374.0 m²

Etasje 2 230.0 m²

Rom Areal Vinduer Dører
Stue 201 23.0 m² 3 1
Sove 202 16.0 m² 1 1
Sove 203 16.0 m² 1 1
Bad 204 7.1 m² 0 1
Kjøkken 205 11.0 m² 1 1
Balcony 206 10.0 m² 0 1
Balcony 207 10.0 m² 0 1
Balcony 208 10.0 m² 0 1

Etasje 1 144.0 m²

Rom Areal Vinduer Dører
Stue 101 36.0 m² 2 2
Kjøkken 102 12.0 m² 1 1
Gang 103 12.0 m² 0 2
Bad 104 6.0 m² 0 1
Vaskerom 105 4.0 m² 0 1
Sove 1 106 12.0 m² 1 1
Sove 2 107 12.0 m² 1 1
Sove 3 108 12.0 m² 1 1
Sove 4 109 12.0 m² 1 1
Teknisk 110 4.0 m² 0 1
Garasje 111 24.0 m² 1 1

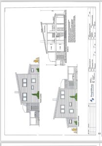
Fasader

Enebolig

Sydøst
Materiale
Tre
Taktype
Saltak
Høyde
6.0 m
Mønehøyde
8.0 m
Vinduer
4
Dører
1
Balkonger
1
Synlige etasjer
2
Nordvest
Materiale
Tre
Taktype
Saltak
Høyde
6.0 m
Mønehøyde
8.0 m
Vinduer
4
Dører
1
Balkonger
1
Synlige etasjer
2

Hendelser

20.04.2026 25/03512-7 Lauvhaugveien 11B - vedrørende søknadsplikt
25.03.2026 25/03512-6 Lauvhaugveien 11 B - svar på spørsmål om tilbygg
17.03.2026 25/03512-5 Lauvhaugveien 11B - spørsmål knyttet til om tilbygget er søknadspliktig eller ikke.
14.05.2025 25/03512-4 Lauhaugveien 11b – Svar på henvendelse om søknadsplikt
08.05.2025 25/03512-3 BYGG-25/00369 endre sakstype
06.05.2025 25/03512-2 Lauvhaugveien 11B, melding om mottatt søknad
05.05.2025 25/03512-1 Lauvhaugveien 11B, søknad om tiltak på carport