Extension UnderBehandling Tomannsbolig

Tilbygg av altan og innglassing på Melstokkevegen 32A

📍 Melstokkevegen 32A , 4250 KOPERVIK

Nøkkelinfo

Sakstype
Tilbygg
Bygningstype
Tomannsbolig
Bruksareal
18 m²
Boenheter
2
Kommune
Karmøy
Fylke
Rogaland
Gnr / Bnr
61 / 140
Saksnummer
2024/6478
Fase
Under behandling

Om byggesaken

Ny altan på 17,5 m² bygges på vestfasaden av en tomannsbolig i Melstokkevegen 32A, med adkomst fra egen halvpart av felles inngangsareal i 2. etasje. Eksisterende altan på østfasaden innglasses med skyvedører i glass, mens det eksisterende glassrekkverket beholdes som fallsikring. Bygget er en tomannsbolig med to etasjer, flatt tak og trekledning. Tilbygget plasseres på fellesareal, og det foreligger vedtak fra sameiet som godkjenner tiltaket. Innglassingen av altan på østfasaden er senere trukket fra søknaden. Prosjektet omfatter også nødvendige brannsikringstiltak for verandaen mot underliggende leilighet.

Produkter og materialer

Vinduer Skyvedører i glass

🧱 Glass, usisolert

Skyvedører i glass for innglassing av eksisterende altan

Skyvedører i glass for innglassing av eksisterende altan på østfasade

Balkong Altan på 17,5 m²

🧱 Tre med flatt tak

Antall: 1

Altan på vestfasade med adkomst fra 2. etasje, flatt tak, trekledning

Ny altan på 17,5 m² på vestfasaden med tilkomst fra egen halvpart av felles inngangsareal

Balkong Innglasset terrasse

🧱 Skyvedører i glass, eksisterende glassrekkverk beholdes

Antall: 1

Innglassing av eksisterende altan på østfasade med skyvedører, usisolert

Innglassing av eksisterende altan på østfasade med skyvedører i glass, eksisterende glassrekkverk beholdes som fallsikring. (Senere trukket fra søknaden)

Rekkverk Glassrekkverk

🧱 Glass

Eksisterende glassrekkverk beholdes som fallsikring

Glassrekkverk som fallsikring på innglasset altan

Fasade Trekledning

🧱 Tre

Fasade i tre med flatt tak

Fasade på tomannsbolig i tre med flatt tak

Tømrer Bygging av altan og innglassing

🧱 Treverk

Tømrerarbeid for oppføring av altan og innglassing

Tømrerarbeid for ny altan og innglassing av eksisterende altan

Grunnarbeid Fundamentering for altan

Fundamentering og grunnarbeid for ny altan på fellesareal

Grunnarbeid og fundamentering for ny altan på fellesareal

Tak Flatt tak

Flatt tak på eksisterende bygg og tilbygg

Flatt tak på eksisterende bygg og tilbygg

Brannvern Brannsikring veranda

Brannsikringstiltak for ny veranda mot underliggende leilighet kreves

Brannsikring av ny veranda mot underliggende leilighet iht. krav

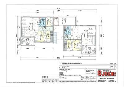
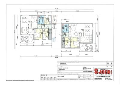
Plantegning

Mannsbolig 772.0 m²

Etasje 1 386.0 m²

Rom Areal Vinduer Dører
Stue/Kjøkken 001 49.1 m² 1 1
Sov. 1 002 11.1 m² 1 1
Sov. 2 003 11.1 m² 1 1
Bod 004 3.0 m² 0 1
Entre 005 3.9 m² 0 1
Bad/Vask 006 7.0 m² 0 1
Sov. 3 007 7.5 m² 1 1
Bod 008 2.9 m² 0 1
Entre 009 7.6 m² 0 1
Bad/Vask 010 6.7 m² 0 1
Stue/Kjøkken 011 37.5 m² 1 1
Sov. 1 012 11.1 m² 1 1
Sov. 2 013 11.1 m² 1 1
Bod 014 5.0 m² 0 1
Entre 015 3.9 m² 0 1
Bad/Vask 016 7.0 m² 0 1
Sov. 3 017 7.5 m² 1 1
Bod 018 2.9 m² 0 1
Entre 019 7.6 m² 0 1
Bad/Vask 020 6.7 m² 0 1

Etasje 2 386.0 m²

Rom Areal Vinduer Dører
Stue / Kjøkken 001 37.5 m² 1 1
Sov. 1 002 11.1 m² 1 1
Sov. 2 003 9.0 m² 1 1
Bod 004 3.0 m² 0 1
Entre 005 7.6 m² 0 2
Bad / Vask 006 6.7 m² 0 1
Sov. 3 007 7.5 m² 1 1
Bed 012 3.0 m² 0 1
Entre 013 3.9 m² 0 2
Altan 017 17.5 m² 0 1
Stue / Kjøkken 009 48.6 m² 1 1
Sov. 1 010 11.1 m² 1 1
Sov. 2 011 7.7 m² 1 1
Bad / Vask 014 7.0 m² 0 1
Entre 015 3.9 m² 0 2
Innglasset Terrasse 016 13.9 m² 0 1

Enebolig 108.0 m²

Etasje 2 108.0 m²

Rom Areal Vinduer Dører
Stue SNR 3 50.4 m² 2 2
Soverom SNR 4 33.6 m² 1 1
Bad U01 12.0 m² 0 1
Gang U02 12.0 m² 0 2

Fasader

Mannsbolig

Øst
Materiale
Tre
Taktype
Flatt tak
Vinduer
6
Dører
2
Balkonger
1
Synlige etasjer
2
Sør
Materiale
Tre
Taktype
Flatt tak
Vinduer
2
Dører
1
Synlige etasjer
2

Enebolig

Vest
Materiale
Tre
Taktype
Flatt tak
Vinduer
4
Dører
1
Synlige etasjer
1
Nord
Materiale
Tre
Taktype
Flatt tak
Vinduer
3
Dører
1
Synlige etasjer
1

Hendelser

14.04.2026 Gnr. 61, bnr. 140 - Supplering av søknad
07.04.2025 Gnr. 61, bnr. 140 - fortsatt mangler ved søknaden - Tilbygg av veranda
03.04.2025 Gnr. 61, bnr. 140 - Supplering av søknad: kart og følgebrev
06.08.2024 Tilbakemelding om mangler - Bygge altan og innglassing - gnr. 61, bnr. 140 - Melstokkevegen 32A
05.08.2024 Gnr. 61, bnr. 140 - Bygge altan og innglassing - Melstokkevegen 32A