Extension Soeknad Tomannsbolig

Tilbygg til tomannsbolig i Nedre Skjoldvegen 22A, Bergen

📍 Nedre Skjoldvegen 22A , 5236 RÅDAL

Nøkkelinfo

Sakstype
Tilbygg
Bygningstype
Tomannsbolig
Bruksareal
366 m²
Boenheter
2
Kommune
Bergen
Fylke
Vestland
Gnr / Bnr
40 / 185
Saksnummer
BYGG-2026/12211
Fase
Søknad

Om byggesaken

Tilbygg på to etasjer til eksisterende vertikaldelt tomannsbolig i Nedre Skjoldvegen 22A, Bergen. Tilbygget har et areal på ca. 75 m² og øker boligens totale BRA til 366 m² og BYA til 252 m². Bygget får trekonstruksjoner med C24 konstruksjonstrevirke, limtre eller stålbjelker for bærekonstruksjoner, og yttervegger med mineralullisolasjon og trepanel. Taket er saltak med takstein. Vinduer og dører skal ha U-verdi maks 0,8 W/(m²K) og lydisolerende egenskaper i henhold til TEK17. Det etableres 3 parkeringsplasser på eiendommen. Bygget prosjekteres med hensyn til støy og luftkvalitet fra nærliggende E39, med lydisolasjonstiltak og balansert ventilasjon. Fasader er i tre med saltak, gesimshøyde ca. 4,2-4,7 m og mønehøyde opptil 8,25 m.

Produkter og materialer

Vinduer Isolerglassvinduer med lydisolasjon

Antall: 12

Vinduer med U-verdi maks 0,8 W/(m²K), lydisolasjon i henhold til NS 8175 klasse C, uten spalteventiler

Vinduer med isolerglass og lydisolerende egenskaper mot vegtrafikkstøy

Fasade Trepanel kledning

🧱 Trepanel 15mm med Visir grunning og maling/beis

Luftet ytterkledning av tilsvarende type som eksisterende, overflatebehandlet

Ytterkledning i tre med overflatebehandling

Isolasjon Yttervegger og tak

🧱 Mineralull 198-250mm i vegger, 300mm i tak

Mineralullisolasjon i yttervegger og takkonstruksjon for U-verdi 0,18 W/m²K i vegg og 0,13 W/m²K i tak

Isolasjon for å oppnå TEK17 krav til varmeisolasjon

Grunnarbeid Tomtearbeid og parkeringsplass

Antall: 3

Etablering av 3 parkeringsplasser på eiendommen

Grunnarbeid for parkeringsplasser og uteområder

Ventilasjon Balansert mekanisk ventilasjon

Balansert mekanisk ventilasjon til alle oppholdsrom, erstatning for spalteventiler

Ventilasjonssystem for å sikre god luftkvalitet og lydisolasjon

Tømrer Bærekonstruksjon og etasjeskillere

🧱 Konstruksjonstrevirke C24, limtre Gl32c, stålbjelker S355J2

Bærebjelker, takbjelker, etasjeskillere i C24, limtre eller stålbjelker

Bærekonstruksjon for tilbygg i to etasjer med tilstrekkelig avstivning og forankring

Mur Betonggulv og grunnmur

🧱 Betonggulv 80mm, radonsperre, XPS 80mm 400mm isolasjon

Betonggulv med fuktsperre og radonsperre, isolasjon med XPS 80

Konstruksjon mot grunn med isolasjon og radonsperre

Dører Ytterdører og altandører

Dører med U-verdi maks 0,8 W/(m²K), lydisolerende, samme slagretning og utseende som eksisterende

Ytterdører og altandører med isolasjon og lydisolasjon

Tak Saltak med takstein

🧱 Takstein, taktro, taksperrer 50x250mm med mineralull

Saltak med betongtakstein og isolert takkonstruksjon

Tak med saltak og isolasjon i henhold til TEK17

Elektro Elektrisk oppvarming og varmekabler

Elektrisk oppvarming og varmekabler på bad

Oppvarmingsløsning for bad og øvrige rom

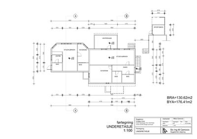
Plantegning

Enebolig 176.4 m²

Etasje 0 176.4 m²

Rom Areal Vinduer Dører
Entre 001 0.0 m² 0 1
Bad 002 0.0 m² 0 1
Stue/Kjøkken 003 0.0 m² 2 1
Soverom 004 0.0 m² 1 1
Bod 005 0.0 m² 0 1
Vinterhage 006 0.0 m² 4 1
Stue/Kjøkken 007 0.0 m² 2 1
Soverom 008 0.0 m² 1 1
Gang 009 0.0 m² 0 2
Bod 010 0.0 m² 0 1
Bad 011 0.0 m² 0 1
Stue/Kjøkken1 V3+V4 0.0 m² 1 1
Sov6 D3 0.0 m² 0 0
bad V11 0.0 m² 0 0
Stue/Kjøkken2 U01 0.0 m² 0 0
gang U02 0.0 m² 0 0
Sov2 U03 0.0 m² 0 0
Sov4 U04 0.0 m² 0 0
bad U05 0.0 m² 0 0

Etasje 1 0.0 m²

Rom Areal Vinduer Dører
Stue/Kjøkken3 D1 0.0 m² 1 1
Sov1 V3+V4 0.0 m² 1 1
Sov5 V11 0.0 m² 2 0
stue U01 0.0 m² 0 0
bad U02 0.0 m² 0 0
Sov2 U03 0.0 m² 0 0
bad U04 0.0 m² 0 0
gang U05 0.0 m² 0 0
kjøkken U06 0.0 m² 0 0

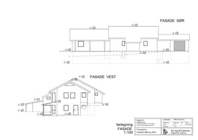
Fasader

Enebolig

Sør
Materiale
Tre
Taktype
Saltak
Høyde
4.2 m
Mønehøyde
6.7 m
Vinduer
2
Dører
1
Synlige etasjer
1
Vest
Materiale
Tre
Taktype
Saltak
Høyde
4.7 m
Mønehøyde
6.7 m
Vinduer
3
Dører
1
Synlige etasjer
1
NORD
Materiale
Tre
Taktype
Saltak
Høyde
4.7 m
Mønehøyde
8.2 m
Vinduer
8
Dører
2
Balkonger
1
Synlige etasjer
2
ØST
Materiale
Tre
Taktype
Saltak
Høyde
4.2 m
Mønehøyde
8.2 m
Vinduer
3
Dører
1
Synlige etasjer
2

Hendelser

30.03.2026 Nedre Skjoldvegen 22A Søknad om tillatelse i ett trinn 40/185