Extension Soeknad Tomannsbolig

Tilbygg til tomannsbolig i Nøttveitvegen 156, Bergen

📍 Nøttveitvegen 146 , 5238 RÅDAL

Nøkkelinfo

Sakstype
Tilbygg
Bygningstype
Tomannsbolig
Bruksareal
150 m²
Boenheter
2
Kommune
Bergen
Fylke
Vestland
Gnr / Bnr
88 / 6
Saksnummer
BYGG-2026/12383
Fase
Søknad

Om byggesaken

Tilbygg til en tomannsbolig i Nøttveitvegen 156 i Bergen, som innebærer utvidelse nordover over eksisterende carport med ny etasje over. Carporten beholdes på samme plass, men gulvet senkes for å oppnå tilstrekkelig romhøyde i etasjen over. Tilbygget følger eksisterende arkitektur med samme materialbruk, farger og vindusformater. Bygget får to etasjer med saltak og trekledning, og det opprettholdes uteoppholdsareal på totalt 110 m². Tilbygget øker boligens areal fra 112 m² til 150 m², uten å øke fotavtrykket (BYA). Parkering opprettholdes med minimum én biloppstillingsplass. Det er innhentet samtykke fra naboer og sameiet for bygging nærmere enn 4 meter fra nabogrense.

Produkter og materialer

Elektro Elektrisk installasjon

Elektrisk anlegg til tilbygg og eksisterende bolig

Elektroinstallasjon i tilbygg

Vinduer Fasadevindu

🧱 Tre eller tilsvarende, tilpasset eksisterende vindusformater

Antall: 19

Vinduer i samme stil som eksisterende, fordelt på fasader

Vinduer til tilbygg og eksisterende fasade

Tømrer Trekonstruksjoner

🧱 Tre

Montering av trekonstruksjoner for tilbygg

Tømrerarbeid for tilbyggets bærende konstruksjoner

VVS Sanitær og varme

VVS-installasjoner for bad og oppvarming i tilbygg

VVS-installasjoner i tilbygg

Grunnarbeid Fundamentering og gulvjustering

Senking av gulv i tilbygg over carport for å oppnå romhøyde

Grunnarbeid for tilbygg og justering av gulv over carport

Fasade Trekledning

🧱 Tre

Materialbruk og farger videreført fra eksisterende bygg

Trekledning for fasade på tilbygg

Isolasjon Bygningsisolasjon

Isolasjon i vegger, tak og gulv i tilbygg

Isolasjon for energieffektivitet og komfort

Gulv Innvendige gulv

Gulv i tilbygg, sannsynligvis parkett eller tilsvarende

Innvendige gulv i tilbygg

Terrasse Uteoppholdsareal

Opprettholdelse av uteoppholdsareal på 110 m² etter bebyggelse

Terrasse og uteareal rundt tilbygg

Tak Saltak

🧱 Takstein eller tilsvarende

Saltak som eksisterende bygg

Saltak på tilbygg

Dører Ytterdører

🧱 Tre eller tilsvarende

Antall: 7

Dører i samme stil som eksisterende bygg

Ytterdører til tilbygg og eksisterende bygg

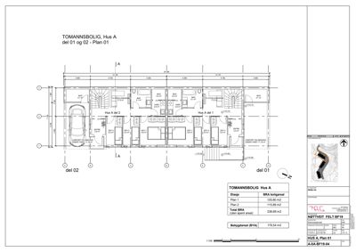
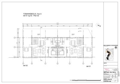
Plantegning

Tomannsbolig 303.6 m²

Etasje 2 182.8 m²

Rom Areal Vinduer Dører
TV-STUE/KJØKKEN 201 41.4 m² 0 1
SOV 4 202 9.9 m² 0 1
BAD 203 4.6 m² 0 1
SOV 4 204 9.9 m² 0 1
BAD 205 4.6 m² 0 1
TV-STUE/KJØKKEN 206 41.4 m² 0 1
SOV 4 207 9.9 m² 0 1
BAD 208 4.6 m² 0 1
SOV 4 209 9.9 m² 0 1
BAD 210 4.6 m² 0 1
TERASSE 211 57.0 m² 0 1
TERASSE 212 55.0 m² 0 1

Etasje 1 120.8 m²

Rom Areal Vinduer Dører
Carport og inngang 101 17.2 m² 0 1
Entre 102 2.9 m² 0 1
Sov 3 103 6.3 m² 0 1
Sov 2 104 6.3 m² 0 1
Sov 1 105 9.9 m² 0 1
Bod 106 4.1 m² 0 1
TV-Stue/Lekekrok 107 17.0 m² 1 1
Bad 108 5.1 m² 0 1
Vask 109 2.9 m² 0 1
Bod 110 2.0 m² 0 1

Fasader

Hus A

Sørøst
Materiale
Tre
Taktype
Saltak
Høyde
6.2 m
Mønehøyde
7.9 m
Vinduer
2
Dører
1
Balkonger
1
Synlige etasjer
2
Sørvest
Materiale
Tre
Taktype
Saltak
Høyde
6.2 m
Mønehøyde
7.9 m
Vinduer
6
Dører
2
Balkonger
2
Synlige etasjer
2
Nordvest
Materiale
Tre
Taktype
Saltak
Høyde
6.5 m
Mønehøyde
8.2 m
Vinduer
1
Dører
1
Balkonger
1
Synlige etasjer
2
Nordøst
Materiale
Tre
Taktype
Saltak
Høyde
6.5 m
Mønehøyde
8.2 m
Vinduer
10
Dører
2
Balkonger
1
Synlige etasjer
2

Hendelser

14.04.2026 Bekreftelse på mottatt søknad
09.04.2026 Nøttveitvegen 156 Søknad om tillatelse i ett trinn 88/6