Extension Igangsettingstillatelse Tomannsbolig

Tilbygg og ny garasje på tomannsbolig, Skjeggedalsvegen 27A

📍 Skjeggedalsvegen 27A , 5770 TYSSEDAL

Nøkkelinfo

Sakstype
Tilbygg
Bygningstype
Tomannsbolig
Bruksareal
239 m²
Boenheter
2
Kommune
Ullensvang
Fylke
Vestland
Gnr / Bnr
74 / 178
Saksnummer
2023/2715
Fase
Igangsettingstillatelse

Om byggesaken

Prosjektet omfatter riving av eksisterende mindre tilbygg og deler av garasje, og oppføring av nytt større tilbygg med kjeller til en tomannsbolig i Skjeggedalsvegen 27A. Tilbygget får en moderne arkitektonisk utforming med stående royalimpregnert trekledning og saltak, lavere enn eksisterende bygg for å dempe volumet. Det oppføres også en ny frittstående dobbelgarasje med bodareal i underetasjen. Totalt areal for tomannsboligen etter tiltaket er ca. 239 m². Tiltaket inkluderer også oppgradering av VA-anlegg med ny stikkledning, terrenginngrep i forbindelse med kjeller, og forbedret adkomst med snuhammer på egen tomt. Tiltaket er innenfor aktsemdsområde for flom, men vurdert som trygt med sikkerhetsklasse F1. Dispensasjon er gitt for overskridelse av utnyttelsesgrad og bygging innenfor byggegrense mot kommunal veg. Prosjektet har ansvarlige foretak for arkitektur, brannkonsept, og øvrige tekniske fag, og er plassert i tiltaksklasse 1.

Produkter og materialer

VVS Vannforsyning og avløp

Ny stikkledning med større diameter, tilknytning til offentlig nett

Oppgradering av VA-anlegg for tilbygg

Dører Ytterdører

🧱 Tre eller tilsvarende

Antall: 4

Ytterdører til tilbygg og garasje

Nye ytterdører i tilbygg og garasje

Brannvern Brannkonsept

Brannkonsept prosjektert av Norconsult ASA

Brannsikringstiltak i tilbygg og garasje

Riving Riving av eksisterende tilbygg og garasje

Riving av mindre tilbygg og deler av garasje

Riving før oppføring av nytt tilbygg og garasje

Grunnarbeid Terrenginngrep og sprenging

Sprenging og fjerning av masser for kjeller og garasje

Grunnarbeid for nytt tilbygg med kjeller og garasje

Betong Kjeller og fundamenter

Betongkonstruksjoner for kjeller og fundamenter

Betongarbeid for kjeller i tilbygg og garasjefundament

Gulv Innvendige gulv

Gulv i tilbygg og garasje, ikke spesifisert materiale

Innvendige gulv i nytt tilbygg

Tømrer Trekonstruksjoner

🧱 Tre

Montering av trekonstruksjoner for tilbygg og garasje

Tømrerarbeid for tilbygg og garasje

VVS Sanitærinstallasjoner

Nye sanitærinstallasjoner i tilbygg og garasje

VVS-installasjoner for nytt tilbygg og garasje

Ventilasjon Ventilasjon og klimainstallasjoner

Ventilasjon og klimainstallasjoner i tiltaket

Ventilasjon og klima for nytt tilbygg

Maling Utvendig maling

Maling av fasade i tilbygg

Overflatebehandling av ny fasade

Tak Saltak

🧱 Skifer på eksisterende, ny saltak på tilbygg

Saltak med lavere mønehøyde enn eksisterende

Taktekking for tilbygg og garasje

Fasade Trekledning

🧱 Royalimpregnert tre, stående

Moderne utforming, tilpasset eksisterende bygg

Fasadebekledning for nytt tilbygg

Garasjeport Dobbel garasjeport

Antall: 1

Garasjeport til ny dobbelgarasje

Garasjeport for ny frittstående dobbelgarasje

Vinduer Fasadevindu

🧱 Moderne vinduer i tilbygg, ulike størrelser

Antall: 10

Moderne utforming, tilpasset arkitektur

Nye fasadevinduer i tilbygg

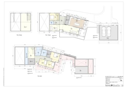
Plantegning

Enebolig 239.2 m²

Etasje 0 104.4 m²

Rom Areal Vinduer Dører
Kjeller 101 16.3 m² 0 1
Lager/bod 103 8.3 m² 0 1
Lager/bod 104 18.4 m² 0 1
Del av vaskerom 102 104.4 m² 0 1
Soverom 105 9.8 m² 1 1
Korridor 106 15.0 m² 0 0
Vaskerom 107 7.4 m² 0 1
Bad 108 12.2 m² 0 1
Garderobe 109 5.3 m² 0 1

Etasje 1 104.4 m²

Rom Areal Vinduer Dører
Gang 201 8.9 m² 0 1
Bad 202 4.4 m² 0 1
Kjøkken 203 15.5 m² 0 1
Stove 204 15.6 m² 0 1
Stove 205 15.7 m² 0 1
Stue 101 27.9 m² 1 1
Kjøkken 102 22.2 m² 1 1
Gang 103 4.4 m² 0 1
Sov 104 13.6 m² 1 1
Sov 105 15.5 m² 1 1
Kjøkkenbod 106 8.3 m² 1 1
Gang 107 10.7 m² 0 1

Etasje 2 30.4 m²

Rom Areal Vinduer Dører
Loft-stove 301 22.7 m² 0 1
Sov 302 9.7 m² 0 1
Loft-stue 101 32.7 m² 0 0

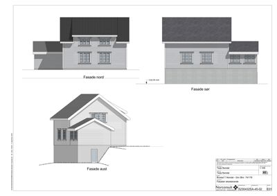
Fasader

Garasje

Nord
Materiale
Tre
Taktype
Saltak
Vinduer
0
Dører
1
Synlige etasjer
1

Enebolig

Nord
Materiale
Tre
Taktype
Saltak
Vinduer
4
Dører
1
Synlige etasjer
1
Øst
Materiale
Tre
Taktype
Saltak
Vinduer
4
Dører
1
Balkonger
1
Synlige etasjer
2
Sør
Materiale
Tre
Taktype
Saltak
Vinduer
2
Dører
0
Synlige etasjer
1

Hendelser

16.04.2026 Skjeggedalsvegen 27A - Søknad om igangsettingstillatelse - gnr. 74, bnr. 178
09.04.2026 Sak: 23/2715 - Førebuing til søknad om endring
13.05.2024 Vedtak - Rammeløyve til tilbygg til tomannsbustad m.m. - gnr. 74, bnr. 178 - Skjeggedalsvegen 27 A
13.05.2024 Vedtak - Dispensasjon - gnr. 74, bnr. 178 - Skjeggedalsvegen 27 A - tilbygg til tomannsbustad
08.05.2024 Gjennomføringsplan Skjeggedalsvegen 27A - gnr. 74, bnr. 178
03.04.2024 Gnr. 74, bnr. 178 - Ber om status på søknad om rammeløyve
05.02.2024 Gnr. 74, bnr. 178 - Skjeggedalsvegen 27 A - vurdering av reell flaumfare
25.01.2024 Gnr.74, bnr.178- Skjeggedalsvegen 27A- Søknad om rammetillatelse
09.10.2023 Referat frå førehandskonferanse - gnr. 74, bnr. 178 - Skjeggedalsvegen 27 A
14.09.2023 Gnr.74, bnr.178 - Førespurnad om førhandskonferanse