Other 1752 treff

🏗️
Extension Other

Oppføring av terrasse i Heptekjerrvegen 70, Vennesla

Ny terrasse skal oppføres på eiendommen i Heptekjerrvegen 70. Terrassen vil være et utendørs konstruksjonselement knytt…

πŸ“ Heptekjerrvegen 70 Vennesla
Fotografier av en bolig med vindu og veranda, inkludert et bilde der en sirkel markerer et vindu.
FacadeChange Other

Fasadeendringer med nye vinduer og verandadør i Krags gate 41

Fasadeendringer på en Sefrak-registrert bolig fra slutten av 1800-tallet og et nyere tilbygg i Krags gate 41. Tiltaket …

πŸ“ Krags gate 41 Risør
🏗️
NewConstruction Other

Ny kyllinghus på Berland 50

Ny driftsbygning for kyllingproduksjon oppføres på eiendommen Berland 50. Bygget skal fungere som et kyllinghus, tilpas…

πŸ“ Berland 50 Bjerkreim
🏗️
Extension Other

Oppføring av seks balkonger i Conradis gate 6

Prosjektet omfatter oppføring av seks nye balkonger på eksisterende bygg i Conradis gate 6. Balkongene vil være tilknyt…

πŸ“ Conradis gate 6 Oslo - Oslove
🏗️
Other Other

Rehabilitering av pipe og montering av ovn i Dalgardsvegen 224

Rehabilitering av eksisterende pipe med tilhørende bygningsmessige arbeider samt montering av ny ovn i bolig på Dalgard…

πŸ“ Dalgardsvegen 224 Folldal
🏗️
FacadeChange Other

Utskifting av vinduer mot skolegård, Lørenveien 11

Utskifting av eksisterende vinduer på fasaden mot skolegården i bygget på Lørenveien 11. Prosjektet omfatter demonterin…

πŸ“ Lørenveien 11 Oslo - Oslove
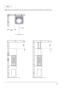
Teknisk detaljtegning som viser krav til avstand mellom brennbart materiale og en lyskilde (f.eks. lysarmatur eller taklampe). Tegningen inkluderer dimensjoner (>550, >1100, >600) og en nøkkel som identifiserer brennbart materiale.
NewConstruction Other

Montering av Nordpeis Lisboa S-18U eldstad på Ole Torjussens veg 41, Svanøybukt

Ny montering av en Nordpeis Lisboa S-18U elementpeis med en nominell effekt på 4 kW og vekt på 209 kg. Peisen har en st…

πŸ“ Ole Torjussens veg 41 Kinn
🏗️
Demolition Other

Riving av anneks og oppføring av nytt bygg i Kallandveien 4

Prosjektet omfatter riving av et eksisterende anneks på eiendommen i Kallandveien 4, etterfulgt av oppføring av et nytt…

πŸ“ Kallandveien 4 Oslo - Oslove
Situasjonskart som viser tomtens plassering i forhold til nabolag, veier og eiendelsnummer.
FacadeChange Other

Fasade- og bruksendring til gatekjøkken i Haukelivegen 935

Eksisterende bygning på Haukelivegen 935 gjennomgår fasadeendring og bruksendring fra uthus/garasje til gatekjøkken (ta…

πŸ“ Haukelivegen 935 Etne
🏗️
NewConstruction Other

Oppføring av teknisk ventilasjonsanlegg i Setesdalsvegen 3271

Ny installasjon av teknisk anlegg for ventilasjon på eiendommen i Setesdalsvegen 3271. Prosjektet omfatter oppføring av…

πŸ“ Setesdalsvegen 3271 Valle
🏗️
Rehabilitation Other

Rehabilitering av bad i Rosteds gate 12

Rehabilitering av eksisterende bad i bolig eller annen bygning på Rosteds gate 12. Prosjektet omfatter oppgradering og …

πŸ“ Rosteds gate 12 Oslo - Oslove
🏗️
FacadeChange Other

Fasadeendringer på Munkedamsveien 62

Fasadeendringer på eksisterende bygg i Munkedamsveien 62. Prosjektet innebærer endringer i byggets ytre uttrykk, som ka…

πŸ“ Munkedamsveien 62A Oslo - Oslove
3D-visualisering av en bygning som er integrert i et terreng med trær.
NewConstruction Other

Oppføring av støttemur med toalett i Gudvangen

Ny oppføring av støttemur i naturstein for etablering av et offentlig toalett i form av en prefabrikkert container som …

πŸ“ Bakkavegen 15 Aurland
🏗️
VerticalExtension Other

Påbygg på bygg i Kjelsåsveien 52

Påbygg på eksisterende bygg i Kjelsåsveien 52. Prosjektet innebærer å bygge ut eller heve deler av byggets volum for å …

πŸ“ Kjelsåsveien 52A Oslo - Oslove
Fotografi av en eksisterende bygning sett fra gaten, sannsynligvis tatt fra Google Street View.
Extension Other

Ombygging av eksisterende heis til vareheis i Nedrevegen 106

Teknisk ombygging av eksisterende kombinert person- og vareheis til en ren vareheis i bygget på Nedrevegen 106. Heissja…

πŸ“ Nedrevegen 106 Kinn
🏗️
Demolition Other

Riving og gjenoppføring av støttemur i Stølsvegen 19

Prosjektet omfatter riving av eksisterende støttemur og oppføring av en ny støttemur på samme sted i Stølsvegen 19. Den…

πŸ“ Stølsvegen 19 Oslo - Oslove
Situasjonskart for eiendommen Brofvegen 5A i Vågå kommune, som viser eiendomsgrenser, topografi og nabolag.
NewConstruction Other

Ny støttemur i plasstøpt betong på Brotvegen 5A

Ny plasstøpt betong støttemur med en lengde på 17 meter og høyde mellom 1,2 og 2 meter oppføres langs kommunal vei unde…

πŸ“ Brotvegen 5A Vågå
🏗️
Extension Other

Åpning i bærevegg i Von der Lippes gate 6

Åpning i en bærende vegg i eksisterende bygg på Von der Lippes gate 6. Prosjektet innebærer strukturelle endringer i by…

πŸ“ von der Lippes gate 4 Oslo - Oslove
Fotografi av en kai eller brygge som strekker seg ut i vannet, med en båt ved siden av. I bakgrunnen er det land og en klar himmel.
NewConstruction Other

Ny flytebrygge i betong på Tøfte 18, Herføl

Ny flytebrygge i helbetong med dimensjon 2,4 x 12 meter skal erstatte en eksisterende flytebrygge i stålramme med plast…

πŸ“ Tøfte 18 Hvaler
🏗️
NewConstruction Other

Oppføring av tiltak uten ansvarsrett i Bredes vei 2E

Oppføring av et bygg eller konstruksjon på eiendommen Bredes vei 2E uten bruk av ansvarlig foretak. Detaljer om byggets…

πŸ“ Bredes vei 2E Oslo - Oslove
🏗️
Rehabilitation Other

Rehabilitering av bad i Frysjaveien 1

Rehabilitering av eksisterende bad i bolig på Frysjaveien 1. Prosjektet omfatter oppgradering av baderomsinnredning, ut…

πŸ“ Frysjaveien 1 Oslo - Oslove
🏗️
NewConstruction Other

Oppføring av driftsanlegg for fylkesveger, Øyne Industriveg

Ny oppføring av et driftsanlegg for vedlikehold av fylkesveger på eiendommen Gnr 42, Bnr 106 i Øyne Industriveg. Anlegg…

πŸ“ Øyne industriveg 1 Valle
Fotografi av en luftesjakt med en nødbakke til venstre, sett fra et høyere nivå.
NewConstruction Other

Oppføring av luftesjakt og nødbrakke i Dypelvbukta 2, Hammerfest

Ny ventilasjonssjakt med sirkulært overbygg/diffuser på inntil 4 x 4 meter og en mobil nødbrakke på inntil 14 m² oppfør…

πŸ“ Øvergårdveien 10 Hammerfest - Hámmerfeasta
🏗️
NewConstruction Other

Etablering av frittstående klatrevegg i Østerdalsgata 7

Ny frittstående utvendig klatrevegg plassert på eiendommen i Østerdalsgata 7. Klatreveggkonstruksjonen skal monteres ut…

πŸ“ Østerdalsgata 5 Oslo - Oslove