Garasje 835 treff

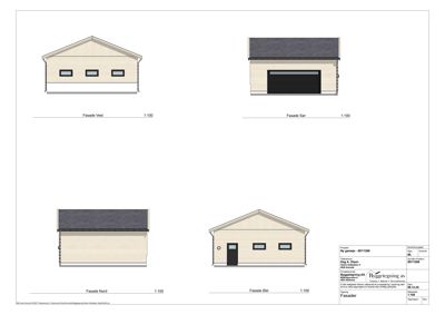
Fasadetegning som viser bygningens utseende fra fire sider (Nord, Sør, Øst, Vest) med skisse av tak, vegger og vinduer/dører.
NewConstruction Garasje

Ny frittliggende garasje med forstøtningsmur på Vestre Solbakken, Arendal

Ny frittliggende garasje på 64,8 m² BRA og 69,5 m² BYA oppføres på eiendommen Vestre Solbakken i Arendal kommune. Garas…

πŸ“ Vestre Solbakken 11 Arendal
🅿️
Extension Garasje

Oppføring av carport på eiendom Gnr 108 Bnr 116, Stjørdal

Ny frittstående carport oppføres på eiendommen Gnr 108 Bnr 116 i Stjørdal. Carporten vil fungere som overdekket parkeri…

πŸ“ Prestmovegen 44 Stjørdal
🅿️
NewConstruction Garasje

Ny garasje med loft i Grøtes Vei 20

Ny frittstående garasje med loft på eiendommen i Grøtes Vei 20. Garasjen vil fungere som oppbevarings- og parkeringspla…

πŸ“ Grøtes vei 20 Stjørdal
🅿️
Extension Garasje

Tilbygg av uthus/anneks på Skjemstadstubben 20

Tilbygg til eksisterende uthus/anneks på eiendommen Skjemstadstubben 20. Prosjektet omfatter en fysisk utvidelse av byg…

πŸ“ Skjemstadstubben 20 Inderøy
Fotografi av en ferdig bygget garasje (Palmako Roger 28.4) sett fra front.
NewConstruction Garasje

Ny frittstående garasje i Engveien 4, Harstad

Ny frittstående garasje på ca. 30 m² med total høyde på 310 cm oppføres på eiendommen Engveien 4 i Harstad. Garasjen by…

πŸ“ Engveien 4 Harstad - Hárstták
Fotografi av en rød, på stolper stående bygning ved vannet.
Extension Garasje

Ny hagestue som tilbygg til garasje i Rørvikvegen 24

Ny hagestue på 25,35 m² bygges som en forlengelse av eksisterende garasje på eiendommen i Rørvikvegen 24. Garasjen har …

πŸ“ Rørvikvegen 24 Giske
Fasadetegning som viser bygningens utseende sett fra nordøst og sørøst.
NewConstruction Garasje

Ny garasje i Prestahaugen 3, Sand

Ny frittstående garasje på 32,4 m² med flatt tak og trekledning. Garasjen har ett plan og består av ett garasjerom med …

πŸ“ Prestahaugen 3 Suldal
🅿️
NewConstruction Garasje

Ny garasje i Frolandsveien 502, Froland

Ny frittstående garasje oppføres på eiendommen i Frolandsveien 502. Garasjen vil fungere som et tilbygg for biloppbevar…

πŸ“ Frolandsveien 502 Froland
🅿️
NewConstruction Garasje

Ny garasje på næringstomt Gnr 72 Bnr 51

Ny frittstående garasje oppføres på en næringstomt registrert som Gnr 72 Bnr 51. Garasjen vil fungere som et tilbygg ti…

πŸ“ Oftevegen 29 Tokke
🅿️
Extension Garasje

Utvidelse av garasjeport i Overhallsvegen 778

Utvidelse av eksisterende garasjeport i garasje på eiendommen i Overhallsvegen 778. Prosjektet innebærer fysisk endring…

πŸ“ Østre Hunn, Overhallsvegen 740 Overhalla
Situasjonsplan som viser bygningens plassering på tomten i forhold til nabogrenser og veier.
Extension Garasje

Ny frittliggende uthus på Nestingssætra 6

Ny frittliggende uthusbygning på 15 m² (3x5 meter) med såle, oppført på eiendommen Nestingssætra 6. Bygningen har et be…

πŸ“ Nestingssætra 6 Øyer
🅿️
NewConstruction Garasje

Oppføring av hagestue på Hamregata 8, Florø

Ny hagestue på under 10 m² bygges på eksisterende terrasse på eiendommen Hamregata 8. Hagestuen vil være innelukket med…

πŸ“ Hamregata 8 Kinn
🅿️
NewConstruction Garasje

Oppføring av dobbel carport i Aspehaugveien 35

Ny dobbel carport oppføres på eiendommen i Aspehaugveien 35. Carporten vil ha plass til to biler under tak, og bygges s…

πŸ“ Aspehaugveien 31 Oslo - Oslove
En håndtegnet fasadeopprikk (fra øst) med mål på 3,2 m bredde og 10,9 m høyde, inkludert vindu og takkledning.
NewConstruction Garasje

Ny frittstående uthus med garasjeport på Støveien 1145

Ny frittstående uthus på ca. 68,5 m² grunnflate med støpt plate, oppført i tre med saltak og flatt tak. Bygget består a…

πŸ“ Støveien 1145 Øksnes
🅿️
Extension Garasje

Riving og ny veranda på Haugerudtunet 1

Ny veranda skal oppføres på eiendommen Haugerudtunet 1 etter riving av eksisterende veranda. Verandaen er tilknyttet et…

πŸ“ Haugerudtunet 1 Oslo - Oslove
🅿️
NewConstruction Garasje

Ny garasje i Sakariasveien 29

Ny frittstående garasje oppføres på eiendommen i Sakariasveien 29. Garasjen vil fungere som et tilbygg for biloppbevari…

πŸ“ Sakariasveien 29 Oslo - Oslove
Fasadetegning som viser bygningens utsyn fra fire sider (Vest, Sør, Øst, Nord) med mål 1:50.
NewConstruction Garasje

Ny frittstående garasje i Røyslidvegen 44, Volda

Ny frittstående garasje på 78,3 m² oppføres på eiendommen Røyslidvegen 44 i Volda. Garasjen bygges i én etasje med trek…

πŸ“ Røyslidvegen 44 Volda
🅿️
Extension Garasje

Oppføring av skråtak over uteplatting på Grasåslibakken 6

Nytt skråtak skal bygges over eksisterende uteplatting på eiendommen Grasåslibakken 6. Taket vil gi værbeskyttelse og f…

πŸ“ Grasåslibakken 6 Vegårshei
🅿️
Extension Garasje

Oppføring av skråtak over uteplatting i Grasåslibakken 6

Ny oppføring av et skråtak over en eksisterende uteplatting med et bebygd areal (BYA) og bruksareal (BRA) på 21 m². Tak…

πŸ“ Grasåslibakken 6 Vegårshei
🅿️
ChangeOfUse Garasje

Bruksendring av bod til soveanneks i Sørdalsveien 8

Bruksendring av eksisterende bod/uthus på 15 m² bebygd areal (13 m² BRA) til et soveanneks. Bygningen ligger på eiendom…

πŸ“ Sørdalsveien 8 Vegårshei
🅿️
ChangeOfUse Garasje

Bruksendring av uthus til soveanneks, Sørdalsveien 8

Eksisterende uthus/bod omgjøres til et soveanneks. Endringen innebærer tilpasning av det eksisterende bygget for boligf…

πŸ“ Sørdalsveien 8 Vegårshei
🅿️
Demolition Garasje

Riving og ny garasje i Manglerudveien 57

Prosjektet omfatter riving av eksisterende garasje og oppføring av en ny garasje på eiendommen i Manglerudveien 57. Den…

πŸ“ Manglerudveien 57 Oslo - Oslove
🅿️
Rehabilitation Garasje

Ombygging av garasje i Vækerøveien 176

Ombygging av eksisterende garasje i Vækerøveien 176. Prosjektet innebærer endringer i garasjens konstruksjon eller funk…

πŸ“ Vækerøveien 176A Oslo - Oslove
🅿️
NewConstruction Garasje

Ny garasje på Sinneslisundet 3, Sirdal

Ny frittstående garasje oppført på eiendommen Sinneslisundet 3 i Sirdal. Garasjen ble ferdigstilt i 2022 og omfatter pl…

πŸ“ Sinneslisundet 3 Sirdal