Garasje 835 treff

🅿️
NewConstruction Garasje

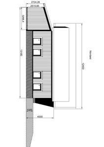
Ny badstue på Klokkarjorda, Gnr 9 Bnr 4

Ny frittstående badstue oppføres på eiendommen Klokkarjorda, Gnr 9 Bnr 4. Badstuen vil være et mindre uthus beregnet fo…

πŸ“ Klokkarjorda Måsøy
Fasadetegning (opprikk) av bygningens nordøstside med mål og vindusinnramming.
Extension Garasje

Tilbygg på eksisterende garasje i Brattli 72, Gjerstad

Tilbygg på eksisterende frittstående garasje med et samlet tilleggsareal større enn 50 m². Garasjen utvides på begge si…

πŸ“ Brattli 72 Gjerstad
Fasadetegning som viser bygningens utseende fra front og side, med angitte mål for bredde, høyde og takhelling.
NewConstruction Garasje

Ny frittstående badstue i Pinnebekklia 9

Ny frittstående badstue på 11 m² med saltak og trekledning oppføres på eiendommen Pinnebekklia 9. Badstuen har en gesim…

πŸ“ Pinnebekklia 11 Ullensaker
Fasadetegning med oppriss av bygning sett fra tre ulike vinkler (front, side og takperspektiv) med mål.
NewConstruction Garasje

Ny garasje med saltak på tomt 2/134, Lesja

Ny frittstående garasje på inntil 50 m² med saltak og gesimshøyde på 7,8 meter. Garasjen har to fasadevinduer, en dør o…

πŸ“ Hotellvegen 38 Lesja
En håndtegnet tegning som viser fasaden sett fra nord (Fasade nord) og fra vest (Fasade vest), med angitte mål for høyde, bredde og dører.
NewConstruction Garasje

Ny garasje på 65 m² i Myrveien 9, Lebesby

Ny frittliggende garasje på 65 m² BYA (62 m² BRA) oppføres på eiendommen Myrveien 9 i Lebesby. Garasjen har saltak og e…

πŸ“ Myrveien 9 Lebesby
🅿️
Extension Garasje

Riving og nybygg av anneks og tilbygg til uthus, Sjøveien 472

Prosjektet omfatter riving av eksisterende anneks og oppføring av nytt anneks samt et tilbygg til eksisterende uthus på…

πŸ“ Sjøveien 472 Salangen
🅿️
NewConstruction Garasje

Ny frittstående badstu på Teigen 8

Ny frittstående badstu skal oppføres i hagen på eiendommen Teigen 8. Badstuen vil være et mindre uthusbygg, plassert i …

πŸ“ Teigen 8 Bjerkreim
Fasadetegning (opprikk) av bygning sett fra siden, med en detaljert takkonstruksjon og en trapp på venstre side.
Demolition Garasje

Riving og ny garasje på Gnr 10 Bnr 57, Lesja

Prosjektet omfatter riving av to eksisterende garasjer på eiendommen Gnr 10 Bnr 57 i Lesja, og oppføring av en ny fritt…

πŸ“ Rundhaugvegen 23 Lesja
🅿️
NewConstruction Garasje

Ny garasje på Mauråsen 4, Vegårshei

Ny frittstående garasje oppføres på eiendommen Mauråsen 4 i Vegårshei kommune. Garasjen skal bygges på tomt Gnr 43, Bnr…

πŸ“ Øvre Mauråsen 4 Vegårshei
🅿️
NewConstruction Garasje

Ny garasje på Mauråsen 4, Vegårshei

Ny frittstående garasje med et bebygd areal på 49,8 m² og et bruksareal på 44,6 m² oppføres på eiendommen Mauråsen 4 i …

πŸ“ Øvre Mauråsen 4 Vegårshei
🅿️
ChangeOfUse Garasje

Bruksendring av bod til soverom i Oreliveien 24A

Bruksendring av et eksisterende uthusrom fra bod til soverom i Oreliveien 24A. Prosjektet innebærer tilpasning av romme…

πŸ“ Oreliveien 24A Oslo - Oslove
Bildet viser en tegning med etasjeplan (PLAN), snitt (SNITT) og fasader (FASADER) for en garasje.
NewConstruction Garasje

Ny garasje på Strandveien 43, Storvik

Ny frittstående garasje på 65,9 m² fordelt på to rom: en garasje på 42,5 m² og et bodrom på 23,4 m². Bygget oppføres på…

πŸ“ Strandveien 43 Gildeskål
🅿️
NewConstruction Garasje

Ny carport i sak 2026/337

Ny frittstående carport oppføres som tilbygg til eksisterende bolig. Carporten vil fungere som overdekket parkeringspla…

Salangen
Kart over et område i Gildeskål kommune med tomtegrenser og et flyfoto som bakgrunn.
NewConstruction Garasje

Ny frittstående drivhus på Krokholmen 82/4

Ny frittstående drivhus på 30 m² med dimensjoner 10 x 3 meter og mønehøyde på ca. 2,3 meter. Drivhuset bygges som en le…

πŸ“ Krokholmen 11 Gildeskål
🅿️
NewConstruction Garasje

Ny utebod på Nyveien 12, Fiskum

Ny frittstående utebod på 27,5 m² med bebygd areal på 30 m² oppført på eiendommen Nyveien 12 i Fiskum. Bygget er plasse…

πŸ“ Nyveien 12 Øvre Eiker
Håndskrevet etasjeplan (plantegning) som viser romfordeling (stue, kjøkken, bad, gang) og mål for en bolig.
ChangeOfUse Garasje

Bruksendring og utvidelse av uthus på Rosendalsvegen 10, Rosendal

Prosjektet omfatter bruksendring og utvidelse av et eksisterende uthus på eiendommen Rosendalsvegen 10, Gnr 173 Bnr 4 i…

πŸ“ Kyrkjebygdvegen 149 Kvinnherad
🅿️
Extension Garasje

Oppføring av carport som tilbygg i Lønnbergvegen 13

Ny carport som tilbygg til eksisterende bolig i Lønnbergvegen 13. Carporten skal fungere som overdekket parkeringsplass…

πŸ“ Lønnbergvegen 13 Vestre Toten
Bildet viser fire 3D-perspektiver (fra vest, nord, sør og øst) av en planlagt bygning i sitt omgivelser.
NewConstruction Garasje

Nybygg eldhus med fasadeendring og takoverbygg i Sandane 13, Jelsa

Nybygg eldhus på ca. 67 m² BYA i 1 1/2 etasje med saltak tekket med enkeltkrumme røde teglpanner. Bygget har en mønehøy…

πŸ“ Sandane 11 Suldal
Etasjeplan eller situasjonsplan som viser en bygning med rommerket 'Garasje' og 'Terrasse'.
Extension Garasje

Tilbygg med terrasse og garasje på Onarheimsvegen 165

Ny utvidelse av eksisterende terrasse og garasje på eiendommen Onarheimsvegen 165. Tilbygget omfatter en terrasse og en…

πŸ“ Onarheimsvegen 165 Kvinnherad
Snittegning som viser tverrsnittet av en bygning eller struktur med angitte mål og dimensjoner.
NewConstruction Garasje

Ny frittstående garasje på Kvannkjosen 35, Lødingen

Ny frittstående garasje på 60 m² med mål 6x10 meter og høyde 3,55 meter skal oppføres på eiendommen Kvannkjosen 35 i Lø…

πŸ“ Kvannkjosen 35 Lødingen
En illustrasjon som viser et tverrsnitt av en bygning for å demonstrere byggeforskrifter, som avstander til naboeiendom, takhøyde og fundament.
Extension Garasje

Ny utebod og gjerder i Skansveien 11, Røros

Ny frittstående utebod på ca. 13,9 m² med valmtak tekket med papp, bygget i tre med stående høvlet vekselpanel eller gl…

πŸ“ Skansveien 11 Røros - Rosse
🅿️
Extension Garasje

Tilbygg, ny garasje og bruksendring i Rønningvegen 75

Prosjektet omfatter oppføring av et tilbygg til eksisterende bygg, etablering av en ny garasje og en bruksendring på ei…

πŸ“ Rønningvegen 75 Porsgrunn
Fotografier av en gammel stavbygning med tekstbeskrivelse av tilstanden.
Rehabilitation Garasje

Restaurering av stabbur i Dovreskogen

Restaurering av et to-etasjers tømret stabbur fra 1700-tallet, ca. 5x6 meter inkludert sval, med furu tømmer i dimensjo…

πŸ“ Skogsætervegen 709 Dovre
🅿️
Extension Garasje

Oppføring av carport i Smellhauggata 31, Vestfossen

Ny frittliggende carport under 70 m² skal oppføres på eiendommen i Smellhauggata 31, Vestfossen. Carporten er et tilbyg…

πŸ“ Smellhauggata 31C Øvre Eiker