Garasje 835 treff

Etasjeplan (1. etasje) som viser romfordeling, vegger, dører og mål for en bygning.
Extension Garasje

Ny sykkelbod som tilbygg til garasje i Prestegårdsalleen 17 D

Ny uisolert sykkelbod på 30 m² oppføres som tilbygg til en eksisterende garasje i Prestegårdsalleen 17 D. Bygget får yt…

πŸ“ Prestegårdsalleen 17A Holmestrand
🅿️
NewConstruction Garasje

Ny garasje og terrengendringer i Ekebergveien 136

Ny frittstående garasje oppføres på eiendommen i Ekebergveien 136. Prosjektet inkluderer også mindre terrengendringer r…

πŸ“ Ekebergveien 136 Oslo - Oslove
3D-visualisering av etasjeplan for hovedetasjen i en bolig på Neperudveien 4, med romoppdeling og utvendige områder.
Extension Garasje

Ny garasje og innkjøring i Neperudveien 4, Holmestrand

Ny frittstående garasje skal oppføres på eiendommen Neperudveien 4, med endret plassering lenger unna nabogrense og vei…

πŸ“ Neperudveien 4 Holmestrand
🅿️
ChangeOfUse Garasje

Bruksendring av uthus til anneks i Furuveien 16

Bruksendring av eksisterende uthus til anneks på eiendommen i Furuveien 16. Prosjektet innebærer ombygging og tilpasnin…

πŸ“ Furuveien 16 Oslo - Oslove
🅿️
Extension Garasje

Tilbygg til garasje på Gnr 45 Bnr 2

Tilbygg til eksisterende garasje på eiendommen Gnr 45 Bnr 2. Prosjektet omfatter en utvidelse av garasjens areal for øk…

πŸ“ Øyramarki 20 Lærdal
🅿️
Demolition Garasje

Riving og ny garasje i Timrehaugvegen 31

Prosjektet omfatter riving av eksisterende garasje på eiendommen i Timrehaugvegen 31, etterfulgt av oppføring av en ny …

πŸ“ Nylendvegen 1 Hol
Fasadetegning som viser front- og sideutsikt av en bygning med mål.
ChangeOfUse Garasje

Bruksendring av garasje til uthus på Gnr 70 Bnr 319

Eksisterende frittstående garasje bygges om til uthus med endret romfunksjon og fjerning av diverse tilbygg. Bygningen …

πŸ“ Krokavegen 2 Lom
🅿️
NewConstruction Garasje

Ny garasje på Øvre Lauvraksveg 8

Ny frittstående garasje oppføres på eiendommen Øvre Lauvraksveg 8. Garasjen vil fungere som biloppstillingsplass og lag…

πŸ“ Øvre Lauvraksvegen 8 Fyresdal
🅿️
Extension Garasje

Oppføring av garasje på eiendom Gnr 10 Bnr 83, Karasjok

Ny frittstående garasje skal oppføres på eiendommen Gnr 10 Bnr 83 i Karasjok kommune. Garasjen vil fungere som et tilby…

Kárá?johka - Karasjok
En håndtegnet fasadetekning som viser takvinkelen og mål på en bygning.
NewConstruction Garasje

Ny garasje over 200 m² i Finnvolldalsveien 1207

Ny frittstående garasje på 215 m² med dimensjoner 16,5 x 13 meter oppføres på eiendommen i Finnvolldalsveien 1207. Bygg…

πŸ“ Finnvolldalsveien 1207 Namsskogan
En håndtegnet fasadetegning (Nord) med mål på 4,5 m bredde og 2,25 m + 2,5 m høyde.
Extension Garasje

Ny uthus på lvarsøy, Fitjar kommune

Ny frittstående uthus på 30 m² planlagt oppført på eiendom Gnr 18, Bnr 1 på lvarsøy. Bygget skal brukes til oppbevaring…

πŸ“ 18/1 Fitjar
Fasadetegning som viser bygningens utseende fra tre sider (Nord, Sør, Øst).
Extension Garasje

Tilbygg av altan og garasje på Kleiva 83

Tilbygg på ca. 11 m² til eksisterende garasje med forlengelse av altan mot garasjen for å etablere direkte adkomst fra …

πŸ“ Kleiva 83 Kinn
🅿️
NewConstruction Garasje

Oppføring av drivhus i Sognsveien 84

Ny frittstående drivhusstruktur oppføres på eiendommen i Sognsveien 84. Drivhuset vil fungere som et uthus, sannsynligv…

πŸ“ Sognsveien 84 Oslo - Oslove
Etasjeplaner for en bygning, som viser romfordeling, arealer og veggposisjon for 1. og 2. etasje.
NewConstruction Garasje

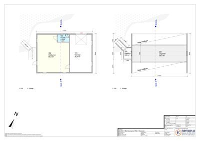
Ny garasje/driftsbygning på Markavegen 882, Porsgrunn

Ny frittstående garasje/driftsbygning på totalt 123,6 m² fordelt på to etasjer. Første etasje inneholder en garasje på …

πŸ“ Markavegen 882 Porsgrunn
Fasadetegning (opprikk) av bygning sett fra vest.
NewConstruction Garasje

Ny frittstående garasje/redskapshus i Dolvesvegen 41

Ny frittstående garasje/redskapshus på 49,9 m² BYA og 47,2 m² BRA med saltak og trekledning oppføres på landbrukseiendo…

πŸ“ Kiseldur 16 Voss
🅿️
Extension Garasje

Riving og ny garasje på Grorudveien 576

Prosjektet omfatter riving av eksisterende uthus og garasje på eiendommen Grorudveien 576, etterfulgt av oppføring av e…

πŸ“ Grorudveien 576 Siljan
🅿️
NewConstruction Garasje

Ny garasje i Opdalsveien 681

Ny frittstående garasje oppføres på eiendommen i Opdalsveien 681. Garasjen vil fungere som et tilbygg for biloppbevarin…

πŸ“ Opdalsveien 681 Siljan
🅿️
Extension Garasje

Tilbygg med garasje og stall i Opdalsveien 740

Ny tilbyggsdel til eksisterende bolig som inkluderer en garasje og en stall. Bygget vil bestå av separate funksjonelle …

πŸ“ Opdalsveien 740 Siljan
🅿️
Extension Garasje

Tilbygg og garasje på Rustadveien 324

Prosjektet omfatter oppføring av et tilbygg til eksisterende bolig samt en frittstående garasje på eiendommen i Rustadv…

πŸ“ Rustadveien 324 Siljan
3D-visualisering av en bolig med garasje og tilhørende hage og kjørevei.
NewConstruction Garasje

Ny garasje med takterrasse på Sørfjordveien 15, Terråk

Ny garasje på 49,5 m² bygges sammen med eksisterende bolig på Sørfjordveien 15 i Terråk. Garasjen får flatt tak som ska…

Bindal
3D-visualisering av en bolig med garasje og tilhørende hage og kjørevei.
NewConstruction Garasje

Ny sammenbygd garasje med terrasse på Sørfjordveien 15, Terråk

Ny sammenbygd garasje med eksisterende bolig på Sørfjordveien 15 i Terråk, med en grunnflate på 49,5 m² og en høyde på …

Bindal
🅿️
NewConstruction Garasje

Ny frittliggende garasje på Trøavegen 51, Valldal

Ny frittliggende garasje med et bruksareal på 40,7 m² og bebygd areal på 48,7 m² oppføres på eiendommen Trøavegen 51 i …

πŸ“ Trøavegen 51 Fjord
🅿️
Demolition Garasje

Riving av bod og plantekasser på takterrasse, Christian Krohgs gate 39 F

Riving av en bod og flere plantekasser plassert på takterrassen til bygningen i Christian Krohgs gate 39 F. Tiltaket om…

πŸ“ Christian Krohgs gate 37 Oslo - Oslove
Fotografi av en byggeplass med utgravet grunn, en maskin og et bygg i bakgrunnen.
Extension Garasje

Ny garasje på fradelt tomt i Klubbuktveien 179, Hammerfest

Ny frittstående garasje på 52 m² oppføres på en fradelt tomt på 1322 m² i Klubbuktveien 179, Hammerfest. Garasjen plass…

πŸ“ Erdal, Klubbuktveien 179 Hammerfest - Hámmerfeasta