Garasje 831 treff

🅿️
NewConstruction Garasje

Oppføring av garasje

Søknad om ferdigattest for oppført garasje på Vognvegen 134.

πŸ“ Vognvegen 134 Hamar
🅿️
NewConstruction Garasje

Oppføring av garasje med dispensasjon fra byggegrense

Saken gjelder søknad om tillatelse til oppføring av garasje på Bjønnegrinda 9, inkludert dispensasjon fra byggegrense o…

πŸ“ Bjønnegrinda 9 Nome
3D-visualisering av en bygning i konstruksjon med synlig takrammeverk og vegger.
NewConstruction Garasje

Ny frittstående utebod på Gnr 11 Bnr 393, Sørvågen

Ny frittstående utebod på ca. 12 m² plassert på eiendom Gnr 11 Bnr 393 i Sørvågen. Bygget er en enkel konstruksjon uten…

πŸ“ 11/393 Moskenes
3-D visualisering (rendering) av en bygning sett fra to ulike retninger (mot vest og mot nord) i et landskap.
Extension Garasje

Heving av natursteinsmur og utviding av tun, Leitesdalen 44

Ny natursteinsmur oppføres på eksisterende mur langs kommunal veg for å heve muren til kote 101,5 og utvide tunet på ei…

πŸ“ Leitesdalen 44 Kvam
Situasjonskart som viser eiendomsgranser, naboeiendommer og bygningsplassering for Selsbanes gate 55A i Narvik.
Extension Garasje

Utvidelse av veranda i Selsbanes gate 55a, Narvik

Utvidelse av eksisterende veranda på eiendommen i Selsbanes gate 55a, Narvik. Prosjektet innebærer en fysisk forstørrel…

πŸ“ Selsbanes gate 55A Narvik
🅿️
NewConstruction Garasje

Ny garasje på Steinberget 16, Trondheim

Ny frittstående garasje oppføres på eiendommen Steinberget 16 i Trondheim. Garasjen vil fungere som et tilbygg for bilo…

πŸ“ Steinberget 16 Trondheim - Tråante
Fasadetegning som viser bygningens utseende fra øst og sør, med mål og høyder.
ChangeOfUse Garasje

Bruksendring av garasje til bolig i Skottnesveien 215

Bruksendring av en eksisterende garasje på 28,5 m² til boligformål i Skottnesveien 215. Garasjen ombygges til del av en…

πŸ“ Skottnesveien 215 Vestvågøy
Bildet viser en dokumentasjonsside med en situasjonskart øverst og to foton under som viser terrengforhold (fjell) rundt et tiltak. Det er også tekstbeskrivelser og underskrifter.
NewConstruction Garasje

Ny garasje for veterankjøretøy på Hovdveien 54, Bøstad

Ny frittstående garasje plassert 1 meter fra nabogrense på eiendommen Hovdveien 54 i Bøstad. Garasjen er tilpasset for …

πŸ“ Hovdveien 54 Vestvågøy
🅿️
NewConstruction Garasje

Oppføring av garasje for løypeprepareringsmaskin

Søknad om dispensasjon og løyve til oppføring av garasje for løypeprepareringsmaskin på gnr 109 bnr 2 og 50 i Haukås hy…

πŸ“ Haukås hyttefelt, Stranebarm Kvam
Fotografi av en liten, gammel trehytte eller uthus plassert i en naturskjønn omgivelse med fjell og vann i bakgrunnen.
NewConstruction Garasje

Gjenreising av naust på Årstein, Gnr 37 Bnr 5

Ny gjenreist naust på ca. 50 m² på samme plass og grunnmur som det opprinnelige, med samme utforming, volum og material…

πŸ“ Årsteinveien 486 Vågan
🅿️
NewConstruction Garasje

Ny garasje med bod under i Bergliveien 52, Asker

Ny frittstående garasje på cirka 36 m² med en tilhørende bod under, tilpasset skrånende terreng slik at boden ikke krev…

πŸ“ Bergliveien 52 Asker
To fotografier av en skadet trebygning med midlertidig sikring.
Demolition Garasje

Riving av uthus i Verkensveien 14, Asker

Riving av et eksisterende uthus på eiendommen Verkensveien 14 i Asker. Uthuset er i svært dårlig forfatning med råtnede…

πŸ“ Verkensveien 13 Asker
3D-perspektivtegning (rendering) av en planlagt garasje med fire dører og etasjering, vist i forhold til grunnen.
NewConstruction Garasje

Ny garasje med riving på Illgosvegen 29, Sagstua

Ny frittstående garasje på 148,5 m² med tradisjonelt bindingsverk og stående trekledning oppføres på Illgosvegen 29. Ga…

πŸ“ Illgosvegen 29 Nord-Odal
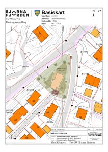
Basiskart (situasjonsplan) som viser eiendomsinndeling, bygninger, veier og topografi for adressen Storestraumen 52.
NewConstruction Garasje

Ny garasje på Storestraumen 52, Søfteland

Ny frittstående garasje på ca. 21,3 m² bebygd areal (BRA 19,4 m²) med lav gesimshøyde på 2,88 meter og total høyde 3,08…

πŸ“ Storestraumen 52 Bjørnafjorden
Tegning som viser fasader (SØR-ØST, NORD-ØST, SØR-VEST, NO RD-VEST), et snitt og en plan for en garasje.
NewConstruction Garasje

Ny garasje med riving av uthus på Furubergløkka 12

Ny frittstående garasje på ca. 41 m² med saltak og trekledning oppføres på Furubergløkka 12. Garasjen erstatter et eksi…

πŸ“ Furubergløkka 12 Asker
Fasadetegning som viser front- og sideopprikk av en bygning.
Extension Garasje

Frittstående anneks ved fritidsbolig på Skarberget E6

Ny frittstående anneks på ca. 30 m² med trevegger og kombinasjon av flatt tak og pulttak. Bygget inneholder en stue på …

πŸ“ Skarberget E6 74 Narvik
Et luftfoto (satellittbilde) av et boligområde med adressen Skanseveien 7, Drammen.
NewConstruction Garasje

Ny frittstående garasje i Skanseveien 7, Drammen

Ny frittstående garasje på 121 m² med valmtak og saltakskonstruksjon, plassert på nordvestsiden av eiendommen i Skansev…

πŸ“ Skanseveien 7 Drammen
Et illustrativt tegnet oppriss (fakade) av en bygning som viser avstander til nabogrense, takhøyde og fundament.
NewConstruction Garasje

Ny garasje med verksted og hobbyrom i Reineveien 181, Ballstad

Ny frittstående garasje på totalt 69,5 m² med saltak og takvinkel på 33°. Bygget inneholder en garasje på 26 m², et ver…

πŸ“ Reineveien 181 Vestvågøy
En 3D-visualisering (rendering) av en moderne villa sett fra foran ved kveldstid. Bildet viser fasaden, garasjen, opplysningene og omgivelsene.
Extension Garasje

Utvidelse av garasje med terrenginngrep på Elleveien 47B

Prosjektet omfatter en åpen forlengelse av eksisterende garasje i form av en carport, samt etablering av en natursteins…

πŸ“ Elleveien 47B Frogn
3D-visualisering av en åpen garasje eller carport med angitte mål (7,5 m x 5 m) og høyder (2,2 m og 3,1 m).
Extension Garasje

Ny frittliggende garasje med carport i Skulevegen 21, Ålvik

Ny frittliggende garasje på ca. 45 m² med pulttak og tre som fasademateriale, plassert på et tilleggsareal til eiendomm…

πŸ“ Skulevegen 21 Kvam
Fasadetegning av en garasje med mål og detaljer
NewConstruction Garasje

Gjenoppbygging av garasje på Rønningen 4, Svelvik

Ny frittstående garasje på 50 m² BYA (46,1 m² BRA) med saltak og tegl takmateriale, bygget i tre. Garasjen er modell Hu…

πŸ“ Rønningen 4 Drammen
Håndtegnet etasjeplan (topplan) av en bygning, sannsynligvis en enebolig, tegnet på et gitterark. Planen viser romfordeling, vinduer, en garasje og en dimensjon (7,5 m).
Extension Garasje

Ny dobbeltgarasje sammenbygd med bolig på Strandkanten 11

Ny dobbeltgarasje på 45 m² bygges sammen med eksisterende bolig på Strandkanten 11. Garasjen får en bredde på 6,0 meter…

πŸ“ Strandkanten 11 Ørland
🅿️
Extension Garasje

Ny garasje som tilbygg til bolig på Lisabekken 8

Ny garasje bygges som tilbygg til eksisterende bolig på Lisabekken 8. Garasjen planlegges med to etasjer, hvorav andre …

πŸ“ Lisabekken 8 Drammen
Bildet viser fire 3D-visualiseringer av et hus i ulike vinkler, inkludert en situasjonsvisning.
Extension Garasje

Riving av garasje og tilbygg med carport i Store Landfall Øvre 67

Prosjektet omfatter riving av en eksisterende garasje i dårlig teknisk stand og oppføring av en ny carport for to biler…

πŸ“ Store Landfall Øvre 67 Drammen