Garasje 833 treff

🅿️
NewConstruction Garasje

Ny garasje på Hagabakka 5

Ny frittstående garasje oppføres på eiendommen Hagabakka 5. Garasjen vil fungere som et tilbygg for biloppbevaring og t…

πŸ“ Hagabakka 5 Sandnes
🅿️
Extension Garasje

Oppføring av nytt naust og erstatningsbrygge i Likaiveien 109

Ny naustbygging med tilhørende erstatningsbrygge på eiendommen i Likaiveien 109. Prosjektet inkluderer også riving av e…

πŸ“ Likaiveien 109 Sandnes
🅿️
NewConstruction Garasje

Ny hagestue i Bronsekarveien 2

Ny frittstående hagestue oppføres på eiendommen i Bronsekarveien 2. Bygget kategoriseres som et uthus og vil fungere so…

πŸ“ Bronsekarveien 2 Sandnes
Satellittbilde eller flyfoto av et industriområde med en bygning markert med en rød sirkel.
ChangeOfUse Garasje

Bruksendring av garasjebygning til avfallsbruk i Lerpeveien 155

Eksisterende garasjebygning i Lerpeveien 155, Drammen, med to etasjer og saltak/flatt tak, skal endres til å inkludere …

πŸ“ Lerpeveien 155 Drammen
🅿️
NewConstruction Garasje

Gjenoppføring av dobbel garasje i Hugins gate 10

Ny dobbel garasje oppføres på eiendommen i Hugins gate 10. Garasjen vil være frittstående og dimensjonert for to biler.…

πŸ“ Hugins gate 10 Sandnes
🅿️
Extension Garasje

Oppføring av hobbyverksted

Søknad om tillatelse til å oppføre et nytt hobbyverksted på en nabotomt eid av søkeren ved Briskebyvegen 10.

πŸ“ Briskebyvegen 10 Gran
🅿️
NewConstruction Garasje

Ny garasje i Gitleveien 2

Ny frittstående garasje oppføres på eiendommen i Gitleveien 2. Garasjen vil fungere som et enkelt bygg for oppbevaring …

πŸ“ Gitleveien 2 Sandnes
Håndtegnet fasadeopprikk (fra siden) av en bygning med angitte mål og adresse.
NewConstruction Garasje

Ny hagestue og carport i Kaasbøls vei 7, Kristiansund

Ny hagestue på ca. 11 m² med liggende kledning beiset i brun farge, med en mønehøyde på 2,8 meter og takvinkel tilpasse…

πŸ“ Kaasbøls vei 7 Kristiansund
Fotografier av en grå hytte med stor terrasse og trapp, sett fra ulike vinkler.
Demolition Garasje

Riving og ny veranda i Vågatjønnvegen 17

Eksisterende veranda på eiendommen Vågatjønnvegen 17 rives på grunn av dårlig tilstand og konstruksjonsfeil som vanskel…

πŸ“ Vågatjønnvegen 17 Kristiansund
Fotografi av en garasje med overlagte målinger og tegninger som viser høyde og bredde for både en gammel og en ny garasje.
Extension Garasje

Ny garasje og rehabilitering av støttemur på Bekkemoen 1

Ny frittstående garasje på 40,6 m² med pulttak og trepanelkledning oppføres på samme plassering som eksisterende garasj…

πŸ“ Bekkemoen 1 Drammen
🅿️
NewConstruction Garasje

Ny garasje på landbrukseiendom Gnr 12 Bnr 5, Vestby

Ny frittstående garasje skal oppføres på landbrukseiendommen Gnr 12 Bnr 5 i Vestby kommune. Garasjen vil fungere som et…

Ås
🅿️
Demolition Garasje

Riving av carport og ny garasje i Opalveien 4

Eksisterende carport rives for å gi plass til en ny frittliggende garasje på eiendommen i Opalveien 4. Garasjen vil fun…

πŸ“ Opalveien 4 Sandnes
Perspektivtegning (rendering) som viser en 3D-visualisering av et nytt garasjebygg. Bildet inneholder tre ulike vinkler (perspektiver) av bygningen.
Extension Garasje

Tilbygg til garasje i Steinløysvegen 69, Molde

Ny tilbygg på eksisterende garasje på Steinløysvegen 69 i Molde kommune med et samlet areal på 84 m². Tilbygget inklude…

πŸ“ Steinløysvegen 69 Molde
Fasadetegning (oppriss) av en ny garasje sett fra sør, med angitte høyder og nivåer.
NewConstruction Garasje

Ny frittstående garasje på Skogsnaret 1, Fosser

Ny frittstående garasje på 47 m² med saltak og trekledning oppføres på eiendommen Skogsnaret 1 i Fosser. Garasjen har e…

πŸ“ Skogsnaret 1 Aurskog-Høland
🅿️
Extension Garasje

Ny frittliggende garasje i Roald Amundsens gate 100

Ny frittliggende garasje skal oppføres på eiendommen i Roald Amundsens gate 100 etter at den eksisterende garasjen rive…

πŸ“ Roald Amundsens gate 100 Sandnes
Fasadetegning av en garasje med oppriss og detaljeringslinjer.
NewConstruction Garasje

Ny garasje med saltak på Villavegen 9

Ny frittstående garasje på 45,6 m² BRA med saltak og pulttak, oppført i tre med en gesimshøyde på 2,2 meter og mønehøyd…

πŸ“ Villavegen 9 Heim
🅿️
VerticalExtension Garasje

Påbygg av garasje

Saken gjelder en forhåndskonferanse for et påbygg av garasje på eiendommen Svingen 22. Det er innhentet tegninger og gr…

πŸ“ Svingen 22 Nittedal
Håndtegnet fasadetegning som viser bygningens utsyn mot øst og nord, samt en situasjonsplan med angitte portplasseringer.
NewConstruction Garasje

Oppføring av redskapshus på Heimigarden 10

Ny frittliggende redskapshus på eiendommen Heimigarden 10. Bygget er et mindre uthus med et samlet bruksareal under 70 …

πŸ“ 314/6-2 Heim
Bildet viser fasadetegninger av en garasje, inkludert et oppriss (sideutsikt) og et snitt (tverrsnitt) av taket.
NewConstruction Garasje

Ny frittstående garasje med bod i Tore Lillebostads veg 19

Ny frittstående garasje på 92,5 m² BRA og 67 m² BYA med saltak og trepanel som fasademateriale. Garasjen har en mønehøy…

πŸ“ Tore Lillebostads veg 19 Molde
Penseltegning av en bygning sett fra utsiden, som viser fasade og takform.
Extension Garasje

Tilbygg med do og gangveg på uthus, Vinjefjordsveien 182

Ny tilbygg på ca. 2 m² med do og gangveg til eksisterende uthus (anneks) ved Vinjefjordsveien 182. Tilbygget er tilpass…

πŸ“ Vinjefjordsveien 138 Heim
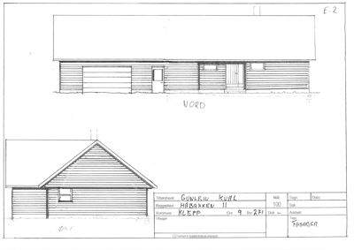
Fasadetegning som viser front- og sideutsikt av en bygning.
Extension Garasje

Tilbygg og riving av garasje på Håbakken 11

Ny garasje med tilbygg på eiendommen Håbakken 11, bestående av riving av eksisterende garasje og oppføring av nytt bygg…

πŸ“ Håbakken 11 Klepp
Situasjonsplan som viser bygningens plassering på tomt med målinger og orientering.
NewConstruction Garasje

Ny garasje på 44,1 m² i Gamlevegen 24C, Kleppe

Ny frittstående garasje med et bebygd areal på 44,1 m² oppføres på eiendommen Gamlevegen 24C i Kleppe. Garasjen inklude…

πŸ“ Gamlevegen 24C Klepp
Bildet viser en kombinasjon av tegninger og visualiseringer (rendering) av et planlagt prosjekt (ridehall). Det inkluderer utsnitt fra situasjonsplan, en 3D-illustrasjon av fasaden, og to snittegninger (Snitt A og Snitt B).
NewConstruction Garasje

Ny garasje i Tangarvegen 4, Klepp Stasjon og tilbygg på Gamleveien 11, Nittedal

Prosjektet omfatter to separate byggeprosjekter. Først en ny frittstående garasje på 50 m² med plassering nær nabogrens…

πŸ“ Tangarvegen 4 Klepp
Kartutsnitt fra en mobilapp (sannsynligvis Google Maps eller lignende) som viser topografi, veg, eiendomsgrenser og koordinater for et sted ved navn 'Krågenes'.
Extension Garasje

Tilbygg av uthus og levegg på Krågenes 4

Tilbygg til eksisterende uthus på eiendommen Krågenes 4, samt oppføring av en levegg på 5 meter lengde og 1,8 meter høy…

πŸ“ Krågenes 4 Farsund