Other 1742 treff

Situasjonsplan som viser tomtens beliggenhet, naboeiendommer, veier og planlagte bygninger.
NewConstruction Other

Nytt underjordisk avfallsanlegg på Naustberget 1, Bodø

Nytt underjordisk avfallsanlegg med fire betongkummer og innercontainere for kildesortert husholdningsavfall etableres …

πŸ“ Naustberget 1 Bodø
🏗️
NewConstruction Other

Oppføring av basestasjon i Slemdalsvingen

Ny basestasjon oppføres i området Slemdalsvingen. Basestasjonen vil bestå av tekniske installasjoner for telekommunikas…

πŸ“ Slemdalsvingen 1 Oslo - Oslove
Fotografi av en eksisterende tomt med en rød bygning, en hvit hekk og en asfaltert vei. Bildet er inkludert i et følgebrev for en byggesøknad.
Extension Other

Endring av uteareal og tilkomst på Stubbens vei 3, Tvedestrand

Endring av uteareal ved Stubbens vei 3 omfatter fjerning av del av eksisterende gjerde og omlegging av plenareal til be…

πŸ“ Stubbens vei 3 Tvedestrand
Fotografier av en rød bygning før og etter en endring eller renovering.
FacadeChange Other

Oppgradering av uteservering i Sliperiveien 17, Gjeving

Ny uteservering etableres ved å rive eksisterende markiser, levegger og platting som var i dårlig forfatning. Den nye u…

πŸ“ Sliperiveien 17 Tvedestrand
🏗️
NewConstruction Other

Anlegg av brygge ved Blesvikveien 43, Risør

Ny brygge skal anlegges ved eiendommen Blesvikveien 43 i Risør kommune. Bryggen vil være en konstruksjon i vannkanten, …

πŸ“ Blesvikveien 43 Risør
Et svart-hvitt fotografi av en bygning kalt 'Hønsi Vestre', inkludert en mindre detaljfoto av en veranda eller inngang.
Rehabilitation Other

Istandsetting av verneverdig våningshus i Hønsigutua 7

Istandsetting av et verneverdig våningshus fra 1875 i Hønsigutua 7, Gjerdrum, med fokus på bytte av utvendig kledning f…

πŸ“ Hønsigutua 5 Gjerdrum
Situasjonsplan som viser bygningenes plassering i forhold til kystlinjen, topografi og naboeiendommer.
Rehabilitation Other

Rehabilitering av brygge i Havenveien 49, Vestre Sandøya

Rehabilitering av en steinbrygge fra tidlig 1800-tall på eiendommen Havenveien 49, Vestre Sandøya. Prosjektet omfatter …

πŸ“ Havenveien 49 Tvedestrand
Fasadetegning som viser front- og sideutsikt på en liten bygning med mål og høydeangivelser.
NewConstruction Other

Oppføring av pumpestasjon og pumpeledning i Vestre Jakobselv

Ny pumpestasjon (PS2) med overbygg på ca. 7,2 m² og pumpeledning for spillvann etableres i Vestre Jakobselv. Pumpestasj…

πŸ“ 2/1 Vadsø
Dette bildet viser en fasadetekning (Fasade Nord) med tilhørende situasjonsplan og snittegninger for en støy-skjerm.
NewConstruction Other

Oppføring av støyskjerm ved Kubberødalleen 1A, Moss

Ny støyskjerm oppføres på eiendommen Kubberødalleen 1A i Moss, plassert 1 meter fra nabogrense. Støyskjermen er et anle…

πŸ“ Kubberødalleen 1A Moss
🏗️
NewConstruction Other

Etablering av nedgravd avfallsanlegg på Skøyen terrasse 30

Nytt nedgravd avfallsanlegg skal etableres på eiendommen Skøyen terrasse 30. Anlegget innebærer installasjon av underjo…

πŸ“ Skøyen terrasse 30 Oslo - Oslove
Situasjonsplan som viser tomtens beliggenhet, eksisterende og planlagt bebyggelse, samt feltinndeling (Felt A1, A2, A3, B, C, D).
NewConstruction Other

Permanent fundamenter for teltcamp på Bodø flystasjon

Prosjektet omfatter etablering av permanente fundamenter for forankring av midlertidige teltcamper på Bodø flystasjon. …

Bodø
Kartutsnitt over eiendommen Godeyvegen 483 i Giske med adresseinfo og eiendomskart.
Rehabilitation Other

Rehabilitering av skorstein i Godøyvegen 483

Rehabilitering av eksisterende skorstein med installasjon av nytt røykkanalrør i syrefast stål med diameter 150 mm. Sko…

πŸ“ Godøyvegen 483 Giske
Situasjonsplan (sitteplan) som viser tomtens plassering i forhold til nabolaget, veier (Nordstrandvegen), og eksisterende bygninger. Planen inneholder også mål på tomtegrenser og en markering for en planlagt toalettbygning.
NewConstruction Other

Ny toalettbygning med utsalgsplass på Hauge Ytre

Ny frittstående toalettbygning med integrert utsalgsplass oppføres på eiendommen Hauge Ytre, gnr. 67 bnr. 2. Bygget pla…

πŸ“ Nordstrandsvegen 264 Gloppen
🏗️
NewConstruction Other

Oppføring av basestasjon for telekommunikasjon på Venås

Ny basestasjon for telekommunikasjon oppføres på eiendommen i Venås, Gnr 5037, Bnr 296. Basestasjonen vil bestå av tekn…

πŸ“ Venås Levanger - Levangke
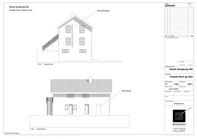
Fasadetegning som viser bygningens utseende fra nord og vest, inkludert vinduer, dører, tak og trapp.
ChangeOfUse Other

Bruksendring og fasadeendring av uthus i Gamle Songevei 352

Eksisterende uthus i Gamle Songevei 352 endres til en selvstendig boenhet med varig opphold i 1. etasje, inkludert rom …

πŸ“ Gamle Songevei 352 Tvedestrand
🏗️
NewConstruction Other

Oppføring av ny nettstasjon i Trondsens kleiv, Arendal

Ny frittstående nettstasjon oppføres på eiendommen i Trondsens kleiv, Arendal. Nettstasjonen vil være et teknisk bygg f…

πŸ“ Trondsens kleiv 1 Arendal
Håndtegnet fasadeoppvisning (elevation) av en bygning, vist fra to vinkler (Nord og Sør).
NewConstruction Other

Ny driftsbygning for landbruk på Stea 1, Arendal

Ny driftsbygning på 209 m² BRA fordelt på tre nivåer for grønnsaksproduksjon, matforedling og gårdsvirksomhet. Bygget h…

πŸ“ Stea 1 Arendal
Kartutsnitt som viser eiendomsplassering (nr. 299) i forhold til Skilsøveien og nabolag.
Rehabilitation Other

Rehabilitering av pipe med stålforing i Skilsøveien 288

Rehabilitering av eksisterende leca pipe ved montering av ny syrefast stålforing med diameter 150 mm i pipeløpet. Arbei…

πŸ“ Skilsøveien 288 Arendal
🏗️
Other Other

Ettergodkjenning av flytebrygge, fastkai og uthus på Hoddøya 44

Prosjektet omfatter eksisterende flytebrygge, fastkai og to uthus på eiendommen Hoddøya 44. Flytebryggen er en flytende…

πŸ“ Hoddøya 44 Namsos - Nåavmesjenjaelmie
Fasadetegning som viser eksisterende og planlagt fasade (vest og øst) samt et svalgangsplan.
Extension Other

Tilbygg av letak/svalgang på speiderhytte i Alveveien 277

Ny tilbygg av letak/svalgang på sydsiden av en eksisterende speiderhytte i Alveveien 277. Tilbygget består av et takkle…

πŸ“ Alveveien 277 Arendal
🏗️
Rehabilitation Other

Rehabilitering av pipe på Vestrevegen 16

Rehabilitering av eksisterende pipe på eiendommen i Vestrevegen 16. Arbeidet omfatter oppgradering og utbedring av pipe…

πŸ“ Vestrevegen 16 Evje og Hornnes
Fotografi av to tegninger som viser bygningens plassering på tomt før og etter brann i 2021.
Extension Other

Ettergodkjenning av pergola/utestue i Solheimveien 4

Ny pergola med tilhørende utestue på 18,2 m² er oppført på eiendommen Solheimveien 4. Pergolaen har et flatt, gjennomsi…

πŸ“ Solheimveien 4 Lillesand
🏗️
NewConstruction Other

Oppføring av gassfyllestasjon på Gnr 167 Bnr 402

Ny gassfyllestasjon skal oppføres på eiendommen Gnr 167 Bnr 402. Prosjektet omfatter bygging av et anlegg for fylling a…

Lyngdal
🏗️
NewConstruction Other

Oppføring av 3 båthus/naust på Gnr 10 Bnr 13

Tre nye båthus/naust skal oppføres på eiendommen Gnr 10 Bnr 13, i tillegg til tilhørende tiltak i sjø. Prosjektet omfat…

Lyngdal