Enebolig 2122 treff

3D-visualisering av en planlagt bolig med fasade, hekk og omgivelser.
NewConstruction Enebolig

Ny enebolig med garasje og støttemur på Skaftåsen 33, Birkeland

Ny enebolig på tre plan inkludert kjeller med integrert garasje oppføres på tomt på Skaftåsen 33 i Birkeland. Boligen h…

πŸ“ Skaftåsen 33 Birkenes
Fotografier av en kystlinje med hus og vegetasjon sett fra vannet.
Extension Enebolig

Tilbygg og carport på enebolig i Lervikveien 99, Fredrikstad

Prosjektet omfatter oppføring av et tilbygg til eksisterende enebolig i Lervikveien 99, Fredrikstad, med et samlet bruk…

πŸ“ Lervikveien 99 Fredrikstad
🏠
Extension Enebolig

Takoverbygd terrasse til enebolig på Øvre Smebyveg 11

Takoverbygd terrasse som tilbygg til enebolig på Øvre Smebyveg 11 med et bebygd areal (BYA) på 46 m² og et bruksareal (…

πŸ“ Øvre Smebyveg 11 Nordre Land
🏠
Extension Enebolig

Påbygg, tilbygg og fasadeendring på enebolig i Brottveitsvegen 201

Prosjektet omfatter oppføring av påbygg og tilbygg samt fasadeendring på en eksisterende enebolig. Bygget vil få utvide…

πŸ“ Brottveitsvegen 201 Valle
🏠
FacadeChange Enebolig

Fasadeendring med foldedør på enebolig i Håtongvegen 22

Fasadeendring på enebolig i Håtongvegen 22 med innsetting av foldedør i fasaden mot øst. Endringen påvirker ikke bebygd…

πŸ“ Håtongvegen 22 Karmøy
Situasjonsplan som viser eiendomsgrunnlinjer (Gnr/Bnr 11/2) og en detaljert bygningssituasjon med punktdata (KOF fil innhold).
NewConstruction Enebolig

Ny enebolig etter riving på Åsvegen 521, Nannestad

Ny enebolig oppført på eiendommen Åsvegen 521 i Nannestad etter riving av eksisterende bolig. Prosjektet omfatter full …

πŸ“ Åsvegen 521 Nannestad
Snittegning som viser terrengprofilen (høydekurver) for området nordvest og nordøst for bygningen.
NewConstruction Enebolig

Ny enebolig med leilighet og garasje på Gamle Syrevegen 59A

Ny enebolig med tilhørende leilighet og frittstående garasje planlegges oppført på eiendommen Gamle Syrevegen 59A. Pros…

πŸ“ Gamle Syrevegen 59A Karmøy
🏠
Extension Enebolig

Tilbygg med vinterhage på Fjellsvegen 20 A, Jørpeland

Ny tilbygg med vinterhage på 10 m² BRA til en eksisterende enebolig på Fjellsvegen 20 A i Jørpeland. Tilbygget er planl…

πŸ“ Fjellsvegen 20A Strand
🏠
NewConstruction Enebolig

Ferdigattest for enebolig på Herheimsmoen 46

Ny enebolig oppført på eiendommen Herheimsmoen 46. Boligen er et frittstående boligbygg med standard tekniske installas…

πŸ“ Herheimsmoen 46 Sauda
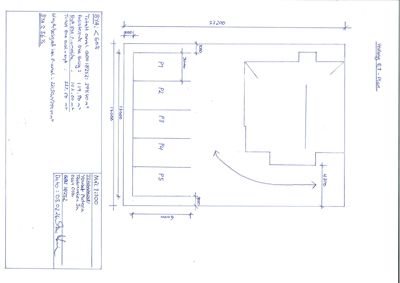
Etasjeplan (1. etasje) med romnummerering (P1-P5), dimensjoner og en skisse over en mulig flytting av inngang.
Extension Enebolig

Etablering av kjellerleilighet og parkeringsplasser i Storgata 74, Svolvær

Etablering av en kjellerleilighet i underetasjen av en eksisterende enebolig på eiendommen Storgata 74, Svolvær. I till…

πŸ“ Storgata 74 Vågan