Enebolig 2123 treff

Fasadetegning (Sør-Øst) med oppriss, høydemålinger og detaljer for tak, vinduer og trapp.
VerticalExtension Enebolig

Nytt påbygg 2. etasje på enebolig, Laubakken 6, Jessheim

Nytt påbygg i 2. etasje på eksisterende enebolig på Laubakken 6, Jessheim, med et bruksareal på 105,63 m². Påbygget inn…

πŸ“ Laubakken 6A Ullensaker
3D-visualisering (perspektivtegning) av en planlagt bolig med fasade, tak og uteplass.
NewConstruction Enebolig

Ny enebolig i Husvikveien 21, Seter

Ny enebolig i to etasjer med totalt bruksareal på 120,4 m² og bebygd areal på 77,4 m² oppføres i Husvikveien 21, Seter.…

πŸ“ Husvikveien 21 Osen
Perspektivtegning (rendering) av en bolig med to fasader, tegnet i arkitektkontor.
Extension Enebolig

Tilbygg og terrasse med rekkverk på Søndre Rekvin 1, Fredrikstad

Ny terrasse (veranda) i 2. etasje mot vest med tilhørende skyvedør og mindre fasadeendringer på eksisterende enebolig i…

πŸ“ Søndre Rekvin 1 Fredrikstad
Fotografi av en underjordisk eller halvunderjordisk gang i en bygning under ombygging eller vedlikehold. Bildet viser råbetongvegger, gulv med grus, rør og byggemateriale.
Extension Enebolig

Tilbygg og ombygging av enebolig i Engelsvikenveien 108

Prosjektet omfatter tilbygg og ombygging av en eksisterende enebolig på Engelsvikenveien 108 i Fredrikstad kommune. Til…

πŸ“ Engelsvikenveien 108 Fredrikstad
🏠
Extension Enebolig

Tilbygg og fasadeendring på enebolig, Østre Skibvika 16

Ny tilbygg og fasadeendring på en eksisterende enebolig i Østre Skibvika 16, Gjeving. Tiltaket inkluderer endring av by…

πŸ“ Østre Skibvika 16 Tvedestrand
Tre fotografier som viser skader på en bygning, inkludert riss i veggene og fundamentet, med tilhørende beskrivende tekst.
Rehabilitation Enebolig

Opprustning og tilbygg på enebolig i Revesandveien 322, Arendal

Prosjektet omfatter omfattende rehabilitering og tilbygg på en eldre enebolig fra 1920-tallet i Revesandveien 322, Aren…

πŸ“ Revesandveien 322 Arendal
3D-visualisering av to husalternativer med hvitmalt fasade og mørke tak, plassert i et landskap med steinmur og skog.
NewConstruction Enebolig

Ny enebolig med anneks på Røde grinda 20, Hvaler

Ny enebolig på ca. 139 m² BRA med tilhørende anneks/uthus/verksted på ca. 41 m² oppføres på eiendommen Røde grinda 20 i…

πŸ“ Røde grinda 20 Hvaler
Bildet viser to 3D-visualiseringer (renderinger) av en planlagt veranda på en rød villa. Det er også inkludert et tegningshode med prosjektinformasjon.
Extension Enebolig

Riving og oppføring av verandaer i Nesalleen 25, Tønsberg

Prosjektet omfatter riving av to eksisterende verandaer på til sammen ca. 33 m² og oppføring av nye verandaer på til sa…

πŸ“ Nesalleen 11 Tønsberg
Fasadetegning (opprikk) som viser bygningens høydeprofil over terrenget (HOH) med angitte nivåer og terrengkurve.
NewConstruction Enebolig

Nyoppføring av 3 eneboliger i kjede på Grønvika 15, Ålesund

Prosjektet omfatter oppføring av tre moderne eneboliger i kjede på Grønvika 15 i Ålesund, hver med et bruksareal på 129…

πŸ“ Grønvika 15 Ålesund
3D-visualisering (rendering) av et systemhus med skyggeanalyse for å vise sol- og skyggeforhold.
NewConstruction Enebolig

Oppføring av minihus og sportsbod i Smørvika 25, Østre Toten

Prosjektet omfatter oppføring av fire frittliggende små eneboliger (minihus) med tilhørende sportsboder på eiendommen S…

πŸ“ Smørvika 21 Østre Toten
Bildet viser to 3D-perspektivtegninger (renderinger) av et byggeprosjekt. Øverste bilde viser en oversikt over området, mens nederste bilde viser en nærmere vinkel på bygningene.
VerticalExtension Enebolig

Påbygg og tilbygg på enebolig i Storgata 2, Hammerfest

Prosjektet omfatter påbygg av en ekstra etasje på eksisterende enebolig med endring av takform fra valmtak til flatt ta…

πŸ“ Storgata 2 Hammerfest - Hámmerfeasta
Fotografier av vegetasjon i området rundt bygningen (skog og skogkant).
ChangeOfUse Enebolig

Bruksendring og oppdeling til to boenheter i Moveien 24, Harstad

Eksisterende enebolig fra 1953 med tradisjonell trekonstruksjon og betonggrunnmur gjennomgår bruksendring og oppdeling …

πŸ“ Moveien 24 Harstad - Hárstták
Bildet viser fasadetegninger for en bygning, spesifikt 'Fasade Vest' og 'Fasade Nord', med skala 1:100.
NewConstruction Enebolig

Ny eneboligrekke med infrastruktur i Johannsmarka, Valderøya

Prosjektet består av oppføring av fem eneboliger i rekke på Johannsmarka, Valderøya, med tilhørende infrastruktur som g…

πŸ“ Johansmarka 13 Giske
Satellittbilde (Google Maps) av eiendom med to bygninger og en rød markør.
Extension Enebolig

Tilbygg inntil 50 m² på enebolig i Borgeveien 37A, Fredrikstad

Ny tilbygg på ca. 28-40 m² i én etasje med ringmurfundament, plassert ved gavlvegg mot sør på en eksisterende to-etasje…

πŸ“ Borgeveien 37A Fredrikstad
3D-visualisering (perspektiv) av en planlagt bolig med tre ulike vinkler.
NewConstruction Enebolig

Ny enebolig med garasje på Veldevegen 7, Avaldsnes

Ny enebolig på 165,2 m² BRA med tilhørende garasje på 18 m² oppføres på Veldevegen 7. Boligen har ett plan med rom som …

πŸ“ Veldevegen 7 Karmøy
Bildet viser fasadetegninger (opprikk) av en bygning sett fra øst og vest, inkludert mål på høyder og bredder.
Extension Enebolig

Tilbygg til enebolig med takterrasse i Storgata 55, Andenes

Ny tilbygg på 35,75 m² til eksisterende enebolig i Storgata 55, Andenes, med en etasje og takterrasse over. Tilbygget u…

πŸ“ Storgata 55 Andøy
Fotografi av en toetasjes bolig under bygging, med stålscaffolding rundt huset og en grå container i forgrunnen.
Extension Enebolig

Bygging av balkong og ombygging av vindfang i Idrettsveien 16

Ny balkong i 2. etasje bygges på en eksisterende enebolig i Idrettsveien 16, med tilhørende ombygging av inngangspartie…

πŸ“ Idrettsveien 16 Andøy
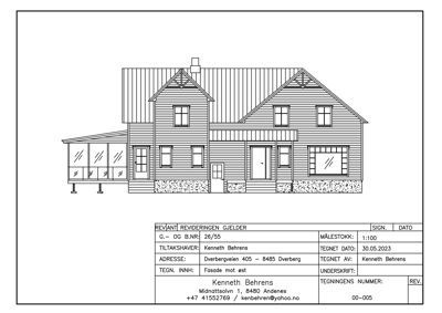
Fasadetegning (opprikk) av en bygning sett fra øst, med tegningsinformasjon i bunnen.
Extension Enebolig

Tilbygg med veranda og vinterhage på Dverbergveien 405

Ny tilbygg på totalt 64 m² inkludert overbygg ved inngangsparti på 14 m², vinterhage på 15 m² og veranda på 28 m² på en…

πŸ“ Dverbergveien 405 Andøy
🏠
Extension Enebolig

Tilbygg med rom for varig opphold og carport i Nilsheimveien 11

To tilbygg oppføres på eneboligen i Nilsheimveien 11. Det ene tilbygget inneholder et rom for varig opphold på sørsiden…

πŸ“ Nilsheimveien 11 Harstad - Hárstták
Fasadetegning (opprikk) av en bygning sett fra vest, med omgivende terrenglinjer.
VerticalExtension Enebolig

Påbygg med våtrom og fasadeendring på Nord i Enga 9

På Nord i Enga 9 utføres et påbygg på en eksisterende enebolig med totalt 105 m² grunnflate. Prosjektet inkluderer økni…

πŸ“ Nord i enga 9 Hvaler
Fasadetegning som viser bygningens utseende fra fire ulike vinkler (Sør-Vest, Nord-Vest, Nord-Øst og Sør-Øst).
Extension Enebolig

To tilbygg med platting og balkong på Medbyveien 71

To tilbygg bygges til en eksisterende enebolig på Medbyveien 71. Det ene tilbygget på 12,2 m² inneholder bod/tørk og ut…

πŸ“ Medbyveien 71 Andøy
Håndtegnet fasade (opprikk) av en bygning sett fra vest.
Extension Enebolig

Tilbygg, bruksendring og fasadeendring på Enebolig, Jordbruksveien 22

Prosjektet omfatter enebolig med tilbygg og bruksendring av kjeller til sokkelleilighet på Jordbruksveien 22, Sandhornø…

πŸ“ Jordbruksveien 22 Gildeskål
3D-visualisering av en moderne, svart og grå villa sett fra siden, plassert på en grønn bakke.
NewConstruction Enebolig

Ny enebolig med garasje, terrasse og mur i Torvastadvegen 592, Osnes

Ny enebolig på totalt 188,9 m² BRA fordelt på to etasjer med saltak og flatt tak, oppført i tre. Bygget inkluderer en g…

πŸ“ Torvastadvegen 592 Karmøy
Luftfoto av en tomt med eksisterende bygninger, markert med røde peker som viser søknadsområder.
Demolition Enebolig

Riving og ny bolig med to leiligheter i Samuel Nikolai Hansensgate 10A, Lillesa…

Eksisterende bolig i Samuel Nikolai Hansensgate 10A, Lillesand, oppført i 1837, skal rives. Boligen har gjennomgått tre…

πŸ“ Samuel Nikolai Hansensgate 10A Lillesand