Fritidsbolig 739 treff

Tegning som viser fasadeopprikk for bygningen sett fra tre sider (Vest, Sør, Øst) med mål og en 3D-visualisering.
Extension Fritidsbolig

Tilbygg til fritidsbolig i Kråkenesvegen 67, Raudeberg

Ny tilbygg på ca. 38,5 m² til eksisterende fritidsbolig på 34,8 m², totalt 73,3 m². Tilbygget utvider stuearealet mot v…

πŸ“ Kråkenesvegen 67 Kinn
En samling av fire 3D-visualiseringer (renderinger) som viser en hytte fra ulike vinkler. Bildet er en arkitekttegning som visualiserer fasade og utseende.
NewConstruction Fritidsbolig

Ny fritidsbolig og garasje på Suleskard Fjellgård, Tomt 20

Ny fritidsbolig i to etasjer med samlet BRA på 155 m² og BYA på 144,5 m² oppføres med saltak og sedumtak. Hytten har mø…

πŸ“ Suleskard Fjellgård, Tomt 20 Sirdal
Fotografi av fasaden på en bygning med brun panelvegg, hvite vinduer og lysarmaturer.
Rehabilitation Fritidsbolig

Rehabilitering av fritidsbolig med fasade- og takvinduendring på Bukkeliodden 1…

Rehabilitering av eksisterende fritidsbolig på 117,6 m² med oppgradering av fasade og takvinduer. Bygget får ny stående…

πŸ“ Bukkeliodden 108 Færder
🏡
Extension Fritidsbolig

Tilbygg med bad og bod på Nørdalen 648 C, Stordal

Ny tilbygg på eksisterende fritidsbolig med samlet areal på ca. 13,5 m², inkludert bad, teknisk rom/bod og utvendig bod…

πŸ“ Nørdalen 648C Fjord
🏡
NewConstruction Fritidsbolig

Ny dagsturhytte, ukjent adresse

Ny frittstående dagsturhytte planlegges oppført. Hytten vil være et mindre bygg beregnet for fritidsbruk, med enkel sta…

Skjervøy
🏡
Extension Fritidsbolig

Ny anneks/hytte på eiendom Gnr 63 Bnr 2

Ny frittstående anneks eller hytte skal oppføres på eiendommen Gnr 63 Bnr 2. Prosjektet omfatter et mindre fritidsbygg …

πŸ“ Jonsebakken 62 Hol
🏡
Demolition Fritidsbolig

Riving av campinghytter og tilbygg i Hydrovegen 32, Årdalstangen

Riving av totalt 8 campinghytter med tilbygg på en tidligere campingplass i Hydrovegen 32, Årdalstangen. Hyttene har en…

πŸ“ Hydrovegen 32 Årdal
🏡
Extension Fritidsbolig

Tilbygg, riving og fasadeendring på hytte i Bakkebu

Prosjektet omfatter riving av deler av eksisterende hytte, endring av fasaden samt oppføring av et tilbygg. Tiltaket vi…

πŸ“ Bakkebu, 22/29 Valle
🏡
NewConstruction Fritidsbolig

Ny fritidsbolig med minirenseanlegg i Grorudveien 772

Ny fritidsbolig skal oppføres på eiendommen i Grorudveien 772. Prosjektet inkluderer også etablering av et minirenseanl…

πŸ“ Grorudveien 772 Siljan
🏡
NewConstruction Fritidsbolig

Oppføring av midlertidig gjeterhytte på Fagerbakkan

Ny midlertidig gjeterhytte skal oppføres på eiendommen ved Fagerbakkan. Hytten er et mindre bygg innen fritidsboligkate…

πŸ“ Fagerbakkan 1 Sørfold - Fuolldá
3D-visualisering (rendering) av etasjeplanen for en hytte, vist på en situasjonsplan.
Extension Fritidsbolig

Tilbygg til hytte i Repparfjorddalen 16

Ny tilbygg på mindre enn 50 m² til eksisterende hytte i Repparfjorddalen 16. Tilbygget bygges i tre med saltak, og vil …

πŸ“ Trekanten 11 Hammerfest - Hámmerfeasta
🏡
Extension Fritidsbolig

Tilbygg på hytte i Holmvassdalsvegen 217

Ny tilbygg på eksisterende hytte i Holmvassdalsvegen 217. Tilbygget utvider hyttens areal og tilpasses eksisterende byg…

πŸ“ Holmvassdalsvegen 217 Grane
Fasadetegning som viser oppriss av bygningens front med mål og materialvalg.
Extension Fritidsbolig

Tilbygg og fasadeendring på hytte i Ausevikvegen 955

Ny tilbygg på eksisterende hytte i Ausevikvegen 955 med samlet areal på 178,5 m². Bygget er en enetasjes fritidsbolig i…

πŸ“ Ausevikvegen 955 Kinn
🏡
Extension Fritidsbolig

Tilbygg til fritidsbolig på Rotvollivegen 79

Ny utvendig tilbygg til eksisterende fritidsbolig på Rotvollivegen 79, med et areal som overstiger 50 m². Tilbygget vil…

πŸ“ Storflovegen 69 Tydal
Fotografi av en bygning sett fra luften (dronebilde) med omgivende terreng og snø.
Extension Fritidsbolig

Tilbygg og påbygg til fritidsbolig i Maursetlia 18

Ny tilbygg og påbygg til eksisterende fritidsbolig på Maursetlia 18, Eidfjord. Tilbygget øker bygningsarealet med ca. 3…

πŸ“ Austre Maursetlia 18 Eidfjord
🏡
NewConstruction Fritidsbolig

Oppføring av fritidsbolig og anneks på gnr 29 bnr 70

Ny fritidsbolig med tilhørende anneks oppføres på eiendommen gnr 29 bnr 70. Prosjektet omfatter to separate bygg, hvor …

Rollag
🏡
NewConstruction Fritidsbolig

Ny hytte på Vorterøyveien 1

Ny frittstående hytte oppført på eiendommen i Vorterøyveien 1. Hytten er ferdigstilt og har mottatt ferdigattest, noe s…

πŸ“ Vorterøyveien 1 Skjervøy
🏡
Extension Fritidsbolig

Riving og ny fritidsbolig på Haugastølvegen 307

Prosjektet omfatter riving av eksisterende bygg og oppføring av ny fritidsbolig på eiendommen Haugastølvegen 307. Den n…

πŸ“ Ørteren 2 Hol
3D-visualisering (perspektiv) av en planlagt bygning med tak, fasade og vinduer.
Extension Fritidsbolig

Ny anneks til fritidsbolig på Østre Gråhaugen 88

Ny frittstående anneks på 18,75 m² med saltak tekket med tegl, oppført i trekonstruksjon med plasstøpte betongfundament…

πŸ“ Østre Gråhaugen 88 Sel
🏡
Extension Fritidsbolig

Tilbygg og oppgradering av fritidsbolig, Sandnesveien 104

Prosjektet omfatter en utvidelse og oppgradering av en eksisterende fritidsbolig på Sandnesveien 104. Det planlegges et…

πŸ“ Sandnesveien 104 Larvik
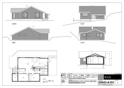
Fasadetegning som viser bygningens utseende fra fire sider (Nord, Vest, Sør, Aust) samt en detaljert frontfasettegning.
Extension Fritidsbolig

Tilbygg og riving av fritidsbolig på Kråkenesvegen 72

Ny ombygging og tilbygg av eksisterende fritidsbolig på Kråkenesvegen 72 med et samlet bruksareal på 113 m² etter utvid…

πŸ“ Kråkenesvegen 72 Kinn
Fotografi av en fritidsbolig sett fra siden, med en terrasse og omgivelser.
NewConstruction Fritidsbolig

Ny fritidsbolig med VA-tilknytning på Røde grinda 24

Ny fritidsbolig på 89,6 m² BRA oppføres på samme sted som eksisterende fritidsbolig på Røde grinda 24, Søndre Sandøy, H…

πŸ“ Røde grinda 24 Hvaler
🏡
NewConstruction Fritidsbolig

Oppføring av fritidsbolig og uthus i Hauglandsmyrveien 20

Ny fritidsbolig med tilhørende uthus oppføres på eiendommen i Hauglandsmyrveien 20. Prosjektet omfatter bolig- og uthus…

πŸ“ Hauglandsmyrveien 20 Vegårshei
Flyfoto av et område i Hyllestad kommune som viser plassering av eiendommen gbnr. 29/45 og naboeiendommer.
NewConstruction Fritidsbolig

Ny fritidsbolig med hems i Salbu Grend, Sørbøvåg

Ny fritidsbolig på 105,2 m² BRA med en hems på ca. 22,7 m² (ikke måleverdig areal) oppføres på en tomt i Salbu Grend, S…

πŸ“ Salbu Grend, 6958 Sørbøvåg Hyllestad