Fritidsbolig 737 treff

🏡
Other Fritidsbolig

Oppføring av byggtekniske installasjoner i fritidsbolig, Damveien 18

Oppføring av byggtekniske installasjoner i en fritidsbolig på Damveien 18. Prosjektet omfatter tekniske anlegg som kan …

πŸ“ Damveien 18 Modum
3D-visualiseringer (renderinger) av hovedhytta og anneks sett fra ulike vinkler.
Extension Fritidsbolig

Tilbygg og fasadeendring på hytte i Slåttvika 2, Tvedestrand

Prosjektet omfatter en utvidelse av eksisterende fritidsbolig med et tilbygg på 17,5 m² BYA, samt fasadeendringer som i…

πŸ“ Slåttvika 2 Tvedestrand
En tegning som viser fasaden (framsiden) på en enebolig, med håndskrevne notater om avstander og høyder.
Extension Fritidsbolig

Utvendig tilbygg på fritidsbolig i Svartvatnet

Ny utvendig tilbygg på 7 m² til en fritidsbolig (hytte) ved Svartvatnet. Tilbygget er en forlengelse på 1 meter av vest…

πŸ“ Svartvatnet Bodø
Et dokument med overskrift 'Overvannshåndtering' som inneholder tekst og to innleverte bilder: et flyfoto (Figur 1) av eiendommen og en 3D-rendering (Figur 2) av eiendommens topografi.
Extension Fritidsbolig

Tilbygg og ombygging av fritidsbolig på Sørhuglo 292

Tiltaket omfatter to tilbygg til en eksisterende fritidsbolig på Sørhuglo 292, med et samlet bruksareal på 110 m² inklu…

πŸ“ Sørhuglo 292 Stord
🏡
NewConstruction Fritidsbolig

Ny hytte på Panoramaveien 53, Kragerø

Ny fritidsbolig (hytte) med et bruksareal på 130,5 m² oppført på eiendommen Panoramaveien 53 i Kragerø. Hytten er bygge…

πŸ“ Panoramaveien 53 Kragerø
🏡
NewConstruction Fritidsbolig

Ny hytte på Panoramaveien 43, Kragerø

Ny fritidsbolig (hytte) med et bruksareal på 130,5 m² oppført på eiendommen Panoramaveien 43 i Kragerø. Hytten er bygge…

πŸ“ Panoramaveien 43 Kragerø
🏡
NewConstruction Fritidsbolig

Ny fritidsbolig på Bommyrveien 42, Risør

Ny fritidsbolig skal oppføres på en ubebygget tomt i Bommyrveien 42 i Risør kommune. Prosjektet omfatter bygging av en …

πŸ“ Bommyrveien 42 Risør
🏡
NewConstruction Fritidsbolig

Ny fritidsbolig i Bommyrveien 14, Risør

Ny fritidsbolig skal oppføres på eiendommen i Bommyrveien 14, Risør kommune. Prosjektet omfatter et frittstående bygg b…

πŸ“ Bommyrveien 14 Risør
🏡
NewConstruction Fritidsbolig

Ny fritidsbolig i Bommyrveien 26, Risør

Ny fritidsbolig skal oppføres på eiendommen i Bommyrveien 26, Risør kommune. Prosjektet omfatter et frittstående bygg b…

πŸ“ Bommyrveien 26 Risør
🏡
Extension Fritidsbolig

Tilbygg og bod til fritidsbolig i Evardalen, Valle

Ny utvidelse av eksisterende fritidsbolig i Evardalen med et tilbygg på 14,3 m² BRA og 16,7 m² BYA som erstatter en ter…

πŸ“ Evardalen Suldal
🏡
NewConstruction Fritidsbolig

Ny fritidsbolig på Lagveien 320, Risør

Ny fritidsbolig skal oppføres på eiendommen Lagveien 320 i Risør kommune. Prosjektet omfatter oppføring av et frittligg…

πŸ“ Lagveien 320 Risør
Fotografi av en bygning med omgivende terreng, illustrert i et dokument.
Extension Fritidsbolig

Tilbygg til fritidsbolig i Sjursvikveien 121

Ny to-etasjes tilbygg på ca. 60 m² BRA til eksisterende fritidsbolig i Sjursvikveien 121. Tilbygget inkluderer en under…

πŸ“ Sjursvikveien 11 Indre Fosen
Fasadetegning som viser bygningens utsyn fra alle fire sider (Nord, Sør, Øst, Vest) med mål og detaljer.
NewConstruction Fritidsbolig

Ny hytte og sauna i Vestre Jakobselv 2/112, Vadsø

Ny frittstående hytte og separat sauna oppføres på eiendommen i Vestre Jakobselv 2/112. Hytten og saunaen er fritidsbyg…

πŸ“ 2/112 Vadsø
Fasadetegning som viser bygningens utseende fra fire ulike vinkler (front, side, bak og en vinkel), inkludert detaljer som tak, vinduer, dører og veranda.
NewConstruction Fritidsbolig

Ny fritidsbolig på Åfjordvegen, Hyllestad

Ny fritidsbolig på 46,8 m² BRA og 58 m² BYA oppføres på eiendommen Åfjordvegen, gnr. 25 bnr. 4 i Hyllestad kommune. Byg…

πŸ“ Åfjordvegen 1 Hyllestad
🏡
Extension Fritidsbolig

Tilbygg av hytte og oppføring av uthus på Dyrskardvegen 64

Ny utvidelse av eksisterende hytte med et tilbygg på under 50 m², samt oppføring av et separat uthus på eiendommen. Til…

πŸ“ Dyrskardvegen 64 Flå
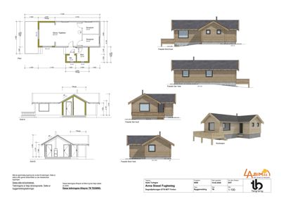
Bildet viser en samling tegninger av en bolig, inkludert etasjeplan (Plan), snittegninger (Snitt A og B), og flere fasadetegninger (Fasade Nord-Aust, -Vest, -Sør-Aust, -Sør-Vest) samt en illustrasjon. Det er også en teknisk tegning med opplysninger om byggesak.
Extension Fritidsbolig

Tilbygg og fasadeendring på hytte i Sognefjellsvegen 6776

Ny tilbygg på ca. 18,1 m² til eksisterende hytte i Sognefjellsvegen 6776, med samlet bebygd areal på 44,7 m² etter utvi…

πŸ“ Sognefjellsvegen 6776 Luster
Perspektivtegning (rendering) av en husfasade med skrått tak og vinduer.
NewConstruction Fritidsbolig

Ny fritidsbustad i Haggardshjellen 47, Valldal

Ny fritidsbustad på 109,8 m² BYA med saltak og takvinkel 27°, oppført i bindingsverk med liggjande bordkledning. Bygget…

πŸ“ Haggardshjellen 47 Fjord
🏡
Extension Fritidsbolig

Tilbygg til hytte i Tomtvassvegen 866

Ny tilbygg til eksisterende hytte i Tomtvassvegen 866. Tilbygget utvider hyttens areal og funksjonalitet, og er godkjen…

πŸ“ Tomtvassvegen 866 Levanger - Levangke
🏡
Extension Fritidsbolig

Oppføring av anneks til fritidsbolig i Langøyvegen 70

Ny frittstående anneks til eksisterende fritidsbolig på Langøyvegen 70. Bygget skal oppføres som et mindre tilbygg elle…

πŸ“ Langøyvegen 70 Levanger - Levangke
🏡
NewConstruction Fritidsbolig

Ny fritidsbolig på Persøygard 10, Tvedestrand

Ny fritidsbolig oppført på eiendommen Persøygard 10 i Tvedestrand kommune. Bygget er prosjektert og utført med fagansva…

πŸ“ Persøygard 10 Tvedestrand
🏡
ChangeOfUse Fritidsbolig

Bruksendring fra bod til anneks på Finnvikhaugen 28

Eksisterende utebod på 15,6 m² BRA og 19 m² BYA på fritidseiendom omgjøres til anneks med innredning av ett soverom. By…

πŸ“ Finnvikhaugen 28 Gildeskål
🏡
NewConstruction Fritidsbolig

Ny fritidsbolig på Øynaheiveien 1121, Froland

Ny fritidsbolig skal oppføres på eiendommen Øynaheiveien 1121 i Froland kommune. Prosjektet omfatter et frittstående by…

πŸ“ Øynaheiveien 1121 Froland
3D-visualisering av et minirenseanlegg i glassfiber (GRP) med snitt for å vise innvendig konstruksjon.
Extension Fritidsbolig

Tilbygg og avløpsrenseanlegg ved Reinsfjellveien 391, Tvedestrand

Ny tilbygg på ca. 27 m² til eksisterende fritidsbolig på 47,5 m² med tradisjonell tømmerkonstruksjon og tømmermannskled…

πŸ“ Reinsfjellveien 391 Tvedestrand
🏡
Extension Fritidsbolig

Tilbygg til fritidsbolig på Kvitåvatnlia 15

Ny tilbygg til eksisterende fritidsbolig på Kvitåvatnlia 15. Prosjektet omfatter utvidelse av boligens areal for økt br…

πŸ“ Myrestaulvegen 80 Tinn