Landbruk 64 treff

Flyfoto eller satellittbilde av et område med skog og bebyggelse, med en rød markering rundt et område.
NewConstruction Landbruk

Nytt lagerbygg for grønnsaker i Aurvegen, Ullensaker

Nytt lagerbygg for lagring av gulrot og poteter oppføres på eiendommen Gnr 198 Bnr 27 i Aurvegen, Ullensaker. Bygget få…

πŸ“ Aurvegen 1 Ullensaker
Fotografi av en bygning under oppføring eller etter skade, tatt innvendig for å dokumentere tilstanden på bjelkelag og vegger.
NewConstruction Landbruk

Ny redskapshus ved Finnsjøen, Stor-Elvdal

Ny frittliggende redskapshus på 50 m² oppført i reisverk med stående låvepanel og bølgeblikktak ved Finnsjøen i Stor-El…

Sør-Fron
🌾
Extension Landbruk

Tilbygg til eksisterende landbruksbygning i Sørnessveien 793

Tilbygg til en eksisterende landbruksbygning på eiendommen i Sørnessveien 793. Prosjektet innebærer en fysisk utvidelse…

πŸ“ Sørnessveien 793 Flatanger
🌾
NewConstruction Landbruk

Nytt kyllinghus på Gnr 16 Bnr 1, Nærbø

Nytt kyllinghus oppføres på landbrukseiendommen Gnr 16 Bnr 1 i Nærbø. Bygningen er plassert i tiltaksklasse 1 med konst…

πŸ“ Bernervegen 340
Fotografi av en byggeplass i snø med boremaskin, silo og rød bygning i bakgrunnen.
NewConstruction Landbruk

Ny driftsbygning med gjødselkjeller på Rundmoveien 322, Finnsnes

Ny driftsbygning (kufjøs) i landbruket med et samlet bruksareal på ca. 950 m² i én etasje, oppført i stål med massivtre…

πŸ“ Rundmoveien 322 Målselv
Fasadetegning som viser bygningens utseende fra øst og sør.
Extension Landbruk

Tilbygg og anneks med veiutvidelse i Egelundveien 51, Arendal

Ny oppføring av et anneks på 45 m² BYA over to etasjer med garasje i 1. etasje og lagerplass i 2. etasje, samt et tilby…

πŸ“ Egelundveien 51 Arendal
Fotografi av en gammel stue med grønt tak og trevegger, tatt for å illustrere ønske om vinduer i nordveggen.
Demolition Landbruk

Riving og gjenoppføring av seterstall på Eidesetra, Staesvollen

Ny gjenoppført seterstall på Eidesetra, Staesvollen, med utvendige mål 3,0 x 7,0 meter og maksimal mønehøyde 2,75 meter…

πŸ“ 153/4 Tynset
Fotografi av en stor, rød skurbygning med grønn takflate, plassert foran en steil fjellside. Bildet viser også en grønn hage med et lekeplass-utstyr i forgrunnen.
Rehabilitation Landbruk

Rehabilitering av sørvestvegg i fjøsbygning på Solsem gård Hamlandsø

Rehabilitering av sørvestveggen på en eldre fjøsbygning på Solsem gård, inkludert utskifting av råteskadet kledning, vi…

πŸ“ Solsemveien 160 Leka
🌾
NewConstruction Landbruk

Oppføring av kyllinghus på Versland, Gnr 76 Bnr 2

Ny oppføring av et kyllinghus på landbrukseiendommen Versland, Gnr 76 Bnr 2. Prosjektet omfatter plassering og bygging …

πŸ“ Versland 34 Bjerkreim
Fasadetegning som viser oppriss av bygningen sett fra fire sider (nord, syd, vest og øst) med mål og vindusoppsett.
VerticalExtension Landbruk

Ombygging og påbygg av driftsbygning i Aplandsveien 144

Prosjektet omfatter ombygging og påbygg av en eksisterende driftsbygning i landbruket med et tilbygg på 30 m². Bygget s…

πŸ“ Aplandsveien 144 Gjerstad
Fotografi av en utgravet grøft eller hull på et byggeplass, med en gaffeltruck i bakgrunnen og et måleinstrument (sannsynligvis for grunnvannsmåling) plassert i grøften.
ChangeOfUse Landbruk

Bruksendring til selskapslokale og riving på Letesvegen 136

Bruksendring av 2. etasje i eksisterende driftsbygning (redskapshus/låve) på ca. 300 m² til selskapslokale med kapasite…

πŸ“ Letesvegen 136 Melhus
Fotografi av et terrengområde med bekkeløp, vegetasjon og steiner, illustrert i en rapport.
Extension Landbruk

Tilbygg til driftsbygning og låve i Lundsvegen 324, Vik

Ny tilbygg på ca. 450 m² BYA til eksisterende driftsbygning for storfe med mjelkerobot, samt et mindre tilbygg på ca. 3…

πŸ“ Lundsvegen 384 Vik
Fotografi av en fjøsbygning i Askrova i Kinn kommune, tatt som del av en miljøkartleggingsrapport.
Demolition Landbruk

Riving av driftsbygning

Saken gjelder søknad om igangsettingstillatelse for riving av en eksisterende driftsbygning på eiendommen Gbnr 46/3 i A…

πŸ“ Valvikvegen 27 Kinn
🌾
Demolition Landbruk

Riving av driftsbygning på Fundingslandsvegen 857

Riving av en SEFRAK-registrert driftsbygning (løe) på eiendommen Fundingslandsvegen 857. Bygningen har lokal kulturminn…

πŸ“ Fundingsland, 37/1-5 Hjelmeland
3D-visualisering (rendering) av en planlagt bygning sett fra en vinkel som viser fasade og tak.
NewConstruction Landbruk

Ny driftsbygning (redskapshus) i Åknesveien 465

Ny driftsbygning på landbrukseiendommen Åknesveien 465 med et samlet areal på 45 m². Bygget er oppført i tre med saltak…

πŸ“ Åknesveien 465 Andøy
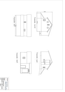
Fasadetegning som viser bygningens utsyn fra fire ulike sider (Nord, Vest, Sør og Øst).
NewConstruction Landbruk

Ny driftsbygning og gjødselkum i Øvre Valheim, Årdal

Ny driftsbygning for lausdriftsfjøs med et bebygd areal på 1288 m² og mønehøyde på 8,3 m, med saltak og flatt tak i bet…

πŸ“ Valheimsvegen 216 Hjelmeland