Other 1743 treff

3D-visualisering (perspektiv) av en planlagt utendørs basseng- og badstu-anlegg med tilhørende bygninger.
NewConstruction Other

Utendørs svømmebasseng og badstu/bod på Sauheradvegen 716

Ny utendørs svømmebasseng på ca. 31 m² med tilhørende mindre bygg for badstu og bod plassert i tilknytning til eksister…

πŸ“ Sauar Gard, Sauheradvegen 716 Midt-Telemark
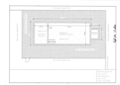
Etasjeplan (toppsikt) som viser plassering og dimensjoner av et basseng, soldekk og pumpehus, samt gjerdene rundt.
NewConstruction Other

Nedgravd betongbasseng med platting og gjerde i Oterholtvegen 100

Nytt nedgravd plassbygd betongbasseng på ca. 4,2 x 10,4 meter (42,84 m²) bygges i bakken med topp i nivå med terrenget.…

πŸ“ Oterholtvegen 100 Midt-Telemark
Et fotografi av Kvikkleireskredet i Lyngen fra 2010, tatt for å illustrere et eksempel på retrogressiv skredutvikling.
ChangeOfUse Other

Bruksendring og reparasjon i Rikets sal, Hørtevegen 22, Gvarv

Bygget består av Rikets sal, et menighetshus med totalt 232,48 m² BRA i 1. etasje og et tilhørende eneboligbygg med 62,…

πŸ“ Hørtevegen 22 Midt-Telemark
Situasjonsplan som viser ei tomt med overlappende reguleringssoner (grønt og rødt skravert) og en vei.
Extension Other

Utbedring og forsterking av bru over Mølleløpet, Oterholtvegen 148

Prosjektet omfatter utbedring og forsterking av en eksisterende bru over Mølleløpet på Kvennøya ved Oterholtvegen 148. …

πŸ“ Oterholtvegen 148 Midt-Telemark
Snittegning (Snitt A-A og Snitt B-B) som viser bassengets plassering i forhold til eksisterende og nytt terreng.
NewConstruction Other

Nedsenket svømmebasseng på Lidarende 20, Hvalstad

Nytt nedsenket svømmebasseng på ca. 3,3 x 8,1 meter plassert vest for eksisterende bolig på Lidarende 20. Bassenget er …

πŸ“ Lidarende 20 Asker
🏗️
NewConstruction Other

Oppføring av støyskjerm ved Brønnvegen 6, Furnes

Ny støyskjerm skal oppføres langs offentlig vei på eiendommen Brønnvegen 6 i Furnes. Skjermen skal plasseres i ytterkan…

πŸ“ Brønnvegen 6 Ringsaker
Snittegning (Langsnitt og Tverrsnitt) av Pumpehuset ved Ringsaker strand.
FacadeChange Other

Etablering av oppholdsområde og terrengendringer i Mjøsparken, Brumunddal

Ny opparbeidet oppholdsplass øst for pumpehuset i Mjøsparken med sandområde omkranset av tredekke og lave murer/sittebe…

πŸ“ Tårnvegen 23 Ringsaker
En brannrisktegning (endringstegning) som viser romfordeling, brannskilte, utrykningsveier og brannutstyr for 2. etasje i Sørveien 164.
Other Other

Oppføring av sprinkleranlegg og ny brannkum i låve, Semsveien 164

Prosjektet omfatter installasjon av et nytt sprinkleranlegg i en eksisterende låve på Semsveien 164, som er under ombyg…

πŸ“ Semsveien 158 Asker
3D-visualiseringer (renderinger) av fasader på en bygning sett fra ulike vinkler.
FacadeChange Other

Fasadeendring, ny garasje og naust på Sildpollneset 50

Eksisterende bolig fra 1973 gjennomgår fasadeendringer som inkluderer utskifting av kledning, vinduer, dører og taktekk…

πŸ“ Sildpollneset 50 Vågan
Fotografi som viser et eksempel på montering av betongheller og stålplater på en vei.
NewConstruction Other

Ny gjødselkum i Brumundvegen, Brumunddal

Ny gjødselkum med diameter 18,3 meter og høyde 3,85 meter oppføres på eiendommen gnr. 66, bnr. 4 i Brumundvegen, Brumun…

πŸ“ Brumundvegen 100 Ringsaker
Fotografi av en ferdig eller nesten ferdig murt steinmur foran et hus.
Other Other

Oppføring av støttemur i Nebyvegen 14, Brumunddal

Ny forstøtningsmur i kalkstein/natursteinsblokker bygges langs privat vei og svinger inn på egen gårdsplass på Nebyvege…

πŸ“ Nebyvegen 14 Ringsaker
Terrenngsnitt som viser bygningens plassering i forhold til terrenget, med høydemål og nivåer.
NewConstruction Other

Ny gjødselkum på Stensengdalen 291, Brumunddal

Ny gjødselkum med en høyde på 4 meter og en diameter på 23,5 meter, med total volumkapasitet på 1700 m³. Kummen plasser…

πŸ“ Stensengdalen 289 Ringsaker
🏗️
NewConstruction Other

Nybygg i Vøllavegen 5

Nybygg planlagt på eiendommen i Vøllavegen 5. Detaljer om byggets størrelse, funksjon og materialer er ikke tilgjengeli…

πŸ“ Vøllavegen 5 Vestre Slidre
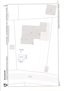
Situasjonsplan (kartutsnitt) som viser tomtens grenser, bygningers plassering og en håndskrevet markering av en 'Drivhus' med mål.
NewConstruction Other

Nyoppført drivhus på Lille Ringveg 64, Brumunddal

Nyoppført drivhus på 12 m² BRA og 13 m² BYA plassert innenfor byggegrensen på eiendommen Lille Ringveg 64 i Brumunddal.…

πŸ“ Lille Ringveg 64 Ringsaker
🏗️
FacadeChange Other

Fasadeendring på bygg i Vestsidevegen 2960

Endring av utvendig bygg på eiendommen i Vestsidevegen 2960. Prosjektet omfatter modifikasjoner av fasaden på eksistere…

πŸ“ Vestsidevegen 2960 Jevnaker
🏗️
Extension Other

Oppføring av redskapsbod med dispensasjon i Jærveien 1328

Ny oppføring av en uisolert redskapsbod på eiendommen i Jærveien 1328. Bygget er et mindre uthus som krever dispensasjo…

πŸ“ Jærveien 1328 Eigersund
Fotografi av en byggeplass med en ny murt fasade i forgrunnen og eksisterende boliger i bakgrunnen.
NewConstruction Other

Oppføring av støttemurer i Birchs vei 11, Røyse

Nye støttemurer skal erstatte eksisterende murer på eiendommen Birchs vei 11. Murene er planlagt som stabile steinmurer…

πŸ“ Birchs vei 11 Hole
Fasadetegning (opprikk) av en liten hytte eller uthus, inkludert takplan og utsnitt av fasader.
NewConstruction Other

Ny frittliggende bod/utestue i Finnskogvegen 2140, Åsnes

Ny frittliggende bod/utestue med bruksareal på ca. 14,8 m² og mønehøyde på ca. 2,84 meter oppføres på eiendommen Finnsk…

πŸ“ Finnskogvegen 2140 Åsnes
Fasadetegning som viser utsiden av en bygning fra alle fire sider (Øst, Nord, Sør, Vest).
FacadeChange Other

Fasadeendring og mindre tilbygg på Beach House, Ørsvågveien 45

Prosjektet omfatter fasadeendring og et mindre tilbygg i form av et lukket vindfang på ca. 4 m² på eksisterende bygg "B…

πŸ“ Ørsvågveien 45 Vågan
🏗️
Unknown Other

Riving og oppføring av nytt antennesystem (mast) over 5 meter

Saken gjelder søknad om dispensasjon/tillatelse i ett trinn for å rive eksisterende mast og oppføre nytt antennesystem …

πŸ“ Sydalen 1 Vågan
🏗️
NewConstruction Other

Oppføring av frittstående bygning i Vangsvegen 51

Ny frittstående bygning skal oppføres på eiendommen i Vangsvegen 51. Det foreligger ingen detaljer om bygningens større…

πŸ“ Vangsvegen 51 Hamar
🏗️
Extension Other

Tilbygg og bruksendring i Brusætervegen 86, Namnå

Bygget omfatter et tilbygg samt bruksendring av 2. etasje og fasadeendring på eiendommen Brusætervegen 86 i Namnå. Pros…

πŸ“ Brusætervegen 10 Grue
🏗️
FacadeChange Other

Terrengarbeider og fasadeendring i Mjøsparken, Brumunddal

Prosjektet omfatter etablering av et nytt oppholdsområde øst for pumpehuset i Mjøsparken med beplantning og sittebenker…

πŸ“ Tårnvegen 23 Ringsaker
🏗️
Extension Other

Oppsetting av drivhus i Norsengs gate 16

Ny oppføring av et drivhus på eiendommen i Norsengs gate 16. Prosjektet omfatter plassering og montering av et drivhus,…

πŸ“ Norsengs gate 16 Hamar