Other 1752 treff

Situasjonskart som viser eiendomsforhold, bebyggelse og topografi for et område i Heier kommune.
NewConstruction Other

Ny vannledning og VA-anlegg i Liveien 8, Hvaler

Ny kommunal vannledning med dimensjon Ø225 mm PE100 og tilhørende vannkum etableres i en ca. 107 meter lang trase fra R…

πŸ“ Liveien 8 Hvaler
Et fotografi av en satellitt- eller luftfoto som viser en jernbanestasjon (Stasjonsveien) og en grønn vei (fylkesvei). Bildet er inkludert i en brevtekst fra Bærum kommune som en del av en byggesak.
Extension Other

Forlengelse av jernbanplattform ved Stasjonsveien 10, Blommenholm

Jernbanplattformen ved Blommenholm stasjon forlenges med 11,5 meter mot øst for å håndtere lengre togsett. Plattformen …

πŸ“ Stasjonsveien 10 Bærum
Fotografier av en eksisterende, rustet ståltrapp (leider) og et forslag til ny trapp med rødt skisse på situasjonsplan.
Unknown Other

Oppføring av flytebrygge, trapp og bunnfast utrigger

Saken gjelder søknad om rammetillatelse og dispensasjon for oppføring av en flytebrygge, trapp i terreng og en smal bun…

πŸ“ Siktesøya 32 Porsgrunn
🏗️
Extension Other

Oppføring av brannførebygg i Bygdavegen 48

Ny oppføring av brannførebygg ved eksisterende bygg på Bygdavegen 48. Brannførebygget skal fungere som en fysisk barrie…

πŸ“ Bygdavegen 48 Fjord
🏗️
NewConstruction Other

Oppføring av platting i Natadalsvegen 145

Ny platting bygges på eiendommen i Natadalsvegen 145. Prosjektet omfatter oppføring av en terrasse/platting som sannsyn…

πŸ“ Natadalsvegen 143 Seljord
Fotografi av en mørk bygning med grønt tak (moss) og snø på bakken. Bildet viser også en mindre bygning i bakgrunnen og et gult og svart målestokk i forgrunnen.
Extension Other

Tilbygg hunderom på bryggerhus, Øverbygdveien 1278

Ny tilbygg på 15 m² til eksisterende bryggerhus på eiendommen Øverbygdveien 1278, bestående av et hunderom med innlagt …

πŸ“ Øverbygdveien 1278 Målselv
🏗️
Extension Other

Tilbygg på skogs- og utmarkskoie, Ytre Lauvrak 370

Tilbygg på eksisterende skogs- og utmarkskoie på eiendommen Ytre Lauvrak 370. Prosjektet innebærer en fysisk utvidelse …

πŸ“ Ytre Lauvrak 370 Froland
🏗️
Extension Other

Endring av bygg og terrengheving på Eivindvikvegen 1118

Prosjektet omfatter endring av et eksisterende bygg samt heving av terrenget på eiendommen ved Eivindvikvegen 1118. Til…

πŸ“ Eivindvikvegen 1111 Gulen
Illustrasjon av taktekning med takflis og takstein rundt en takgjennomføring
Extension Other

Erstatning av stålpipe og ildsted i Norderhaugveien 104

Ny isolert stålpipe av typen Jøtul NVI 2000+ monteres som erstatning for gammel pipe i bolig på Norderhaugveien 104. St…

πŸ“ Norderhaugveien 104 Hvaler
🏗️
NewConstruction Other

Oppføring av telekommunikasjonsmast i Leirskallen

Ny telekommunikasjonsmast skal oppføres på eiendommen i Leirskallen. Masten vil være en frittstående konstruksjon bereg…

πŸ“ Leirskallen 1 Oslo - Oslove
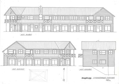
Tegning som viser fasadeoppsettet for en bygning sett fra fire ulike vinkler (mot sydøst, mot sydvest, mot nordøst og en sidefasade).
Extension Other

Oppføring av altan på Leikanger 76, Stadlandet

Ny utvendig altan på 26,9 m² som tilbygg til leilighet i 2. etasje på bygget Strandtorget, Leikanger 76. Altanen er 2,5…

πŸ“ Leikanger 76 Stad
🏗️
Extension Other

Oppføring av brannførebygg i Lunheimvegen 2

Ny oppføring av brannførebygg ved eiendommen i Lunheimvegen 2. Brannførebygget skal fungere som en fysisk barriere for …

πŸ“ Lunheimvegen 2 Fjord
🏗️
NewConstruction Other

Oppføring av flytebrygge ved Servicekaia

Ny flytebrygge plassert ved den innerste delen av Servicekaia. Flytebryggen er en konstruksjon som skal ligge på vannet…

πŸ“ Servicekaia Nordkapp
En fasadetekning som viser oppriss av en bygning sett fra siden, med farger som indikerer ulike materialer eller nivåer.
NewConstruction Other

Oppføring av støttemur i Vaskarryssveien 2, Røros

Ny støttemur skal oppføres på eiendommen i Vaskarryssveien 2, Røros. Muren er prosjektert med drenerende masse, isolasj…

πŸ“ Vaskarryssveien 2 Røros - Rosse
🏗️
NewConstruction Other

Nybygg ved Århaugtunet 34

Prosjektet omfatter oppføring av et nytt bygg på eiendommen Århaugtunet 34. Detaljer om byggets størrelse, funksjon og …

πŸ“ Århaugtunet 32 Haugesund
🏗️
Other Other

Montering av ny stålpipe i Sandumlia 4

Ny stålpipe skal monteres på eiendommen i Sandumlia 4. Prosjektet omfatter installasjon av en utvendig teknisk bygnings…

πŸ“ Sandumlia 1 Krødsherad
Situasjonsplan som viser tomtens form, omgivende terreng, veier og bygningers plassering.
Other Other

Vesentlig terrenginngrep for vedplass på Bakkavegen 120, Ålen

Prosjektet omfatter opparbeidelse av en vedplass/lagerplass på eiendommene gnr 17, bnr 1 og 25 i Holtålen kommune. Tilt…

πŸ“ Bakkavegen 120 Holtålen
Kart over et område med eiendommer, veier og gater (Overklev, Gallea).
Rehabilitation Other

Rehabilitering av skorstein på Øvre Lommavei 11, Tvedestrand

Rehabilitering av en eksisterende skorstein med diameter 150 mm i stål på eiendommen Øvre Lommavei 11. Arbeidet omfatte…

πŸ“ Øvre Lommavei 11 Tvedestrand
🏗️
NewConstruction Other

Oppføring av steinbrygge i Krags gate 48B, Risør

Ny steinbrygge skal oppføres ved eiendommen i Krags gate 48B i Risør kommune. Bryggen bygges som en fast konstruksjon a…

πŸ“ Krags gate 48B Risør
🏗️
Rehabilitation Other

Restaurering og delvis gjenoppbygging av bygninger i Frostavegen 2477

Prosjektet omfatter restaurering av eksisterende bygninger med delvis rivning og påfølgende gjenoppbygging. Arbeidet in…

πŸ“ Frostavegen 2475 Frosta
Fotografi av en kystlinje med vann, klipper, buskas og skog i bakgrunnen.
NewConstruction Other

Ny strømkabel til oppdrettsanlegg på Grytøyra 102

Ny strømkabel legges fra sjø til land på eiendommen Grytøyra 102, med tilknytning til et koblingsskap på land. Kabelen …

πŸ“ Grytøyra 102 Fjaler
🏗️
NewConstruction Other

Oppføring av drivhus på takterrasse, Vesterlivegen 39

Ny innglasset veranda/drivhus på takterrasse i eksisterende bygg. Drivhuset skal fungere som et lukket rom med glassveg…

πŸ“ Vesterlivegen 39 Inderøy
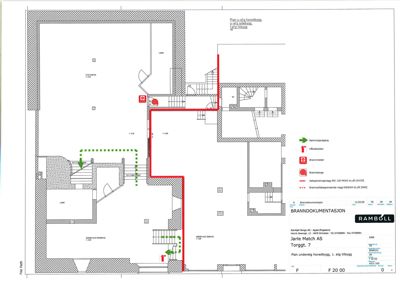
Etasjeplan (1. etg) med brannskjema og utrykningsveier
ChangeOfUse Other

Varig bruksendring til kafé/restaurant i Torvgaten 7, Arendal

Bruksendring av ca. 150 m² i 1. etasje og underetasje i en eldre bygård i Arendal sentrum fra butikk/forretningslokale …

πŸ“ Torvgaten 7 Arendal
🏗️
NewConstruction Other

Oppføring av naust i Sævnesveien 44

Ny oppføring av et naust på eiendommen i Sævnesveien 44. Naustet skal fungere som uthus med tilhørende lagrings- og båt…

πŸ“ Sævnesveien 44 Lyngen - Ivgu - Yykeä