Other 1743 treff

Situasjonsplan som viser tomtens form, reguleringsgrenser og plassering av eksisterende (grå) og planlagt (oransje) bebyggelse.
VerticalExtension Other

Oppføring av drivhus og innglasset terrasse på Avstikkeren 7A

Prosjektet omfatter oppføring av et frittstående drivhus på ca. 5 m², en platting med tak på ca. 16,8 m², samt innglass…

πŸ“ Avstikkeren 7A Indre Østfold
3D-visualisering (rendering) som viser eksisterende og opparbeidet terreng med en markert byggeflate.
Other Other

Vesentlig terrenginngrep og ny vei på Lonøyveien 86, Hvaler

Prosjektet omfatter vesentlig terrenginngrep på eiendommen Lonøyveien 86 i Hvaler kommune, inkludert opparbeidelse av n…

πŸ“ Lonøyveien 86 Hvaler
En situasjonsplan (tomtekart) som viser tomtens beliggenhet, tomtegrense og terrengprofil med skråning.
Other Other

Utvidelse av lagringsplass for stål på gnr 8 bnr 62, Råde

Utvidelse av eksisterende lagringsplass for stål på inntil 4000 m² på eiendommen gnr 8 bnr 62 i Råde kommune. Tiltaket …

Råde
3D-visualisering (rendering) av en bygning med omgivende bygningsmasse. Bildet viser fasade, volum og plassering i forhold til nabobebyggelse.
NewConstruction Other

Oppføring av sykkel- og søppelskur med parkeringsplass i Hafstadvegen 27A, Førde

Prosjektet omfatter oppføring av et enkelt, frittstående bygg i tre med flatt tak som skal fungere som overbygg for syk…

πŸ“ Hafstadvegen 27A Sunnfjord
Situasjonsplan som viser tomtens form, høydeforhold (konturlinjer), vannkant, og plassering av eksisterende og planlagte bygninger med mål.
NewConstruction Other

Ny fastkai på ca. 38 m² i Brasøyveien 67, Brasøy

Ny fastkai på ca. 38 m² skal etableres på eiendommen Brasøyveien 67, gnr. 26 bnr. 46 i Brasøy. Kaien er plassert i stra…

Herøy (Nordland)
🏗️
Extension Other

Tilbygg og mindre fasadeendring på Engholmveien 14, Risør

Ny tilbygg og mindre fasadeendring på eksisterende bygg i Engholmveien 14. Prosjektet omfatter utvidelse av bygningsvol…

πŸ“ Engholmveien 14 Risør
🏗️
FacadeChange Other

Innvendig ombygging og fasadeendringer i Sverres gate 14

Prosjektet omfatter innvendige ombygginger og endringer av fasaden på bygningen i Sverres gate 14. Tiltaket inkluderer …

πŸ“ Sverres gate 14 Oslo - Oslove
🏗️
NewConstruction Other

Oppføring av gangbru i Middelalderparken, Bispegata 16

Ny gangbru skal oppføres i Middelalderparken ved Bispegata 16. Prosjektet omfatter konstruksjon av en gangbru som skal …

πŸ“ Bispegata 16 Oslo - Oslove
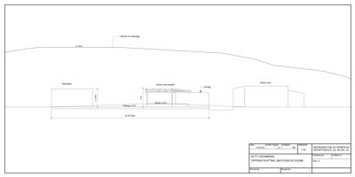
Oppriss (fasetegning) av et nytt utområde med platting, scene og elskt skur.
Extension Other

Oppføring av uteareal med scene og matvogn, Geitøyveien 6

Ny opparbeidelse av uteareal på ca. 350 m² bestående av to plattinger på ca. 230 m² og 120 m², en liten opphøyd scene m…

πŸ“ Geitøyveien 6 Frøya
🏗️
NewConstruction Other

Oppføring av minirenseanlegg på Tveitgrendvegen 229

Ny installasjon av et minirenseanlegg på eiendommen Tveitgrendvegen 229. Anlegget er et teknisk byggverk for rensing av…

πŸ“ Tveitgrendvegen 229 Nissedal
🏗️
Extension Other

Tilbygg på eiendom i Kapellveien 7

Tilbygg på eksisterende bygg i Kapellveien 7. Prosjektet omfatter en fysisk utvidelse av bygningsmassen, men detaljer o…

πŸ“ Kapellveien 7 Indre Østfold
🏗️
NewConstruction Other

Ny forlegningsbygning i Djupdalsveien 155

Ny forlegningsbygning oppføres på eiendommen i Djupdalsveien 155. Bygningen skal tjene som bolig for befal og vil være …

πŸ“ Uthaugsveien 130 Ørland
🏗️
NewConstruction Other

Oppføring av Breistøl minikraftverk i Evje og Hornnes

Breistøl minikraftverk bygges på eiendommen Gnr 18, Bnr 9 i Evje og Hornnes kommune. Prosjektet omfatter oppføring av e…

Evje og Hornnes
🏗️
NewConstruction Other

Riving og ny kai i Ørsdalen, Gnr 13 Bnr 21

Prosjektet omfatter riving av eksisterende anlegg og oppføring av en ny kai ved Ørsdalen på eiendommen Gnr 13 Bnr 21. D…

πŸ“ Ørsdalen 1400 Bjerkreim
Snittegning som viser et tverrsnitt gjennom en overbygning av grusveg, med oppgitt lagtykkelser og materialer.
Unknown Other

Etablering av adkomstvei til kommunal pumpestasjon

Saken gjelder søknad om tillatelse og dispensasjon for å etablere en adkomstvei til en kommunal pumpestasjon, inkludert…

πŸ“ Trøgstadveien 180 Indre Østfold
3D-visualisering (rendering) av en planlagt ballbinge med innhegning og kunstgress.
NewConstruction Other

Oppføring av to ballbinger ved Birkelandsvegen 2, Sauda

To nye ballbinger etableres på idrettsområdet ved Sauda stadion, Birkelandsvegen 2. Ballbingene er samlet og delt med g…

πŸ“ Haakonsgaten 20 Sauda
Fotografi av en underbygning (naust) i tre, med tekstbeskrivelse om tiltaket.
NewConstruction Other

Nyoppføring av naust på Lyklingholmane 4, 6, 8

Nyoppført naust på eksisterende steinmur med tradisjonell trekonstruksjon, tilpasset lokal byggeskikk og landskap på Ly…

πŸ“ Lyklingholmane 4 Bømlo
Bildet viser to flyfotografier (satellittbilder) av et kystområde med en bygning (gapahuk) og omgivelsene. Bildene er brukt i en rapport for å vurdere inngrep i strandsone.
NewConstruction Other

Ny gapahuk på Røsokvegen 41, Ålesund

Ny gapahuk på 10 m² skal oppføres på eiendommen Røsokvegen 41 i Ålesund kommune. Gapahuken plasseres på en liten fjellk…

πŸ“ Røsåkvikvegen 41 Ålesund
Bildet viser en situasjonsplan (Figur 1) som illustrerer eiendomsnummer, byggegrenser og formålsgrenser i forhold til sjøen.
NewConstruction Other

Nybygg av naust med brygge og VA-ledninger i Mælandsvågen, Bømlo

Nybygg av naust på ca. 34,7 m² BRA med tilhørende brygge og VA-ledninger i sjø på eiendom 112/106 i Mælandsvågen, Bømlo…

Bømlo
Situasjonskart som viser tomtens form, bygningens plassering og omgivelsene.
Extension Other

Ny sjøbod, parkeringsplass og bryggeutvidelse i Buveien

Ny sjøbod under 50 m² med tradisjonell nauststil oppføres på land med gulv ca. 1,0 moh, inkludert loft til lagerformål.…

πŸ“ Buveien 1 Sokndal
🏗️
NewConstruction Other

Oppføring av gangbru over Geiskeliåni, Bykle

Ny gangbru skal bygges over elven Geiskeliåni på eiendommen gnr 3, bnr 3 i Bykle kommune. Brua vil fungere som en gangf…

πŸ“ Berdalsheii 120 Bykle
3D-visualisering (linjetegning) av en bygning med glassvegger og takkonstruksjon, vist fra et isometrisk perspektiv.
NewConstruction Other

Oppføring av drivhus på Eikelandshaugen 2, Valen

Ny frittstående drivhusbygning på 16,5 m² plassert på eiendommen Eikelandshaugen 2 i Valen. Drivhuset er planlagt innen…

πŸ“ Eikelandshaugen 2 Kvinnherad
🏗️
Rehabilitation Other

Rehabilitering av pipe på Stondavegen 1251

Rehabilitering av eksisterende pipe ved innsetting av ny pipeforing i den gamle skorsteinen på eiendommen Stondavegen 1…

πŸ“ Strondavegen 1251 Etne
🏗️
FacadeChange Other

Fasadeendring på Amtmann Sommerfeldts gate 1, Lillehammer

Fasadeendring på eksisterende bygg i Amtmann Sommerfeldts gate 1 i Lillehammer. Prosjektet omfatter oppgradering og end…

πŸ“ Amtmann Sommerfeldts gate 1 Lillehammer