Other 1745 treff

🏗️
Rehabilitation Other

Innvendig reparasjon av brannskille i Bekkefaret 12

Innvendig reparasjon av eksisterende brannskille i bygget på Bekkefaret 12. Prosjektet omfatter tiltak for å gjenoppret…

πŸ“ Bekkefaret 12A Oslo - Oslove
🏗️
Rehabilitation Other

Rehabilitering av skorstein på Vesterøyveien 283

Rehabilitering av eksisterende skorstein i enebolig på Vesterøyveien 283 ved innsetting av stålrør med diameter 150 mm …

πŸ“ Vesterøyveien 283 Sandefjord
🏗️
Other Other

Rehabilitering av boliger på Maurstien 8

Rehabiliteringsprosjekt for eksisterende boliger på adressen Maurstien 8. Prosjektet omfatter oppgradering og forbedrin…

πŸ“ Markstien 11 Hustadvika
En håndtegnet fasadetegning (opprikk) av en hytte sett fra sørøst, med mål og tekst 'FASADE MOT AUST'.
Extension Other

Tilbygg terrasse med integrert basseng på Ås 24, Stord

Ny utvidelse av eksisterende terrasse på ca. 60 m² med høyde ca. 1,2 meter over terreng, integrert basseng på ca. 5,5 x…

πŸ“ Ås 24 Stord
🏗️
NewConstruction Other

Nybygg på eiendom Gnr 476 Bnr 97

Nybygg på eiendom Gnr 476 Bnr 97 uten nærmere spesifisert bygningskategori. Prosjektet omfatter oppføring av en ny bygn…

Haram
🏗️
NewConstruction Other

Ny bod på Akland 65, Risør kommune

Ny frittstående bod oppføres på eiendommen Akland 65 i Risør kommune. Bygget vil være et mindre uthus beregnet for lagr…

πŸ“ Akland 65 Risør
🏗️
FacadeChange Other

Endring av bygg og fasade med tekniske installasjoner i Myhrersvingen 12

Prosjektet omfatter endring av eksisterende bygg med oppgradering og modifikasjon av fasade samt oppdatering av teknisk…

πŸ“ Myhrersvingen 12 Eidsvoll
Et skråfoto fra kommunens kartbase som viser eiendom med adresse Kilen 5 på Vestre Sandøya, inkludert en hytte og en brygge.
Extension Other

Rehabilitering av brygge på Kilen 5, Vestre Sandøya

Rehabilitering av eksisterende brygge på eiendommen Kilen 5, Vestre Sandøya, med utskifting av toppdekke og deler av bæ…

πŸ“ Kilen 5 Tvedestrand
🏗️
Extension Other

Montering av solcelleanlegg på tak, Johan Scharffenbergs vei 29

Solcelleanlegg monteres på taket av eksisterende bygg i Johan Scharffenbergs vei 29. Prosjektet innebærer installasjon …

πŸ“ Johan Scharffenbergs vei 29 Oslo - Oslove
🏗️
NewConstruction Other

Oppføring av privatbygg i Svingen 32

Ny oppføring av et privat bygg på eiendommen i Svingen 32. Detaljer om byggets størrelse, materialer og funksjon er ikk…

πŸ“ Svingen 32 Oslo - Oslove
Fotografier av en ferdig eller nesten ferdig bygget hus. Bildene viser fasaden, omgivelser og terrengformingen.
NewConstruction Other

Oppføring av natursteins forstøtningsmur i Slettavegen 69

Ny forstøtningsmur i naturstein er oppført langs eiendomsgrense mot kommunal vei i Slettavegen 69. Muren har en variere…

πŸ“ Slettavegen 69H Karmøy
Satellittbilde eller flyfoto av eiendom med overlagte røde linjer som viser grenser for tiltak (57/6792, 57/679, 57/677).
NewConstruction Other

Oppføring av brygge og utfylling i sjø på Sjåholmen, Skudeneshavn

Prosjektet omfatter etablering av en ny betongkai med steinsetting på toppen og langs veggene, samt en tre-brygge med t…

Karmøy
Dokumentet inneholder tre fotografier som viser bygningens forhistorie og dagens tilstand, inkludert steinlegging, murverk og topografi.
Other Other

Oppføring av trapper, rekkverk og støttemur i friareal på Sjåholmen

Prosjektet omfatter etablering av tre steintrapper tilpasset terrenget, med tilhørende rekkverk og håndløpere for sikri…

πŸ“ Sjåholmen 1 Karmøy
3D-visualisering av en bolig med tilhørende utemiljø, svømmebasseng og garasje.
NewConstruction Other

Oppføring av basseng, lysthus og bod

Søknad om tillatelse i ett trinn for oppføring av basseng, lysthus og bod på eiendommen Kløfteneveien 4, med tilhørende…

πŸ“ Kløfteneveien 4 Råde
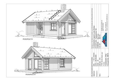
Tegning med to perspektivtegninger (3D-visualiseringer) av en planlagt hytte, vist fra front og side.
Extension Other

Oppføring av to anneks

Saken gjelder søknad om tillatelse til oppføring av to anneks ved Toppagrenda 136. Saken inneholder planfaglig vurderin…

πŸ“ Toppagrenda 136 Sør-Fron
Situasjonsplan som viser tomtens beliggenhet, topografi (konturlinjer), eksisterende og planlagt bebyggelse, samt tilknyttede veier og infrastruktur.
NewConstruction Other

Nytt minirenseanlegg på Frakkestad 4, Råde

Ny installasjon av Biovac FD 5N PEH minirenseanlegg på eiendommen Frakkestad 4, Råde kommune. Anlegget plasseres i eksi…

πŸ“ Frakkestad 2 Råde
Situasjonsplan som viser tomtens grenser, naboeiendommer (Farramsveien), og eiendomsnummer (1001/5, 1001/44, 1001/42).
Rehabilitation Other

Rehabilitering av pipeanlegg i Farmannsveien 17, Tønsberg

Rehabilitering av skorstein i boligblokk med flere boenheter i Farmannsveien 17. Tiltaket består i å trekke inn et stål…

πŸ“ Farmannsveien 17 Tønsberg
Tegning som viser oppriss (tverrsnitt) av en ny støttemur sett fra ulike vinkler (vest mot øst, sør mot nord, vest mot ny biloppstillingsplass).
NewConstruction Other

Ny og endret støttemur med biloppstillingsplass på Olsvollen 20

Prosjektet omfatter oppføring av ny støttemur og utvidelse/oppgradering av biloppstillingsplass på eiendommen Olsvollen…

πŸ“ Olsvollen 20 Ålesund
3D-visualisering av et utendørs område med en kunsttaksen, vann og vegetasjon.
NewConstruction Other

Opparbeidelse av markedsplass og torg i Melhusvegen, Melhus

Markedsplassen i Melhus sentrum er et nytt anlegg som etablerer et offentlig torg på ca. 2200 m² med fleksible funksjon…

πŸ“ Melhusvegen 161 Melhus
Situasjonsplan som viser tomtens terrengform, vannløp, og plassering av en bygning med tilhørende parkeringsplass.
Other Other

Oppføring av støttemur og utvidelse av parkeringsplass på Brendehaugen 3

Prosjektet omfatter oppføring av en ReCon støttemur langs parkeringsplassen ved Brendehaugen 3 for å sikre området mot …

πŸ“ Brendehaugen 3 Vestnes
🏗️
Other Other

Vei, parkeringsplass og VA-anlegg i hyttefelt, Fosstveitvegen 83

Prosjektet omfatter opparbeidelse av nye veier og parkeringsplasser samt nytt utvendig vann- og avløpsanlegg i hyttefel…

πŸ“ Fosstveit, 23/2-2 Sauda
Et collage av flere fotografier som viser utgravd jord og grus fra en byggeplass, sannsynligvis fra en geoteknisk rapport.
NewConstruction Other

Planering, ny avkjørsel og parkeringsplass på Solgaard Skog 3, Moss

Tiltaket omfatter planering av ca. 12 dekar uteareal, hvorav ca. 6 dekar skal graves ned og masseutskiftes, inkludert f…

πŸ“ Solgaard skog 3 Moss
🏗️
Extension Other

Utviding av kai og tilbygg til naust på Bondestokksund 7

Utviding av eksisterende kai med påler og tilbygg til et eldre sjøbod/naust på eiendommen Bondestokksund 7. Tilbygget i…

πŸ“ Bondestokksund 7 Herøy (Møre og Romsdal)
Et svart-hvitt flyfoto fra 1967 som viser et kystområde med en bygning ved vannet.
Unknown Other

Utviding av eksisterende kai på Kolsøy, Kvinnherad

Utviding av eksisterende trekai på Kolsøy i Kvinnherad kommune. Kaiens kaifront økes fra ca. 6 meter til nær 18 meter, …

πŸ“ Kolsøy Kvinnherad