Other 1745 treff

Fasadetegning som viser oppriss av en ny bod sett fra fronten, med angitte høyder (2,3 og 3,3) og bredde (7).
NewConstruction Other

Rehabilitering av brygge og ny bod på Furøya 48

Prosjektet omfatter rehabilitering og ombygging av en eldre brygge med stabilisering av steinpir og utskifting av rusts…

πŸ“ Nilen, Furøya 48 Lillesand
Tegning som viser fasade mot sør og fasade mot aust med mål og takvinkel.
NewConstruction Other

Nyoppføring av naust i Eide, Fitjar kommune

Nyoppføring av et tradisjonelt naust i tre med trekledning på eiendom 89/34 i Eide, Fitjar kommune. Naustet har et bruk…

πŸ“ Eide 100 Fitjar
🏗️
Extension Other

Utskiftning og flytting av pipe på eiendom Gnr 42 Bnr 928

Prosjektet omfatter utskiftning og flytting av pipe på en eksisterende bygning på eiendommen Gnr 42 Bnr 928. Arbeidet i…

πŸ“ Reise 2 Lillesand
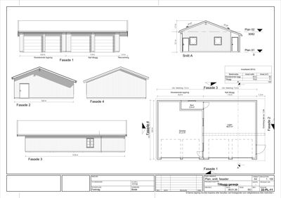
Tegning som viser fasadeoppsett, snitt og etasjeplan for en garasje.
Extension Other

Tilbygg driftsbygning/garasje på Kobbhamran 4, Bodø

Ny tilbygg på ca. 70,7 m² til eksisterende driftsbygning/garasje på landbrukseiendommen Kobbhamran 4 i Bodø. Tilbygget …

πŸ“ Kobbhamran 15 Bodø
🏗️
NewConstruction Other

Oppføring av pergola på Bergshaven 2A

Ny pergola oppføres på eiendommen Bergshaven 2A. Pergolaen vil være en frittstående eller tilknyttet konstruksjon som g…

πŸ“ Bergshaven 2A Lillesand
Kartutsnitt (Norkart) som viser eiendomsgrenser, eiendomsnummer (f.eks. 10/1, 10/83), og en planlagt ny mur med angitte lengder.
Extension Other

Oppføring av støttemur langs fastbrygge i Etne båthamn

Ny natursteins støttemur på ca. 26 meter langs nordsiden av eksisterende fastbrygge i Etne båthamn. Muren bygges utenpå…

πŸ“ Tongane 22 Etne
🏗️
NewConstruction Other

Oppføring av gjødselkum i Grytesvegen 590

Ny gjødselkum oppføres på eiendommen i Grytesvegen 590. Kummen skal benyttes til lagring av gjødsel og er en del av lan…

πŸ“ Grytesvegen 590 Levanger - Levangke
🏗️
Extension Other

Tilbygg på bolig i Fuglefjellvegen 395

Tilbygg til eksisterende bygg på eiendommen i Fuglefjellvegen 395. Prosjektet innebærer en fysisk utvidelse av bygnings…

πŸ“ Fuglefjellvegen 395 Nes
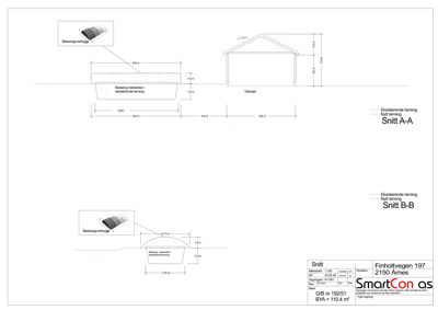
Snittegning (Snitt A-A og B-B) som viser tverrsnittet av en bassengkonstruksjon og en garasje.
NewConstruction Other

Ny garasje og svømmebasseng i Finholtvegen 197, Årnes

Prosjektet omfatter oppføring av en ny garasje på 6,6 x 10,6 meter med tradisjonelt bindingsverk i tre og utvendig trek…

πŸ“ Finholtvegen 197 Nes
Et fotografi av en kai med flytebrygger, som illustrerer et område nevnt i teksten om riving og ny plassering.
Demolition Other

Riving av kai og flytting av flytebrygge på Kommunekaia, Bakkeskåt

Prosjektet omfatter riving av en eksisterende trekai på ca. 73 meter lengde og 8,5 meter bredde ved Kommunekaia i Bakke…

πŸ“ Kommunekaia, Bakkeskåt Tvedestrand
🏗️
NewConstruction Other

Oppføring av peisovn og pipe på Mesanen 6B

Ny peisovn og tilhørende pipe skal oppføres i boligen på Mesanen 6B. Prosjektet omfatter installasjon av ildsted og byg…

πŸ“ Mesanen 6B Risør
Fasadetegning som viser bygningens utseende fra fire sider (Nord, Sør, Aust og Vest) med mål og vindusoppsett.
NewConstruction Other

Nyoppføring av redskapshus på Gardavegen 41B

Ny frittliggende redskapshus (uthus) med saltak på Gardavegen 41B. Bygget har to etasjer med gesimshøyde på 8 meter, sa…

πŸ“ Gardavegen 41A Luster
🏗️
Extension Other

Utvidelse av brygge og rehabilitering av sjøbod på Vestegården 11

Prosjektet omfatter utvidelse av eksisterende brygge og rehabilitering av en sjøbod på eiendommen Vestegården 11 i Tved…

πŸ“ Vestegården 11 Tvedestrand
3D-visualisering (rendering) som viser to alternativer for en brygge: med og uten båtplasser.
NewConstruction Other

Ny bryggepromenade og småbåthavn ved Lonøyveien 86, Hvaler

Ny bryggepromenade på land med en lengde på ca. 85 meter og bredde på 3 meter, parallelt med eksisterende gang- og sykk…

πŸ“ Lonøyveien 86 Hvaler
🏗️
VerticalExtension Other

Påbygg og bruksendring i Arendal kommune, Gnr 412 Bnr 69

Prosjektet omfatter et påbygg på eksisterende bygg samt bruksendring av rom i eiendommen Gnr 412 Bnr 69 i Arendal kommu…

πŸ“ Gamle Risevei 30 Arendal
Situasjonsplan som viser tomtens beliggenhet i forhold til nabolag, vei (Vikveien) og elv.
Rehabilitation Other

Rehabilitering av to piper på enebolig, Dalen 5, Arendal

Rehabilitering av to eksisterende mursteins piper på en enebolig ved Dalen 5 i Arendal. Arbeidet inkluderer demontering…

πŸ“ Dalen 5 Arendal
🏗️
FacadeChange Other

Bytte av kledning og vinduer på eiendom Gnr 507 Bnr 40, Arendal

Fasadeendring som omfatter utskifting av eksisterende kledning og vinduer på bygning tilknyttet eiendommen Gnr 507 Bnr …

πŸ“ Skytebaneveien 14 Arendal
🏗️
Extension Other

Oppføring av brannførebygg i Tiurvegen 2

Ny oppføring av et brannførebygg ved eksisterende bygg på Tiurvegen 2. Bygget skal fungere som en fysisk barriere for å…

πŸ“ Tiurvegen 2 Bremanger
🏗️
Extension Other

Oppføring av brannførebygg i Gunnar Schjelderups veg 202B

Ny oppføring av brannførebygg ved eiendommen i Gunnar Schjelderups veg 202B. Brannførebygget skal fungere som en fysisk…

πŸ“ Gunnar Schjelderups veg 202B Bremanger
🏗️
Extension Other

Oppføring av brannførebygg i Trostevegen 10

Ny oppføring av brannførebygg ved eksisterende bygg på Trostevegen 10. Brannførebygget skal fungere som en fysisk barri…

πŸ“ Trostevegen 10 Bremanger
🏗️
Extension Other

Oppføring av brannførebygg i Isevegen 25

Ny oppføring av et brannførebygg ved eiendommen i Isevegen 25. Brannførebygget skal fungere som en fysisk barriere for …

πŸ“ Isevegen 25 Bremanger
🏗️
NewConstruction Other

Bygging av landbruksvei og snuplass på Gnr 17 Bnr 16

Ny landbruksvei med tilhørende snuplass bygges på eiendommen Gnr 17 Bnr 16. Veien skal tilrettelegge for bedre adkomst …

Drangedal
🏗️
Extension Other

Oppføring av brannførebygg i Isevegen 24

Ny oppføring av et brannførebygg ved eiendommen i Isevegen 24. Brannførebygget er en konstruksjon som skal beskytte eks…

πŸ“ Isevegen 24 Bremanger
🏗️
NewConstruction Other

Nytt anlegg for bygningstekniske installasjoner på Evjeveien 927

Nytt anlegg for bygningstekniske installasjoner etableres på eiendommen Evjeveien 927. Prosjektet omfatter oppføring av…

πŸ“ Evjeveien 927 Froland