Alle byggesaker 7543 treff

🌾
Demolition Landbruk

Riving av gammal driftsbygning

Riving av en gammel driftsbygning for å gjøre plass til ny.

πŸ“ Solberg 65 Bjerkreim
Etasjeplan med håndskrevne notater om romstørrelser (f.eks. 50 kvm), dører og tekniske detaljer.
Extension Enebolig

Tilbygg og bærekonstruksjonsendring på enebolig, Andebuveien 709

Ny innbygging av tidligere overbygde arealer på ca. 13,5 m² som tilbygg til eksisterende enebolig i Andebuveien 709. Ti…

πŸ“ Andebuveien 709 Sandefjord
🏠
FacadeChange Enebolig

Skifte av vinduer og dører i enebolig, Nannestadgata 2

Skifte av eksisterende vinduer og dører i en enebolig på Nannestadgata 2. Prosjektet omfatter utskifting av alle fasade…

πŸ“ Nannestadgata 2A Oslo - Oslove
Fotografi av en hvit, trepanelert bygning (sannsynligvis en uthus eller garasje) sett fra siden. Bildet viser detaljer som takrenne, vinduer, en grill, en sykkelparkering og palletter i bakgården.
Extension Enebolig

Nytt tilbygg med loft på enebolig i Parkveien 11, Arendal

Nytt tilbygg med loft oppføres på enebolig i Parkveien 11, Arendal, som erstatter et eksisterende tilbygg fra 1970-tall…

πŸ“ Parkveien 11 Arendal
Bildet viser 3D-visualiseringer (renderinger) av en planlagt bygning fra ulike vinkler (fugleperspektiv og fasade), inkludert tekst som bekrefter at det er illustrasjoner.
Extension Enebolig

Tilbygg og påbygg til enebolig i Myraledbakken 3, Ålesund

Ny tilbygg og påbygg til eksisterende enebolig på Myraledbakken 3 i Ålesund. Prosjektet inkluderer et tilbygg mot nord …

πŸ“ Myraledbakken 3 Ålesund
🏗️
NewConstruction Other

Ny søppelbod på Buvikbakken 27C, Risør

Ny frittstående søppelbod oppføres på eiendommen Buvikbakken 27C i Risør kommune. Bygget er et mindre konstruksjon bere…

πŸ“ Buvikbakken 27C Risør
Fasadetegning og snittegning for vest, øst, nord og sør
NewConstruction Other

Ny ballbinge og læringsarena ved Øyra skole, Porsemyrvegen

Prosjektet omfatter oppføring av en ny ballbinge på ca. 260 m² og en mindre bygning på ca. 100 m² som skal fungere som …

πŸ“ Porsemyrvegen 1 Volda
Fotografi av en bygning (en stor hall med hvit tak) sett fra en vei, omgitt av trær og en liten blå hytte.
Extension Offentlig

Tak og vegger på Maier Arena skøytebane, Tønsberg

Prosjektet omfatter oppføring av tak og vegger over Maier Arena skøytebane i Tønsberg, et interkommunalt idrettsanlegg.…

Tønsberg
🏗️
Unknown Other

Etablering av gågate

Etablering av en gågate fra Kolstadgata til Tøyen torg ved Kolstadgata 20.

πŸ“ Kolstadgata 20A Oslo - Oslove
En enkel situasjonsplan som viser ønsket plassering og størrelse for utvidelse av en næringslokale i forhold til eksisterende bygninger og vassdrag.
Extension Naeringsbygg

Tilbygg lagerhall på næringsbygg, Tyinosvegen 1, Øvre Årdal

Ny lagerhall som tilbygg på 115,5 m² BRA og 120 m² BYA til eksisterende næringsbygg for Tess Årdal på Tyinosvegen 1. By…

πŸ“ Tyinosvegen 1 Årdal
🏗️
ChangeOfUse Other

Underbygging, bruksendring og fasadeendring i Holmenkollveien 125

Prosjektet omfatter underbygging av eksisterende bygg, endring av bruksformål (bruksendring) samt endring av fasade. Ti…

πŸ“ Holmenkollveien 125 Oslo - Oslove
🅿️
Extension Garasje

Oppføring av carport og garasje på Hovedøya

Ny frittstående carport kombinert med garasje oppføres på eiendommen på Hovedøya. Bygget vil fungere som biloppstilling…

πŸ“ Hovedøya 999 Oslo - Oslove
🏡
Extension Fritidsbolig

Tilbygg til eksisterende fritidsbolig i Rakkestadveien 85

Ny tilbygg til eksisterende fritidsbolig på eiendommen i Rakkestadveien 85. Prosjektet innebærer en fysisk utvidelse av…

πŸ“ Rakkestadveien 85 Bamble
🏢
Extension Leilighetsbygg

Innvendig ombygging og endring av boenhetsskille i Måkeveien 21

Innvendig ombygging i et eksisterende leilighetsbygg som innebærer endring av skillevegger mellom boenheter. Prosjektet…

πŸ“ Måkeveien 21 Oslo - Oslove
🏠
Extension Enebolig

Utvidelse av balkong og tilbygg i Brattvollveien 271

Prosjektet omfatter utvidelse av eksisterende balkong og oppføring av et tilbygg under balkongen på en enebolig i Bratt…

πŸ“ Brattvollveien 101 Oslo - Oslove
Fotografi av en rød bygning og omgivelser i et snødekt landskap.
NewConstruction Naeringsbygg

Midlertidig toalett- og dusjbygg ved 257 Heidalsvegen

Ny midlertidig prefabrikkert toalett- og dusjbygning på ca. 9,9 m² (4,3 x 2,3 m) plassert direkte på terreng uten perma…

πŸ“ Heidalsvegen 1961 Sel
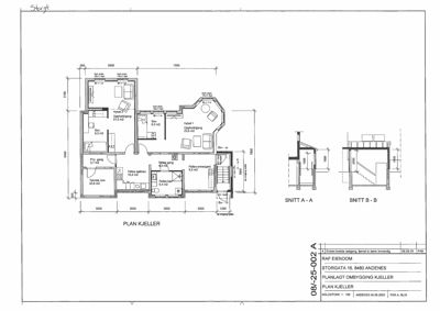
Plantegning av kjelleretasje (PLAN KJELLER) med romfordeling, mål og snittegninger.
ChangeOfUse Tomannsbolig

Bruksendring og oppdeling i tomannsbolig, Storgata 16

Bruksendring fra tilleggsdel til hoveddel i kjelleretasjen av en tomannsbolig på Storgata 16, med oppdeling av boenhet.…

πŸ“ Storgata 16 Andøy
Fotografier av eksisterende carport A, carport B og en skur på Birkeveien 43.
NewConstruction Enebolig

Riving og nybygg av 3 boliger med garasje i Birkeveien 43

Prosjektet omfatter riving av en eksisterende tomannsbolig og tilhørende garasjer på eiendommen Birkeveien 43, Nesodden…

πŸ“ Birkeveien 43 Nesodden
🏗️
NewConstruction Other

Oppføring av nytt renseanlegg i Åkvågveien 108, Risør

Nytt renseanlegg oppføres på eiendommen Åkvågveien 108 i Risør kommune. Anlegget er et teknisk bygg med formål å rense …

πŸ“ Åkvågveien 108 Risør
🏡
Extension Fritidsbolig

Tilbygg og fasadeendring på fritidsbolig, Leknesvegen 63

Ny utvidelse av fritidsbolig med tilbygg av gangareal og utvidelse av terrasse. Bygget ligger i sjøkanten på en eiendom…

πŸ“ Leknesvegen 63 Alver
🏬
Extension Naeringsbygg

Utvidelse og ny inngang på næringsbygg, Kolstadgata 18

Utvidelse av eksisterende næringsbygg med ny inngangsparti. Prosjektet innebærer fysisk endring av bygningsmassen for å…

πŸ“ Kolstadgata 18 Oslo - Oslove
🏢
NewConstruction Leilighetsbygg

Ferdigattest for leilighetsbygg på Åbodokki 13

Leilighetsbygg på Åbodokki 13 er fullført og det foreligger ferdigattest som dokumenterer at bygget er oppført i henhol…

πŸ“ Åbodokki 13 Fyresdal
Fotografi av en hull i en hvitputtet vegg som viser en grå, ribbet rørledning (sannsynligvis ventilasjonsrør) som går gjennom veggen.
Rehabilitation Other

Rehabilitering av skorstein på Husøyvegen 11, Ålesund

Rehabilitering av eksisterende skorstein i bolig på Husøyvegen 11, bestående av innvendig foring av pipe med Ø150 fleks…

πŸ“ Husøyvegen 11 Ålesund
🏠
Extension Enebolig

Utvidelse av bad i enebolig, Økernveien 244

Utvidelse av eksisterende bad i enebolig på Økernveien 244. Prosjektet innebærer økning av badets areal, sannsynligvis …

πŸ“ Økernveien 244 Oslo - Oslove