Garasje 835 treff

Fotografi tatt fra et loft som viser nabolaget, inkludert hus med tak, vann og en brygge.
NewConstruction Garasje

Ny frittstående anneks i Kronborgveien 7, Averøy

Ny frittstående anneks på 22,5 m² bebygd areal og 21 m² bruksareal oppføres på eiendommen Kronborgveien 7 i Averøy. Byg…

πŸ“ Kronborgveien 7 Averøy
3D-visualisering av en toetasjers bolig sett fra et vinklet utsnitt, inkludert omgivelser som hage, hekk og trær.
Extension Garasje

Garasjetilbygg med terrasse og fasadeendring på Hauglia 3, Farsund

Garasjetilbygget er et tilbygg til eksisterende bolig på Hauglia 3 i Farsund, med et bruksareal på 39 m² og bebygd area…

πŸ“ Hauglia 3 Farsund
Bildet viser en 3D-visualisering (rendering) av en bolig med omgivende terreng, samt en teknisk illustrasjon som viser nivåforskjeller før og etter ombygging.
ChangeOfUse Garasje

Bruksendring og fasadeendring på garasje og bolig i Øverbergveien 24D

Prosjektet omfatter bruksendring av loftet over en eksisterende garasje til atelier/hobbyrom, fasadeendringer med nye d…

πŸ“ Øverbergveien 24D Asker
🅿️
Extension Garasje

Tilbygg til uthus på Nystøgovegen 274

Tilbygg til eksisterende uthus på eiendommen Nystøgovegen 274. Prosjektet omfatter en fysisk utvidelse av uthusbygget, …

πŸ“ Nystøgovegen 274 Vang
3D-visualiseringer (renderinger) som viser før-etter-liknende situasjoner for en parkeringsløsning ved Årengveien 11A.
NewConstruction Garasje

Ny garasje med bodareal på loft i Årengveien 11A, Nesbru

Ny frittstående garasje på 36 m² BYA med totalt 61,7 m² BRA inkludert bodareal på loft oppføres på eiendommen Årengveie…

πŸ“ Årengveien 11A Asker
🅿️
NewConstruction Garasje

Ny frittstående garasje i Orreveien 2

Ny frittstående garasje skal oppføres på eiendommen Orreveien 2. Garasjen vil være et separat bygg beregnet for biloppb…

πŸ“ Orreveien 2 Våler (Østfold)
Fasadetegning som viser bygningens utseende fra sør og vest, inkludert vinduer, dører, takform og høydeangivelser.
NewConstruction Garasje

Oppføring av redskapshus på Bolleveien 183, Leknes

Ny frittliggende redskapshus på 313,8 m² grunnflate med saltak og mønehøyde på ca. 8,3 meter oppføres på landbrukseiend…

πŸ“ Bolleveien 183 Vestvågøy
Etasjeplan eller situasjonsplan med rombetegnelser (VETTERKOLLEN 24, 26) og målspesifikasjoner.
Other Garasje

Opparbeidelse av parkeringslomme med støttemur på Vettrekollen 24

Ny parkeringslomme på ca. 20 m² (2,7 m bredde og 7,5 m lengde) opparbeides delvis på kommunal veiskulder og delvis på e…

πŸ“ Vettrekollen 24 Asker
Fotografi av en bygning med hvit fasade og blå vindusrammer, sett fra siden. Bildet viser også en del av en vei, grus og en annen bygning i bakgrunnen.
Extension Garasje

Carport og forstøtningsmur ved Havnegata 7, Kabelvåg

Ny carport på 24,9 m² med flatt tak under eksisterende veranda på enebolig i Havnegata 7, Kabelvåg. Carporten har treko…

πŸ“ Havnegata 7 Vågan
🅿️
NewConstruction Garasje

Ny garasje i Månovegen 156

Ny frittstående garasje oppføres på eiendommen i Månovegen 156. Garasjen er et enkelt bygg beregnet for biloppbevaring …

πŸ“ Månovegen 156 Nord-Aurdal
🅿️
Extension Garasje

Oppføring av carport på Harahaugane 40

Ny frittstående carport oppføres på eiendommen Harahaugane 40. Carporten vil fungere som overdekket parkeringsplass for…

πŸ“ Harahaugane 40 Sandnes
🅿️
Extension Garasje

Oppføring av carport på Harahaugane 46

Ny frittstående carport oppføres på eiendommen Harahaugane 46. Carporten vil fungere som overdekket parkeringsplass for…

πŸ“ Harahaugane 40 Sandnes
🅿️
Extension Garasje

Ny carport på Harahaugane 50

Ny frittstående carport oppføres på eiendommen Harahaugane 50. Carporten vil fungere som overdekket parkeringsplass for…

πŸ“ Harahaugane 40 Sandnes
Bildet viser en dokumentasjonsside fra en byggesak som inneholder et fotografi av en container og to flyfotoer (satellittbilder) av eiendommen med markeringer for bygg 1 og 3.
Extension Garasje

Tilbygg av garasje og boder i Gjerdrumsveien 140

Ny tilbygging av garasje og to boder på fritidseiendom i LNF-område ved Gjerdrumsveien 140. Garasjen har et gulvareal p…

πŸ“ Gjerdrumsveien 140 Lillestrøm
🅿️
NewConstruction Garasje

Ny garasje i Nyveien 26B

Ny frittstående garasje oppført på eiendommen Nyveien 26B. Garasjen er et separat bygg beregnet for oppbevaring av kjør…

πŸ“ Nyveien 26B Nittedal
🅿️
Demolition Garasje

Riving og ny garasje i Johan Svendsens vei 4B

Prosjektet omfatter riving av eksisterende garasje og oppføring av en ny garasje på eiendommen i Johan Svendsens vei 4B…

πŸ“ Johan Svendsens vei 4A Nordre Follo
🅿️
NewConstruction Garasje

Ny garasje med støttemur og rekkverk i Kalamyrveien 38A

Ny frittstående garasje oppføres på eiendommen i Kalamyrveien 38A. Prosjektet inkluderer også bygging av en ny støttemu…

πŸ“ Kalamyrveien 38A Sandnes
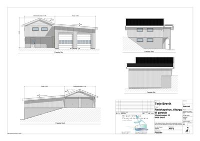
Fasadetegninger som viser bygningens utseende fra fire ulike sider (Sør, Vest, Øst og Nord).
Extension Garasje

Oppføring av redskapshus og tilbygg til garasje i Vikdalsvegen 20

Ny oppføring av et redskapshus på 65,8 m² som tilbygg til eksisterende garasje på 39,2 m², totalt 105 m². Bygget har tr…

πŸ“ Vikdalsvegen 20 Molde
🅿️
Demolition Garasje

Riving og oppføring av erstatningsnaust i Strondavika Nord

Prosjektet omfatter riving av et eksisterende naust og oppføring av et nytt erstatningsnaust på samme eiendom i Stronda…

πŸ“ Strondavika Nord Sandnes
🅿️
Extension Garasje

Ferdigstilling av bolig og garasje

Saken omhandler administrativt forlengelse av frist for innsending av søknad om ferdigattest for en bolig og garasje, u…

πŸ“ Rossåsbakken 4 Sandnes
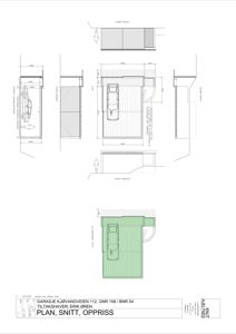
Etasjeplan for en garasje med oppriss og snitt
Demolition Garasje

Ny garasje med omlegging av adkomstvei i Kjøvangveien 112

Ny frittliggende garasje på 41,3 m² BYA oppføres på eiendommen Kjøvangveien 112, med vegger av betong og tjæret treverk…

πŸ“ Kjøvangveien 112 Vestby
Bildet viser to fotografier av eksisterende bygninger (en tun og en baritekn) med tilhørende tekst om vern og forvaltning.
Demolition Garasje

Riving av stabbur og ny garasje i Hølandsveien 1484

Prosjektet omfatter riving av et to-etasjes stabbur oppført i 1922 i lafteplank, som står på betongstabber og brukes so…

πŸ“ Thonsveien 280 Aurskog-Høland
3D-visualisering av et hus med omgivelser, inkludert trær og terreng.
Extension Garasje

Tilbygg, garasje og drivhus/redskapsbod på Ellestrandveien 21

Ny boligdel med tilbygg til eksisterende våningshus på ca. 75,9 m² BRA, inkludert et grovkjøkkenbygg med saltak og et m…

πŸ“ 55/11 Farsund
🅿️
NewConstruction Garasje

Nybygg garasje i Storbråtåsvingen 29, Nord-Odal

Ny frittstående garasje oppført på eiendommen Gnr 35 Bnr 29 i Storbråtåsvingen 29, Nord-Odal. Garasjen er et separat by…

πŸ“ Storbråtåsvingen 29 Nord-Odal