Naeringsbygg 755 treff

Fotografier av en bygning sett fra fire sider (Nord, Sør, Øst, Vest).
ChangeOfUse Naeringsbygg

Bruksendring og ombygging med riving av garasje i Kaffegata 84, Flisa

Eksisterende næringsbygg på Kaffegata 84 i Flisa gjennomgår bruksendring og ombygging fra trykkeri/produksjonslokaler t…

πŸ“ Kaffegata 84 Åsnes
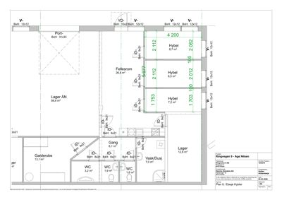
Etasjeplan (etasjeteegning) som viser romfordeling for hybler og fellesrom. Tegningen inneholder mål på rom, dører og veggtykkelse.
ChangeOfUse Naeringsbygg

Bruksendring med innredning av hybler i Ringvegen 9

Bruksendring i underetasjen av næringsbygg i Ringvegen 9 med innredning av tre hybler på henholdsvis 8,7 m², 8,5 m² og …

πŸ“ Ringvegen 9 Tromsø
🏬
FacadeChange Naeringsbygg

Fasadeendring og bruksendring av verksted i Folkvordveien 195

Endring av fasade og bruksendring av et eksisterende næringsbygg som benyttes som verksted for kunstnere. Prosjektet in…

πŸ“ Folkvordveien 195 Sandnes
Etasjeplan eller romfordeling for en bygning med angitte retninger (NORDØST, SØRVEST etc.) og romfunksjoner (TOOLS, BILLAGSERT).
FacadeChange Naeringsbygg

Montasje av lagerport og vindu i næringsbygg

Søknad om montasje av lagerport og vindu i eksisterende næringsbygg ved Stakkevollvegen 329.

πŸ“ Stakkevollvegen 329 Tromsø
🏬
Unknown Naeringsbygg

Oppsetting av utvendig skilt for Sandnes tannklinikk

Tillatelse til oppsetting av et utvendig skilt for Sandnes tannklinikk på Gjesdalveien 34.

πŸ“ Oalsgata 3 Sandnes
🏬
FacadeChange Naeringsbygg

Oppsetting av virksomhetsskilt på fasade

Saken er en søknad og etterfølgende vedtak om tillatelse til å oppsette et virksomhetsskilt på fasaden til eiendommen. …

πŸ“ Karen Grude Kohts plass 1 Sandnes
🏬
ChangeOfUse Naeringsbygg

Bruksendring og ombygging til buddhistisk tempel i Skjævelandveien 23

Eksisterende næringsbygg tidligere brukt som hundepensjonat skal endres til buddhistisk tempel med tilhørende ombygging…

πŸ“ Skjævelandveien 23 Sandnes
3D-visualisering (rendering) av en bygning med fasadetegninger og detaljer.
NewConstruction Naeringsbygg

Ny vaskehall for automatisk maskinvask i Dalegata 71, Kristiansund

Ny frittstående vaskehall på ca. 84 m² med dimensjoner ca. 7 x 12 meter oppføres i Dalegata 71, Kristiansund. Bygget ut…

πŸ“ Dalegata 63 Kristiansund
Fotografi av et kystnært område med bygninger og vann, sannsynligvis Teistholmsundet i Kristiansund.
Extension Naeringsbygg

Ny fraksjoneringskolonne til fabrikk i Teistholmsundet 2

Ny fraksjoneringskolonne på 61,2 m² bygges som et tilbygg til eksisterende fabrikk på Teistholmsundet 2. Kolonnen får e…

πŸ“ Teistholmsundet 2 Kristiansund
🏬
NewConstruction Naeringsbygg

Ny driftsbygning på Nesveien 55

Ny driftsbygning planlegges oppført på eiendommen Nesveien 55. Bygget skal benyttes til næringsformål, typisk landbruks…

πŸ“ Nesveien 55 Heim
Fasadetegninger (opprikk) for Oslo Fashion Outlet i Vebbyen, som viser utsiden av bygningen sett fra de fire hovedsidene (Sør, Vest, Nord, Øst).
NewConstruction Naeringsbygg

Ny kiosk og bruksendring til serveringslokale i Vestbyveien 155

Ny frittstående kiosk på 22 m² med flatt tak og en gesimshøyde på 2,8 meter oppføres i Vestbyveien 155. Bygget har en e…

πŸ“ Vestbyveien 111 Vestby
Fotografi av en gate med bygninger og en byggeplass i bakgrunnen.
ChangeOfUse Naeringsbygg

Bruksendring til 3 omsorgsboliger i Skolegata 12, Kristiansund

Bruksendring av eksisterende næringsbygg i Skolegata 12 til tre omsorgsboliger på plan 2 med totalt ca. 168 m² BRA. Pro…

πŸ“ Skolegata 12 Kristiansund
Situasjonsplan som viser eiendomsinndeling, bygninger og topografi.
Rehabilitation Naeringsbygg

Rehabilitering av pipe med stålinnsats i Lalandsvegen 162

Rehabilitering av eksisterende pipe i næringsbygg med installasjon av stålinnsats for forbedret funksjon og sikkerhet. …

πŸ“ Lalandsvegen 162 Klepp
Kart som viser foreslått areal for ny driftsbygning, kulturmiljø Tinghaugplatået og feltavgrensning.
NewConstruction Naeringsbygg

Ny driftsbygning på Jærvegen 327, Klepp

Ny driftsbygning planlegges oppført på eiendommen Jærvegen 327 i Klepp kommune. Bygningen skal plasseres øst for eksist…

πŸ“ Jærvegen 325 Klepp
🏬
NewConstruction Naeringsbygg

Nytt drivhus under 70 m² i Ole I. Bores veg 80

Nytt drivhus under 70 m² skal oppføres på eiendommen i Ole I. Bores veg 80. Bygget er et mindre næringsbygg som krever …

πŸ“ Ole I. Bores veg 80 Klepp
Teknisk tegning og spesifikasjon av en ventilert ståpipe med mål og materialbeskrivelse.
Rehabilitation Naeringsbygg

Rehabilitering og montering av stålpipe i næringsbygg, Hæstadveien 40

Montering av ny Jøtul NVI stålpipe i et eksisterende næringsbygg på Hæstadveien 40. Prosjektet omfatter rehabilitering …

πŸ“ Hæstadveien 40 Flekkefjord
Situasjonsplan som viser bygningens plassering i forhold til gater (Kirkegaten, Bryggveien) og en planlagt endring av taket.
Extension Naeringsbygg

Skifte tak på næringsbygg i Kirkegaten 2

Eksisterende tak på næringsbygget i Kirkegaten 2 skal skiftes ut. Arbeidet inkluderer demontering av gammelt tak og opp…

πŸ“ Kirkegaten 2 Flekkefjord
Fotografi av fasaden på en bygning med forretningslokaler (Svane Kjøkkenet), parkerte biler og en rød pil som peker på en detalj på veggen.
FacadeChange Naeringsbygg

Oppsetting av fasadeskilt på næringsbygg i Nedre Torggate 18A

Nytt fasadeskilt for virksomheten Svanekjøkkenet monteres på fasaden til næringsbygget i Nedre Torggate 18A. Skiltet er…

πŸ“ Nedre Torggate 18A Drammen
Et landsdekkende aktsomhetskart for kvikkleireskred med overlag av et grønt rektangel som markerer et område.
Rehabilitation Naeringsbygg

Rehabilitering av pipe på næringsbygg i Allegaten 25

Rehabilitering av en pipe i et SEFRAK-registrert næringsbygg i Allegaten 25, Flekkefjord. Pipa skal rehabiliteres med b…

πŸ“ Allegaten 25 Flekkefjord
3D-visualisering av fasaden på en bolig med garasje og carport.
NewConstruction Naeringsbygg

Ny driftsbygning med riving av carport i Stokkeveien 7B

Ny driftsbygning på 121 m² BYA oppføres inntil eksisterende garasje på eiendommen Stokkeveien 7B. Bygningen har et bruk…

πŸ“ Stokkeveien 7B Farsund
Bildet viser fire 3D-visualiseringer av et planlagt industribygg eller lagerhall fra ulike vinkler.
NewConstruction Naeringsbygg

Nytt lagerbygg på Flyplassveien, Vanse

Ny lagerhall på totalt 1023 m² BRA fordelt på 10 lagerrom i én etasje, oppført i stål med maksimal gesimshøyde på 6,9 m…

πŸ“ Flyplassveien 103 Farsund
3D-visualisering av en moderne villa med hvit fasade, grå tak og store vinduer, plassert på stolper over vann.
Extension Naeringsbygg

Tilbygg og fasadeoppgradering på Rødvinsbrygga, Smøla

Prosjektet omfatter tilbygg og fasadeoppgradering av det eksisterende næringsbygget Rødvinsbrygga på Veiholmen, Smøla. …

πŸ“ Rødvinsbrygga Smøla
🏬
NewConstruction Naeringsbygg

Oppføring av driftsbygning

Søknad om oppføring av en ny driftsbygning på eiendommen Gnr 23, Bnr 2. Ingen detaljer om tiltak er tilgjengelige i dok…

πŸ“ Eilefstadveien 100 Hægebostad
Bildet inneholder en 3D-visualisering (rendering) av et hus, samt situasjonsplaner og en midlertidig anleggsvei.
NewConstruction Naeringsbygg

Ny rubbhall i Eiken næringspark, Skeie Nordre

Ny rubbhall oppføres som næringsbygg i Eiken næringspark på eiendommen Gnr 74, Bnr 145. Bygget skal fungere som lagerha…

πŸ“ Skeie Nordre, Eiken næringspark Hægebostad