Enebolig 2126 treff

🏠
Rehabilitation Enebolig

Ombygging og fasadeendring på enebolig i Grensegaten 1

Ombygging av en enebolig i Grensegaten 1 med innvendige byggearbeider og endring av fasaden. Prosjektet inkluderer oppd…

πŸ“ Grensegaten 1 Karmøy
🏠
Rehabilitation Enebolig

Rehabilitering og nytt teknisk anlegg på Skinnesvegen 68

Prosjektet omfatter rehabilitering og oppføring av nytt teknisk anlegg for skorstein på en enebolig i Skinnesvegen 68. …

πŸ“ Skinnesvegen 68 Herøy (Møre og Romsdal)
Fotografi av en eksisterende eller ferdigbygd leilighetsbygning med røde teglvegger, hvite vinduer og trebalconier.
FacadeChange Enebolig

Fasadeendring på boligbygg i Vollenetoppen 8, Arendal

Eksisterende boligbygg i Vollenetoppen 8 får en omfattende fasadeendring hvor den gamle murfasaden utlektes og det mont…

πŸ“ Vollenetoppen 8 Arendal
🏠
NewConstruction Enebolig

Ny enebolig med garasje i Støylavegen, Fosnavåg

Ny enebolig med tilhørende dobbelgarasje oppføres på eiendom i Støylavegen, Fosnavåg. Boligen har et bruksareal på ca. …

πŸ“ Bergsvegen 14 Herøy (Møre og Romsdal)
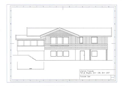
En tegning som viser fasaden på en bygning sett fra sør (Uterom Fasade, Fasad Sør).
ChangeOfUse Enebolig

Bruksendring av kjellerrom i Mostugutua 8, Råholt

Bruksendring av kjellerrom i en enebolig på Mostugutua 8, Råholt, med omdisponering av sportsbod til soverom og hobby/t…

πŸ“ Mostugutua 8 Eidsvoll
Fotografier av en eksisterende bygning (Brygghuset) fra fire ulike vinkler (vest, nord, sør, øst) som viser fasaden og omgivelsene.
NewConstruction Enebolig

Riving og ny boligbygg på Sandaker 7, Rygge

Ny boligbygning oppføres på eiendommen Sandaker 7 i Rygge etter riving av et eksisterende SEFRAK-registrert bryggerhus …

πŸ“ Sandaker 7 Råde
Bildet viser en side fra et dokument som inneholder tegninger (fasader, plantegninger) og en tekstkonklusjon om en byggesak.
FacadeChange Enebolig

Fasadeendring og tilbygg på enebolig i Gjerdåsveien 24B, Bodø

Prosjektet omfatter innglassing av eksisterende veranda i 2. etasje med skyveglassfelt i klart glass som kan åpnes helt…

πŸ“ Vebjørn Tandbergs vei 19 Bodø
🏠
Extension Enebolig

Tilbygg, ny boenhet og garasje med carport på Symrevegen 2

Ny oppføring av et tilbygg til eksisterende enebolig, inkludert etablering av en ny boenhet og en frittstående garasje …

πŸ“ Symrevegen 2 Nesbyen
Tre ulike 3D-visuelliseringer (perspektivtegninger) av en planlagt bolig, vist fra forskjellige vinkler.
ChangeOfUse Enebolig

Bruksendring og fasadeendring på enebolig i Ole Tobias Olsens Vei 21

Prosjektet omfatter bruksendring i sokkeletasje av en eksisterende enebolig med hybelleilighet, hvor flere rom i sokkel…

πŸ“ Ole Tobias Olsens vei 21 Bodø
🏠
FacadeChange Enebolig

Fasadeendring med vindusutskifting på Graslijordet 1

Fasadeendring på en enebolig som omfatter utskifting av eksisterende vinduer og fjerning av noen vinduer. Endringen påv…

πŸ“ Graslijordet 1 Vennesla
🏠
Rehabilitation Enebolig

Renovering av betongfasade og bærekonstruksjoner i Ørnesveien 3

Renovering av betongfasaden og endring i bærekonstruksjoner på en eksisterende enebolig i Ørnesveien 3, Glomfjord. Pros…

πŸ“ Ørnesveien 3 Meløy
Et fotografi av en eksisterende bygning (bustadbygg) sett fra lufta, tatt fra Google Street View.
Demolition Enebolig

Riving av bustadbygg

Saken gjelder søknad og vedtak om tillatelse til riving av et eksisterende bustadbygg.

Stad
🏠
VerticalExtension Enebolig

Påbygg og riving av uthus på Julussdalsveien 23

Ny påbygg/tilbygg på eksisterende enebolig med et areal på 98 m² oppføres med pulttak, som avviker fra eksisterende sal…

πŸ“ Gamle Julussdalsveien 23 Åmot
En samling av 3D-visualiseringer (renderinger) som viser en bygning før og etter tiltak, inkludert rivning og nybygging, samt en oversikt fra øst.
Extension Enebolig

Tilbygg og fasadeendring på enebolig i Stokke 19, Ørsta

Ny tilbygg og påbygg på eksisterende enebolig på Stokke 19, Ørsta, med samlet økning av bruksareal på ca. 70 m². Tilbyg…

πŸ“ Stokke 19 Ørsta
🏠
FacadeChange Enebolig

Fasadeendring på enebolig i Eidsvollsvegen 8, Vennesla

Endring av utvendig fasade på en eksisterende enebolig i Eidsvollsvegen 8. Prosjektet omfatter oppgradering og modifise…

πŸ“ Eidsvollsvegen 8 Vennesla
Fotografi av en hvit, toetasjes hytte med steinmur i bunnen, sett fra siden. Bakgrunnen viser snødekte fjell og en annen bygning.
Demolition Enebolig

Riving av våningshus på Rindevegen 27, Nordfjordeid

Eksisterende våningshus på Rindevegen 27 i Nordfjordeid skal rives som følge av at bygget er i svært dårlig teknisk sta…

πŸ“ Rindevegen 27 Stad
🏠
NewConstruction Enebolig

Ny enebolig i Orreveien 24, Vegårshei

Ny enebolig skal oppføres på eiendommen i Orreveien 24, Vegårshei kommune. Prosjektet omfatter et frittstående boligbyg…

πŸ“ Orreveien 24 Vegårshei
Sol- og skyggediagram som viser hvordan bygningene kaster skygger på ulike tidspunkter (kl 12) over en periode (mars-september).
Extension Enebolig

Tilbygg og fasadeendring på enebolig i Fredensborgveien 100A, Bodø

Ny to-etasjes tilbygg på eksisterende enebolig i Fredensborgveien 100A med et samlet areal på ca. 6 m² BYA. Tilbygget o…

πŸ“ Fredensborgveien 100A Bodø
🏠
Extension Enebolig

Tilbygg på enebolig i Arnheimsveien 50

Ny tilbygg på eksisterende enebolig i Arnheimsveien 50. Tilbygget vil utvide boligens areal og funksjonalitet, med tilp…

πŸ“ Arnheimsveien 50 Vegårshei
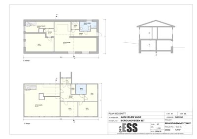
Plantegning som viser romfordeling for 1. etasje og U. etasje, samt et snitt (A-A) av bygningen.
ChangeOfUse Enebolig

Bruksendring med ny trapp i enebolig, Borgundvegen 957

Innvendig bruksendring i eksisterende enebolig på Borgundvegen 957 med totalareal på ca. 158 m². Prosjektet omfatter fl…

πŸ“ Borgundvegen 957 Ålesund
🏠
Extension Enebolig

Tilbygg til enebolig på Ådalen 509

Tilbygg til eksisterende enebolig på Ådalen 509. Prosjektet innebærer en fysisk utvidelse av boligens areal, men detalj…

πŸ“ Tollheim, Ådalen 509 Tinn
Etasjeplan som viser romfordeling, arealer og en markert brannvegg.
Rehabilitation Enebolig

Utbedring av vannskade i enebolig, Skarpetegvegen 2, Ålesund

Ensidig partiell utbedring av vertikal brann- og lydskille i en eksisterende enebolig på 54,38 m² i Skarpetegvegen 2, Å…

πŸ“ Skarpetegvegen 2 Ålesund
🏠
NewConstruction Enebolig

Ny enebolig i Åsheimveien 12

Ny enebolig skal oppføres på eiendommen i Åsheimveien 12. Detaljer om byggets størrelse, materialer og romfordeling for…

πŸ“ 43/1 Balsfjord
🏠
VerticalExtension Enebolig

Endring av tak på enebolig i Rustmovegen 38

Endring av tak på en eksisterende enebolig i Rustmovegen 38. Prosjektet innebærer modifikasjon av takets konstruksjon o…

πŸ“ Rustmovegen 40 Nord-Fron