Enebolig 2124 treff

🏠
Extension Enebolig

Innsetting av tre nye takvinduer i Feddersens gate 3

Innsetting av tre nye takvinduer i taket på en eksisterende enebolig. Tiltaket innebærer å åpne opp i takflaten for å m…

πŸ“ Feddersens gate 3 Oslo - Oslove
Bildet viser en serie med 3D-visualiseringer (renderinger) av et boligprosjekt sett fra ulike vinkler, inkludert situasjonsvisning. Tegningen har også teknisk informasjon i bunnen.
Extension Enebolig

Tilbygg, fasadeendring og våtromsoppgradering i enebolig, Stordalsveien 18, Bodø

Prosjektet omfatter totalrenovering av en eksisterende enebolig med tilbygg av ny garasje på ca 67,3 m², ny trapp på 25…

πŸ“ Stordalsveien 18 Bodø
🏠
NewConstruction Enebolig

Nytt boligbygg på Sundsøya 2-12

Nytt boligbygg oppføres på eiendommen Sundsøya 2-12. Bygget er klassifisert som en enebolig, og prosjektet har fått god…

πŸ“ Sundsøya 12 Inderøy
🏠
Extension Enebolig

Utvidelse av hems og ombygging av wc til bad i Per Kvibergs gate 20

Utvidelse av hems i enebolig med tilhørende ombygging av eksisterende wc til et fullverdig bad. Prosjektet innebærer en…

πŸ“ Per Kvibergs gate 20 Oslo - Oslove
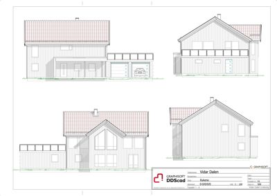
Fasadetegning som viser fire ulike sider av en planlagt bolig (front, side, bak og en annen side).
NewConstruction Enebolig

Ny enebolig med integrert dobbel garasje i Småmyrene 23, Rykene

Ny frittliggende enebolig i to etasjer med integrert dobbel garasje på Småmyrene 23, Rykene. Boligen har et bebygd area…

Arendal
Fasadetegning med oppriss av bygning sett fra fire sider (N, S, Ø, V) og et tverrsnitt (Snitt A-A).
VerticalExtension Enebolig

Påbygg og tilbygg på enebolig i Finholtvegen 23

Eksisterende enebolig på Finholtvegen 23 utvides med et tilbygg på 83 m² i grunnflate, som øker bebygd areal (BYA) til …

πŸ“ Finholtvegen 23 Ullensaker
🏠
NewConstruction Enebolig

Ny enebolig i Sneglestien 7

Ny enebolig skal oppføres på eiendommen i Sneglestien 7. Prosjektet omfatter oppføring av en frittliggende bolig beregn…

πŸ“ Sneglestien 7 Marker
🏠
Extension Enebolig

Tilbygg, bruksendring og fasadeendring på enebolig i Biskop Heuchs vei 26

Prosjektet omfatter et tilbygg til en eksisterende enebolig, i tillegg til bruksendring og fasadeendring. Tilbygget vil…

πŸ“ Biskop Heuchs vei 26 Oslo - Oslove
Situasjonskart som viser tomtens plassering i forhold til nabolag, veier og høydeforhold.
ChangeOfUse Enebolig

Bruksendring og fasadeendring på enebolig i Hvalrossveien 20

Eksisterende enebolig i Hvalrossveien 20 gjennomgår bruksendring i kjelleretasjen fra bod til soverom med tilfredsstill…

πŸ“ Hvalrossveien 20 Hammerfest - Hámmerfeasta
🏠
NewConstruction Enebolig

Ny enebolig i Leitesvingen

Ny enebolig skal oppføres på eiendommen i Leitesvingen, Gnr 40, Bnr 43. Prosjektet omfatter et frittstående boligbygg b…

πŸ“ Leitesvingen 1 Valle
🏠
FacadeChange Enebolig

Innglassing av balkong i Edvard Munchs vei 51

Innglassing av eksisterende balkong på en enebolig i Edvard Munchs vei 51. Prosjektet innebærer montering av glassfelt …

πŸ“ Edvard Munchs vei 51 Oslo - Oslove
🏠
NewConstruction Enebolig

Ny enebolig med garasje i Loshågen

Ny enebolig med tilhørende garasje planlegges oppført på eiendommen i Loshågen. Prosjektet omfatter et frittstående bol…

πŸ“ Loshågen 15 Hábmer - Hamarøy
Ledningskart som viser kommunale ledninger (vann og avløp) for eiendommen på Sørholtvingen 15.
NewConstruction Enebolig

Ny enebolig i Sørholtsvingen 15, Jessheim

Ny enebolig oppføres på eiendommen Sørholtsvingen 15 i Jessheim. Bygget er planlagt etter brann og skal tilknyttes komm…

πŸ“ Sørholtsvingen 15 Ullensaker
🏠
Extension Enebolig

Innlemming av bod og innvendig trapp i enebolig, Gabels gate 48

Prosjektet omfatter innlemming av en eksisterende bod i boligens bruksareal og etablering av en ny innvendig trapp. Det…

πŸ“ Gabels gate 48 Oslo - Oslove
🏠
NewConstruction Enebolig

Ferdigattest for enebolig i Vækerøveien 101

Ferdigattest for en ny enebolig på eiendommen i Vækerøveien 101. Prosjektet omfatter oppføring av en frittstående bolig…

πŸ“ Vækerøveien 101 Oslo - Oslove
🏠
Extension Enebolig

Tilbygg på eksisterende bolig i Mercursvei 3

Tilbygg på eksisterende enebolig i Mercursvei 3. Prosjektet innebærer en fysisk utvidelse av boligens areal, med nye ko…

πŸ“ Mercurs vei 3 Hammerfest - Hámmerfeasta
🏠
NewConstruction Enebolig

Ny enebolig på Orvika 51, Haram

Ny enebolig oppføres på eiendommen Orvika 51 i Haram kommune. Bygget omfatter fundamenter med betong grunnmur, tømrerar…

πŸ“ Orvika 51 Haram
3D-visualisering (rendering) av en husmodell med etasjeplaner og teknisk informasjon.
NewConstruction Enebolig

Ny enebolig med støyskjerm i Verkensvegen 1, Auli

Ny enebolig på 106 m² BRA fordelt på to etasjer med saltak og tegltak, plassert på tomt på ca. 865 m² etter fradeling. …

πŸ“ Verkensvegen 1 Nes
🏠
Extension Enebolig

Oppføring av veranda med utebod under i Lauksundveien 488

Ny veranda bygges på sørside av eneboligen i Lauksundveien 488, med en utebod plassert under verandaen. Prosjektet inne…

πŸ“ Lauksundveien 488 Skjervøy
🏠
Extension Enebolig

Tilbygg på enebolig i Dyregrenda Sør

Tilbygg på eksisterende enebolig i Dyregrenda Sør. Prosjektet innebærer en fysisk utvidelse av boligens areal, med nye …

πŸ“ Dyregrenda Sør 1 Bykle
🏠
Extension Enebolig

Tilbygg til enebolig

Ny tilbygg til eksisterende enebolig. Tilbygget vil utvide boligens areal og funksjonalitet, og vil være tilpasset eksi…

Salangen
🏠
Rehabilitation Enebolig

Innvendige brann- og lydskilleendringer i Kirkeveien 75B

Innvendige endringer i eksisterende enebolig med fokus på oppgradering av brann- og lydskiller. Prosjektet innebærer mo…

πŸ“ Kirkeveien 75B Oslo - Oslove
Fasadetegning som viser bygningens utseende fra alle fire sider (Nord, Sør, Øst, Vest) med vinduer, dører og garasjeport.
NewConstruction Enebolig

Ny enebolig med garasje i Fagerliveien 28, Harstad

Ny enebolig i ett plan med flatt tak og total BRA på ca. 255 m², inkludert en integrert garasje på 46,8 m². Boligen har…

πŸ“ Fagerliveien 28 Harstad - Hárstták
🏠
Rehabilitation Enebolig

Riving og rehabilitering av enebolig i Vogts gate 28

Prosjektet omfatter riving av deler av en eksisterende enebolig etter brannskade, samt omfattende rehabilitering av byg…

πŸ“ Vogts gate 28 Oslo - Oslove