Enebolig 2124 treff

🏠
Extension Enebolig

Tilbygg til eksisterende enebolig i Skeimoveien 255

Ny tilbygg på eksisterende enebolig i Skeimoveien 255. Prosjektet innebærer en fysisk utvidelse av boligens areal, som …

πŸ“ Skeimoveien 255 Vegårshei
Snittegning (TP) som viser bygningens høyde, terrengforhold og grunnkonstruksjon sett fra ulike vinkler.
NewConstruction Enebolig

Ny enebolig med dispensasjon i Sandebuktveien 187, Holmestrand

Ny enebolig oppføres på eiendommen Sandebuktveien 187 i Holmestrand, som erstatning for en eksisterende fritidsbolig. D…

πŸ“ Sandebuktveien 187 Holmestrand
🏠
ChangeOfUse Enebolig

Bruksendring og påbygg på enebolig i Måkeveien 56

Prosjektet omfatter bruksendring av eksisterende kjellerrom til boligformål, i tillegg til påbygg og underbygg på en en…

πŸ“ Måkeveien 56 Oslo - Oslove
🏠
Extension Enebolig

Tilbygg på enebolig i Gyltesøveien 18, Sande

Ny tilbygg på eksisterende enebolig i Gyltesøveien 18 med et areal på 9,6 m². Tilbygget øker det totale bebygde arealet…

πŸ“ Gyltesøveien 18 Holmestrand
🏠
NewConstruction Enebolig

Ny enebolig med garasje i Hamnehagen 21, Hof

Ny enebolig på 160,5 m² BRA oppføres på tomt på 751 m² i Hamnehagen 21, Hof. Boligen bygges i to etasjer med tilhørende…

πŸ“ Hamnehagen 21 Holmestrand
🏠
NewConstruction Enebolig

Ny enebolig på Hommelia 14, Vennesla

Ny enebolig skal oppføres på eiendommen Hommelia 14 i Vennesla kommune. Prosjektet omfatter oppføring av en frittståend…

πŸ“ Hommelia 15 Vennesla
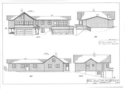
Fasadetegning (opprikk) av en bygning sett fra nord, med angitte mål og rombeskrivelser.
FacadeChange Enebolig

Fasadeendring og bruksendring på enebolig i Mulelia 22, Ålesund

Eksisterende enebolig i Mulelia 22 gjennomgår fasadeendring og mindre bruksendring. Endringene inkluderer flytting og u…

πŸ“ Mulelia 22 Ålesund
3D-modellperspektiv av en planlagt bygning sett fra øst og sydvest, inkludert omgivelsene.
NewConstruction Enebolig

Ny firemannsbolig med garasje i Osavegen 6, Voss

Ny firemannsbolig i tre etasjer med underetasje som inneholder fire garasjer og fire boder, plassert i Osavegen 6 på Vo…

πŸ“ Osavegen 6 Voss
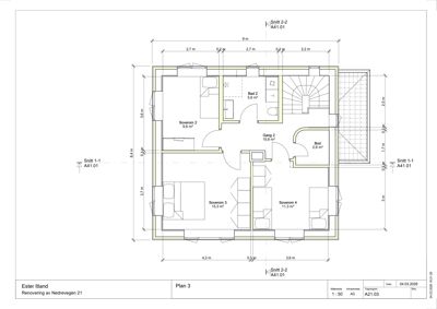
Etasjeplan (Plan 3) som viser romfordeling, dimensjoner og plassering av dører og vinduer for en bolig.
Extension Enebolig

Oppgradering og modernisering av enebolig i Nedrevegen 21

Oppgradering og modernisering av enebolig fra 1950-tallet i Nedrevegen 21. Tiltaket inkluderer endringer i planløsning,…

πŸ“ Nedrevegen 21 Kinn
Bildet viser en tegning med fasadeopprikk (fra vest og nord) samt etasjeplaner for en enebolig.
ChangeOfUse Enebolig

Bruksendring fra hobbyrom til soverom i Klampavikvegen 29

Bruksendring av et hobbyrom i underetasjen på 23,4 m² til et soverom i en eksisterende enebolig på Klampavikvegen 29. P…

πŸ“ Klampavikvegen 29 Askøy
Håndtegnet fasadeoppvisning av en bygning med fem vindusåpninger og mål på 1950x1200.
FacadeChange Enebolig

Innbygging av veranda på enebolig i Sognefjellsvegen 221, Lom

Innbygging av eksisterende åpen veranda på en enebolig i Sognefjellsvegen 221, Lom, slik at verandaen blir en integrert…

Lom
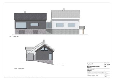
Tegning som viser fasadeoppsettet for bygningen sett fra vest og nord.
Extension Enebolig

Tilbygg og bruksendring med våtrom på Bjørgavegen 54, Aurland

Ny tilbygg på ca. 68,7 m² knyttes til eksisterende enebolig fra 1910 på Bjørgavegen 54. Det tidligere landbruksbygget o…

πŸ“ Bjørgavegen 54 Aurland
🏠
Extension Enebolig

Endring av bygg og riving av tilbygg

Saken gjelder søknad om rammetillatelse for endringer i eksisterende bygning samt riving av et tilbygg på eiendommen Ga…

πŸ“ Gamleveien 14A Færder
🏠
Rehabilitation Enebolig

Reparasjon og ombygging av enebolig på Gjestebakken 10

Reparasjon og ombygging av eksisterende enebolig på Gjestebakken 10 i Kvalsund. Tiltaket omfatter endringer og forbedri…

πŸ“ Gjestebakken 10 Hammerfest - Hámmerfeasta
Fotografi av en rød enebolig sett fra bakgården eller siden, med snø på bakken og en liten veranda.
NewConstruction Enebolig

Ny enebolig med garasje i Paul Holmsens vei 73, Fredrikstad

Ny enebolig på ett plan med livsløpsstandard oppføres på samme tomt som eksisterende bolig i Paul Holmsens vei 73. Boli…

πŸ“ Paul Holmsens vei 73 Fredrikstad
🏠
Extension Enebolig

Oppføring av veranda på enebolig

Ny veranda bygges som et tilbygg til en eksisterende enebolig. Verandaen vil fungere som et utendørs oppholdsareal, san…

Steinkjer - Stïentje
🏠
Rehabilitation Enebolig

Rehabilitering av pipe og ny eldstad på Flokeneset 59

Rehabilitering av eksisterende teglsteinspipe i enebolig på Flokeneset 59 med montering av stive stålrør fra Vento, dia…

πŸ“ Flokeneset 57 Askvoll
🏠
Extension Enebolig

Tilbygg og fasadeendring på enebolig, Bjerkebakken 69E

Tilbygg og fasadeendring på en eksisterende enebolig på Bjerkebakken 69E. Prosjektet omfatter utvidelse av boligens are…

πŸ“ Bjerkebakken 69E Oslo - Oslove
🏠
VerticalExtension Enebolig

Påbygg og balkongutvidelse med fasadeendring i Carl Grøndahls vei 20

Påbygg på en eksisterende enebolig med utvidelse av balkongarealet. Prosjektet inkluderer endringer i fasaden og en bru…

πŸ“ Carl Grøndahls vei 20 Oslo - Oslove
Fasadetegning av en tømmerhytte med vinduer, dør og skråtak. Tegningen viser også terrengforhold og er merket 'Mot sud' (mot sør).
VerticalExtension Enebolig

Påbygg og fasadeendring på enebolig i Gamle Bordalsvegen 89, Voss

Ny etasje på 48 m² bygges på eksisterende enebolig i Gamle Bordalsvegen 89, med fire nye soverom og et bodareal. Påbygg…

πŸ“ Gamle Bordalsvegen 89 Voss
En håndtegnet 3D-visualisering (perspektiv) og en frontvyskisse av en aluminiumsramme for et glasshus.
Extension Enebolig

Tilbygg vinterstue på enebolig i Koløen

Ny vinterstue på 14,9 m² oppført som et tilbygg på eksisterende enebolig i Koløen. Vinterstuen er uisolert og bygd oppå…

πŸ“ Engjavik 155 Fitjar
Fasadetegning som viser bygningens utseende fra fire ulike vinkler (vest, øst, nord og sør).
Extension Enebolig

Oppføring av nytt rom i kjeller med utvidet bruksareal

Saken gjelder søknad om å oppføre et nytt rom i kjelleren på enebolig ved Stenebråten 59, noe som gir utvidet totalt br…

πŸ“ Stenebråten 59 Fredrikstad
Bildet viser en situasjonsplan med konturlinjer og en snittegning av terrenget under bygningen.
NewConstruction Enebolig

Ny enebolig i Søliåsvegen 9, Tydal

Ny enebolig i én etasje med bruksareal på 103 m² og bebygd areal på 148 m² oppføres på eiendommen Søliåsvegen 9 i Tydal…

πŸ“ Søliåsvegen 9 Tydal
🏠
Extension Enebolig

Tilbygg, fasadeendring og bruksendring i Nordbergveien 78

Prosjektet omfatter oppføring av et tilbygg til eksisterende enebolig i Nordbergveien 78. I tillegg skal fasaden endres…

πŸ“ Nordbergveien 78 Oslo - Oslove