Enebolig 2126 treff

🏠
Extension Enebolig

Tilbygg til enebolig i Teiglandsvegen 48

Tilbygg til eksisterende enebolig på Teiglandsvegen 48. Prosjektet omfatter en fysisk utvidelse av boligens areal, noe …

πŸ“ Teiglandsvegen 48 Tysnes
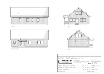
Fasadetegning som viser bygningens utseende fra fire sider: Nord, Øst, Vest og Fasade mot sør.
NewConstruction Enebolig

Ny enebolig med garasje på Strømnesåsen 50, Råde

Ny frittliggende enebolig i 1 ½ etasje med kaldt loft og tilhørende garasje oppføres på Strømnesåsen 50 i Råde kommune.…

πŸ“ Strømnesåsen 50 Råde
Fasadetegning som viser bygningens utseende sett fra to ulike vinkler (fra Tilkomstvegen og fra Elva).
Extension Enebolig

Tilbygg og endring av enebolig og garasje i Jakob Sandes veg 49

Prosjektet omfatter et tilbygg på ca. 26 m² BRA og 33 m² BYA til en eksisterende enebolig, med nye rom som soverom, bad…

πŸ“ Jakob Sandes veg 49 Fjaler
Fasadetegning som viser bygningens utseende fra nord og vest, inkludert mål og detaljer.
NewConstruction Enebolig

Ny enebolig med garasje i Otervikveien 32

Ny to-etasjes enebolig i tre med saltak på Otervikveien 32. Bygget har gesimshøyde på ca. 3,3-4,8 meter og mønehøyde på…

πŸ“ Otervikveien 32 Bindal
🏠
Extension Enebolig

Tilbygg på enebolig med dispensasjon, Gnr 55 Bnr 48

Tilbygg på eksisterende enebolig på eiendommen Gnr 55 Bnr 48. Prosjektet innebærer en fysisk utvidelse av boligen som k…

πŸ“ Strandveien 108 Balsfjord
🏠
Extension Enebolig

Endring av enebolig i Landstadvegen 4A

Endring av eksisterende enebolig i Landstadvegen 4A med både innvendige og utvendige tiltak. Prosjektet omfatter modifi…

πŸ“ Landstadvegen 4A Fyresdal
Fotografier av elvebunn med steinmasser/blokk og en kartutsnitt fra NGU som viser eiendommen markert.
NewConstruction Enebolig

Ny enebolig med riving på Bygdavegen 85, Hjelmeland

Ny enebolig på 179 m² BRA fordelt på to etasjer bygges på Bygdavegen 85 i Hjelmeland. Boligen har saltak med takvinkel …

πŸ“ Bygdavegen 85 Hjelmeland
🏠
NewConstruction Enebolig

Ny enebolig med garasje i Aklandsveien 280

Ny enebolig med tilhørende frittstående garasje oppført på eiendommen i Aklandsveien 280. Boligen er et frittliggende b…

πŸ“ Aklandsveien 280 Vegårshei
🏠
NewConstruction Enebolig

Ny enebolig med garasje i Aklandsveien 280

Ny enebolig med tilhørende frittstående garasje er oppført på eiendommen i Aklandsveien 280. Bygget er fullført og har …

πŸ“ Aklandsveien 280 Vegårshei
🏠
ChangeOfUse Enebolig

Bruksendring av kjellerrom til soverom i Lirypeveien 9, Bodø

Bruksendring av et kjellerrom på 8,4 m² i et rekkehus fra 1997, fra bod (tilleggsdel) til soverom (hoveddel). Rommet ha…

πŸ“ Lirypeveien 9 Bodø
🏠
Extension Enebolig

Utvendig tilbygg mindre enn 50 m² på enebolig, Hyllveien 21

Ny utvendig tilbygg på enebolig i Hyllveien 21 med et areal mindre enn 50 m². Tilbygget vil utvide boligens bruksareal …

πŸ“ Hyllveien 21 Stjørdal
🏠
NewConstruction Enebolig

Oppføring av fire eneboliger i Gulleråsveien 33E

Prosjektet omfatter oppføring av fire frittstående eneboliger på eiendommen i Gulleråsveien 33E. Hver bolig vil være se…

πŸ“ Gulleråsveien 33E Oslo - Oslove
Fotografi av en hytte med snø på bakken og skog i bakgrunnen.
ChangeOfUse Enebolig

Bruksendring til hybel i enebolig, Kirkebykroken 4

Bruksendring av deler av eneboligens sokkeletasje til en selvstendig hybelleilighet med egen inngang. Hybelen omfatter …

πŸ“ Kirkebykroken 4 Rælingen
🏠
FacadeChange Enebolig

Flytting av dør og glassfelt ved inngang, Mariboes gate 14 E

Endring av fasaden på en enebolig ved å flytte en ytterdør og tilhørende glassfelt ved inngangspartiet. Prosjektet inne…

πŸ“ Mariboes gate 14A Oslo - Oslove
🏠
Extension Enebolig

Oppføring av tre balkonger på enebolig i Fauchalds gate 7

Tre nye balkonger skal bygges på en eksisterende enebolig i Fauchalds gate 7. Balkongene vil være frittstående eller på…

πŸ“ Fauchalds gate 7 Oslo - Oslove
🏠
ChangeOfUse Enebolig

Bruksendring, fasadeendring og carport i Tidemands gate 44

Prosjektet omfatter bruksendring av kjeller til boligformål, fasadeendring på eksisterende enebolig, samt oppføring av …

πŸ“ Tidemands gate 44 Oslo - Oslove
Fasadetegning som viser bygningens utsyn fra fire sider (Nord, Vest, Sør, Øst) med mål og detaljer.
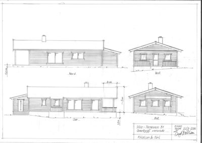
Extension Enebolig

Tilbygg med tak over veranda på Tangevegen 31

Ny tilbygg på 27,3 m² med tak over eksisterende terrasse på enebolig i Tangevegen 31. Taket er en forlengelse av eksist…

πŸ“ Tangevegen 31 Årdal
🏠
Extension Enebolig

Tilbygg på eksisterende enebolig i Telemarksveien 199

Ny tilbygg på eksisterende enebolig i Telemarksveien 199. Tilbygget vil utvide boligens areal og funksjonalitet, og til…

πŸ“ Telemarksveien 199 Vegårshei
🏠
NewConstruction Enebolig

Riving og ny enebolig med carport i Nils Lauritssøns vei 22

Prosjektet omfatter riving av eksisterende bygg og oppføring av en ny enebolig med tilhørende carport, bod og drivhus p…

πŸ“ Nils Lauritssøns vei 22 Oslo - Oslove
Fasadetegning som viser bygningens utseende fra fire ulike vinkler (vest, øst, sør, nord).
FacadeChange Enebolig

Fasadeendring og takombygging på enebolig i Steinurbakken 9

Endring av takløsning på en eksisterende to-etasjes enebolig med saltak i tre, beliggende i Steinurbakken 9. Det nye ta…

πŸ“ Steinurbakken 9A Porsgrunn
🏠
Rehabilitation Enebolig

Rehabilitering av pipe på Oventangen 44

Rehabilitering av eksisterende pipe i enebolig på Oventangen 44. Prosjektet omfatter ett pipeløp og inkluderer arbeid f…

πŸ“ Oventangen 44 Råde
Fasadetegning som viser bygningens utsyn fra fire ulike vinkler (front, side, bak og en annen side), med mål og detaljer om takform og vinduer.
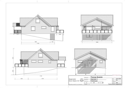
Extension Enebolig

Tilbygg og veranda på enebolig i Hagavegen 2, Årdalstangen

Ny utvidelse av balkong og tilbygg på 25 m² på enebolig i Hagavegen 2, Årdalstangen. Tiltaket inkluderer utviding av ba…

πŸ“ Skarpholvegen 7B Årdal
🏠
Extension Enebolig

Tilbygg på enebolig i Bangsundvegen 21

Ny tilbygg på enebolig i Bangsundvegen 21. Prosjektet innebærer en fysisk utvidelse av eksisterende bolig, med nye kons…

πŸ“ Bangsundvegen 21 Namsos - Nåavmesjenjaelmie
🏠
Extension Enebolig

Tilbygg til enebolig i Maribovegen 38

Ny tilbygg til eksisterende enebolig i Maribovegen 38. Prosjektet innebærer en fysisk utvidelse av boligens areal, med …

πŸ“ Maribovegen 38 Namsos - Nåavmesjenjaelmie