Enebolig 2123 treff

🏠
NewConstruction Enebolig

Ny enebolig i Granmeisvegen 2, Vennesla

Ny enebolig planlegges oppført på eiendommen Granmeisvegen 2 i Vennesla kommune. Prosjektet omfatter et frittstående bo…

πŸ“ Granmeisvegen 2 Vennesla
Bildet viser fasadetegninger for en bygning, inkludert et 3D-utsnitt og to fasadeopprikk (Fasade 1 og Fasade 2).
ChangeOfUse Enebolig

Bruksendring og ny trapp i enebolig, Tyttebærstien 3

Bruksendring av underetasjen i eneboligen på Tyttebærstien 3 fra tilleggsdel til hoveddel, inkludert etablering av en n…

πŸ“ Tyttebærstien 3 Vestre Toten
🏠
Extension Enebolig

Tilbygg med sommerstue på Buhagen 12, Kolnes

Ny tilbygg med en uisolert sommerstue på ca. 30 m² bygges på eksisterende terrasse med utgang fra kjøkkenet i enebolige…

πŸ“ Buhagen 12 Karmøy
Bildet viser en tegning med fasadeopprikk (Nord, Aust, Syd) og en situasjonsplan.
ChangeOfUse Enebolig

Bruksendring til 4 boenheter i Nyheimsvegen 3, Florø

Eksisterende bygg i Nyheimsvegen 3, tidligere brukt som barnehage, ombygges til 4 separate boenheter med egne innganger…

πŸ“ Nyheimvegen 3 Kinn
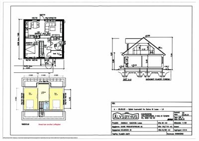
Bildet viser en samling tegninger for et hus, inkludert etasjeplaner (VINGPLAN), snittegning og arealopplysninger.
ChangeOfUse Enebolig

Bruksendring med innredning av loft i enebolig, Sommervegen 4, Husnes

Innredning av loft i eksisterende enebolig på 112,68 m² med nytt areal på 35 m². Loftet får loftstue (9,5 m²), to sover…

πŸ“ Sommarvegen 4 Kvinnherad
Bildet viser en 3D-visualisering (rendering) av to planlagte bygninger på et terreng, med en situasjonsplan over i toppen.
NewConstruction Enebolig

Oppføring av to eneboliger i Sørbygdsvegen 341, Øyer

To nye eneboliger skal oppføres på eiendommen Sørbygdsvegen 341 i Øyer som erstatning for to eksisterende boliger i svæ…

πŸ“ Sørbygdsvegen 341 Øyer
🏠
Demolition Enebolig

Riving og nyoppføring av våningshus i Nordibøvegen 176

Eksisterende våningshus på eiendommen i Nordibøvegen 176 rives, og det bygges et nytt våningshus på samme tomt. Det nye…

πŸ“ Nordibøvegen 176 Valle
🏠
Demolition Enebolig

Riving av enebolig i Mjålandsveien 11

Eksisterende enebolig i Mjålandsveien 11 skal rives. Prosjektet omfatter full nedbrenning og fjerning av bygningen fra …

πŸ“ Mjålandsveien 11 Iveland
3D-visualisering (perspektivtegning) av en planlagt bolig med utsnitt mot nord og sør.
Extension Enebolig

Utvendig tilbygg på enebolig i Stabburshaugen 63, Bodø

Ny utvendig tilbygg på eksisterende enebolig i Stabburshaugen 63, Bodø, med et samlet tilleggsareal på 65 m² fordelt på…

πŸ“ Stabburshaugen 63 Bodø
🏠
Extension Enebolig

Utvendig tilbygg under 50 m² på Tveitane 31

Ny utvendig tilbygg på enebolig på Tveitane 31 med et areal mindre enn 50 m². Tilbygget vil utvide boligens bruksareal …

πŸ“ Tveitane 31 Vaksdal
Situasjonsplan som viser tomtens grenser, eksisterende og planlagt infrastruktur (fellesledninger), samt detaljer for nyoppføring av tomteggrenser.
Rehabilitation Enebolig

Rehabilitering av sanitæranlegg ved Hovslivegen 1, Lillehammer

Rehabilitering og omlegging av vann- og avløpsledninger tilknyttet en eksisterende enebolig på Hovslivegen 1. Prosjekte…

πŸ“ Hovslivegen 1 Lillehammer
Fasadetegning som viser bygningens utseende fra vest (VEST.) med angitte mål og detaljer.
Extension Enebolig

Tilbygg med ny entre til enebolig i Linerleveien 11

Ny tilbygg på 21,6 m² BYA til eksisterende enebolig i Linerleveien 11, bestående av en ny entre som kobler til eksister…

πŸ“ Linerleveien 11 Færder
🏠
Extension Enebolig

Tilbygg til enebolig i Busmovegen 1A, Lillehammer

Tilbygg til eksisterende enebolig på Busmovegen 1A i Lillehammer. Bygget består av en utvidelse av boligens areal, med …

πŸ“ Busmovegen 1A Lillehammer
🏠
NewConstruction Enebolig

Ny bolig med garasje etter brann i Fjordbygdveien 485

Ny bolig med tilhørende garasje oppføres på eiendommen i Fjordbygdveien 485 etter at tidligere bolig brant ned og ble r…

πŸ“ Fjordbygdveien 485 Vegårshei
🏠
NewConstruction Enebolig

Ny bolig med garasje etter brann i Fjordbygdveien 485

Ny enebolig med tilhørende garasje oppføres på eiendommen i Fjordbygdveien 485. Prosjektet omfatter gjenoppbygging ette…

πŸ“ Fjordbygdveien 485 Vegårshei
🏠
Extension Enebolig

Ombygging og påbygg med carport og takterrasse, Kyhns vei 6

Ombygging av eksisterende enebolig med tilbygg i form av påbygg og ny carport. Prosjektet inkluderer også etablering av…

πŸ“ Kyhns vei 6 Oslo - Oslove
🏠
NewConstruction Enebolig

Ny enebolig med hybelleilighet i Torgersens vei 7A, Bodø

Ny enebolig med tilhørende hybelleilighet og sokkelleilighet oppføres i Torgersens vei 7A i Bodø. Bygget omfatter grunn…

πŸ“ Torgersens vei 7A Bodø
Situasjonskart som viser eiendomsnummer, adresse, datum, målestokk, eiendomsgrenser, naboeiendommer og topografi.
Extension Enebolig

Tilbygg på enebolig i Høgåsvegen 127, Ringebu

Tilbygg på eksisterende enebolig i Høgåsvegen 127, Ringebu, med et areal på 72 m². Prosjektet inkluderer ekstra isoleri…

πŸ“ Høgåsvegen 127 Ringebu
🏠
Extension Enebolig

Tilbygg, nye kjellervinduer og påbygg i Krossveien 4

Prosjektet omfatter et tilbygg og et påbygg på en eksisterende enebolig i Krossveien 4. Det inkluderer også utskifting …

πŸ“ Krossveien 4 Oslo - Oslove
Situasjonsplan som viser bygningens plassering på tomt, med høydekurver og koordinater.
NewConstruction Enebolig

Riving og ny enebolig med VA-anlegg i Bøstingsveien 6, Melandsjø

Ny enebolig oppføres på eiendommen Bøstingsveien 6, Melandsjø, etter riving av eksisterende bygg. Prosjektet inkluderer…

πŸ“ Bøstingveien 6 Hitra
Bildet viser to 3D-modeller (renderinger) av en planlagt bygning sett fra ulike vinkler, med tilhørende tekstbeskrivelse av dispensasjonssaken.
NewConstruction Enebolig

Ny enebolig med garasje og bod på Skulevegen 36B

Ny enebolig på 198 m² BRA i to etasjer med et bebygd areal på 130 m² oppføres på Skulevegen 36B. I tillegg bygges en fr…

πŸ“ Skulevegen 36B Lærdal
3D-visualisering av et hus med tilhørende situasjonsplan og teknisk informasjon
NewConstruction Enebolig

Ny enebolig med terrasse i Lensmannsvei 9, Halden

Ny frittliggende enebolig på ett plan med totalt 167,7 m² BRA, inkludert oppholdsrom, tre soverom, kjøkken, vaskerom, t…

πŸ“ Lensmannsveien 9 Halden
🏠
Extension Enebolig

Endring av vinduer og takoverbygg med bruksendring i Stølsvegen 11A

Prosjektet omfatter endring av vinduer og oppføring av takoverbygg på en enebolig i Stølsvegen 11A. I tillegg inkludere…

πŸ“ Stølsvegen 11A Oslo - Oslove
Fasadetegning som viser utsiden av en bolig og en garasje sett fra ulike vinkler (sørøst, nordøst, sørvest, nordvest).
NewConstruction Enebolig

Ny enebolig med garasje på Solbergfaret 7, Tvedestrand

Ny enebolig i én etasje med et bruksareal på 128,4 m² og totalt bebygd areal på 203 m² oppføres på Solbergfaret 7 i Tve…

πŸ“ Solbergfaret 7 Tvedestrand